Wide frontage, garage and gardens — ideal for families or buyers wanting a renovation project.
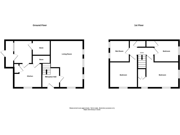
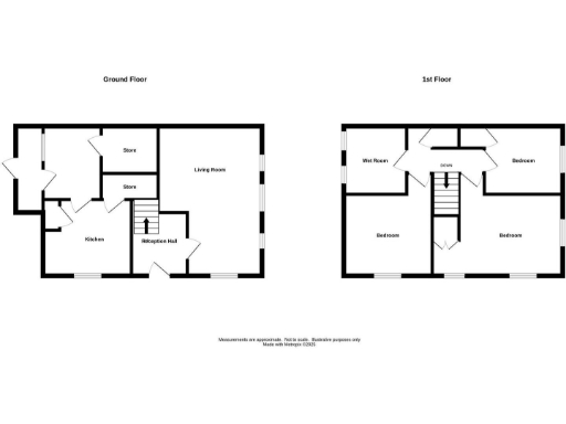
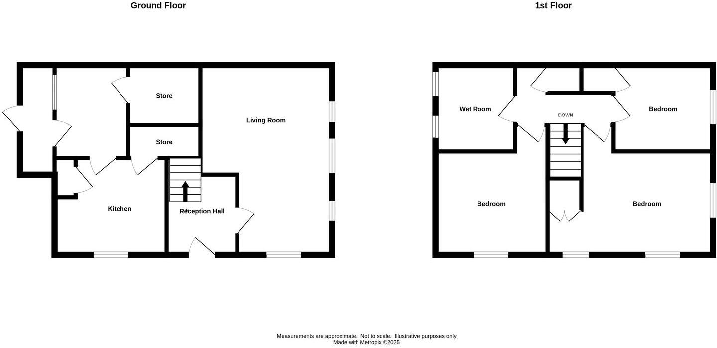
Three bedrooms and generous dual-aspect living room
A three-bedroom semi-detached home in Romsley village offering a wide frontage, driveway and a good-size garage. The house has a generous living room with dual-aspect windows, practical layout and front, side and rear gardens. Tenure is freehold and the property is offered with no upward chain.
The property benefits from gas central heating, PVC double glazing and an EPC rating of C, but it clearly needs modernisation throughout. The kitchen, wet room and some internal fittings are serviceable, yet updating and cosmetic refurbishment are required to bring the home up to contemporary standards.
This house will suit a family seeking space in a small town fringe location or an investor looking for a refurbishment project with straightforward layout and good kerb appeal. Broadband speeds are slow and mobile signal average, so buyers valuing fast connectivity should note this. The area is low crime, relatively affluent and close to well-rated primary schools.
Practical points: mains services are connected, the boiler and radiators provide gas heating, and there is useful internal storage including a pantry/store and linen cupboard. Buyers should expect improvement costs, and cavity walls are assumed to have no insulation (further survey recommended).
3 bedroom terraced house for sale in Waverley Crescent, Romsley, Halesowen, B62 — £315,000 • 3 bed • 1 bath • 547 ft²
3 bedroom semi-detached house for sale in Carters Lane, Halesowen, B62 0EP, B62 — £385,000 • 3 bed • 1 bath • 1340 ft²
4 bedroom detached house for sale in Bromsgrove Road, Romsley, Halesowen, Worcestershire, B62 — £640,000 • 4 bed • 1 bath • 1800 ft²
3 bedroom semi-detached house for sale in HALESOWEN, Hilston Avenue, B63 — £265,000 • 3 bed • 1 bath • 1464 ft²
3 bedroom semi-detached house for sale in HALESOWEN, Middlefield Avenue, B62 — £240,000 • 3 bed • 1 bath • 2401 ft²
3 bedroom semi-detached house for sale in HALESOWEN, Witley Avenue, B63 — £260,000 • 3 bed • 1 bath • 941 ft²














































