Historic charm and modern fittings in a tranquil South Downs village home.
Grade II listed barn conversion with strong period character
Located in South Downs National Park; scenic village setting
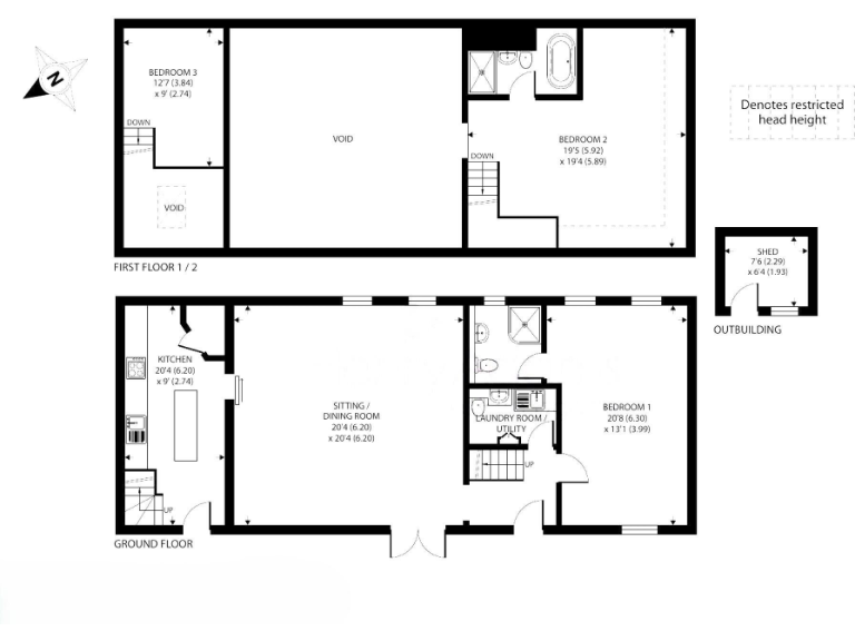
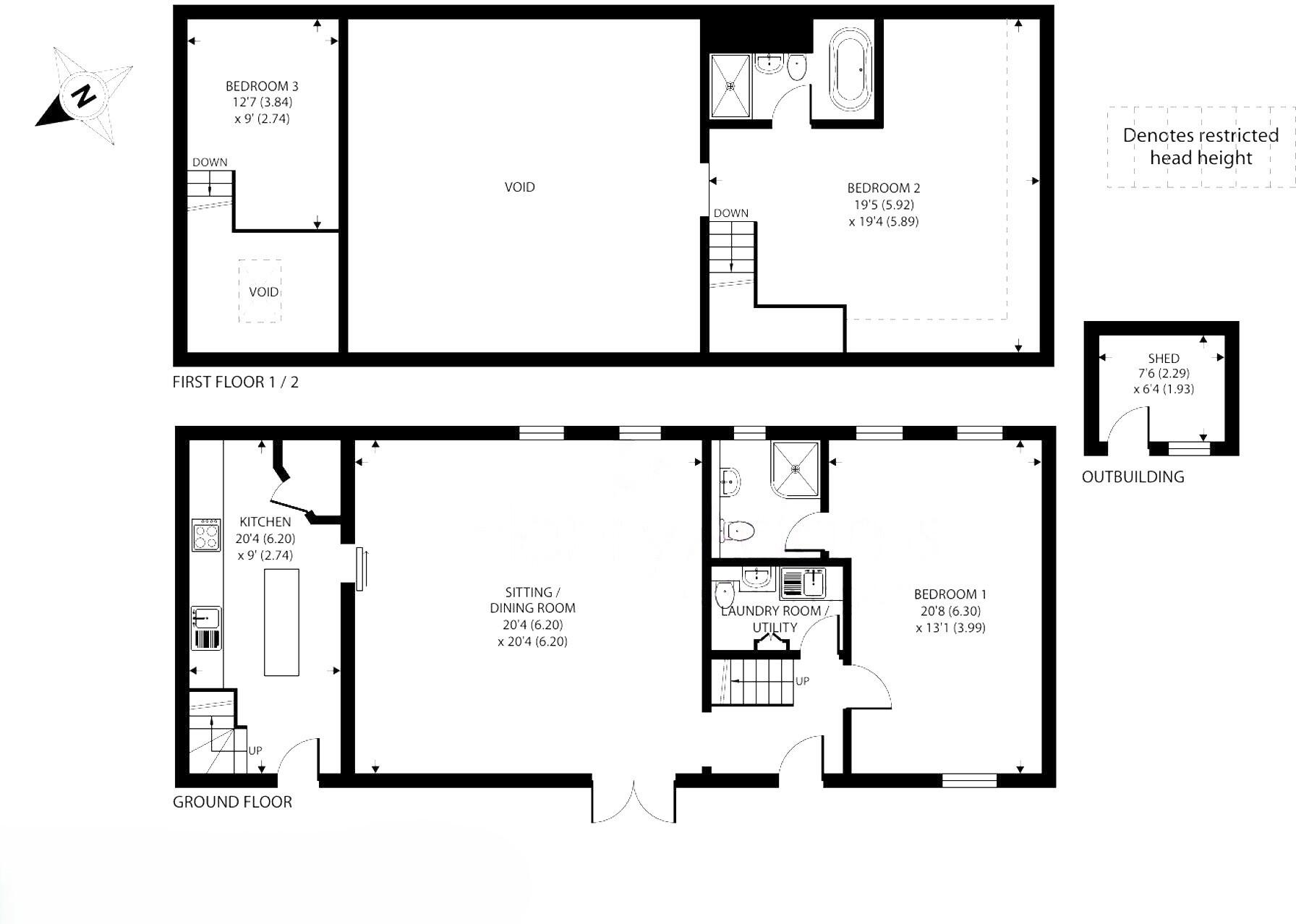
Three bedrooms, two bathrooms, utility/laundry room
Bespoke kitchen with integrated high-spec appliances
Triple glazing; insulated stone walls but electric room heaters only
Private driveway parking; small garden, garden room and shed
Modest plot size; limited scope for extension due to listing
Purchase process includes an exclusivity fee and processing charge
A Grade II listed barn conversion set in the South Downs National Park, The Cart Shed blends period character with contemporary living. Exposed beams, vaulted ceilings and a wood burner create a dramatic, welcoming sitting/dining space. The bespoke kitchen and built-in appliances deliver high-spec day-to-day convenience.
The house offers three generous bedrooms, two bathrooms and useful utility/laundry space. Triple glazing and insulated stone walls help with comfort, while excellent mobile signal and fast broadband suit remote working. A private driveway provides off-street parking and a small garden, shed and garden room extend the living space outdoors.
There are important practical points to note: the Grade II listing will restrict alterations and can complicate repairs or extensions. Main heating is electric room heaters rather than gas or a central system; buyers should budget for running and potential upgrade costs. The plot is modest in size and the local recorded crime level is higher than average for rural villages.
Prospective purchasers should also be aware the seller’s stated sale process includes an exclusivity fee and a processing fee prior to exchange; confirm all purchase conditions independently. Viewing is recommended to appreciate the layout, scale and genuine character of this converted barn within its rural setting.
3 bedroom semi-detached house for sale in Houghton, Amberley, West Sussex, BN18 — £925,000 • 3 bed • 2 bath • 2382 ft²
2 bedroom barn conversion for sale in Warningcamp, Arundel, West Sussex, BN18 — £675,000 • 2 bed • 1 bath • 1492 ft²
3 bedroom barn conversion for sale in Elsted, Midhurst, West Sussex, GU29 — £775,000 • 3 bed • 2 bath • 1493 ft²
3 bedroom barn conversion for sale in Stoughton, Chichester, PO18 — £1,150,000 • 3 bed • 2 bath • 2221 ft²
4 bedroom detached house for sale in Gay Street Lane, Pulborough, RH20 — £850,000 • 4 bed • 2 bath • 2911 ft²
3 bedroom barn conversion for sale in Monument Lane, Racton, Chichester, West Sussex, PO18 — £1,500,000 • 3 bed • 2 bath • 2173 ft²






















































































































