**Standout Features:**
- **Guide Price: £340,000 - £360,000**
- Semi-detached character cottage with period features
- No onward chain and potential for extensions (STPP)
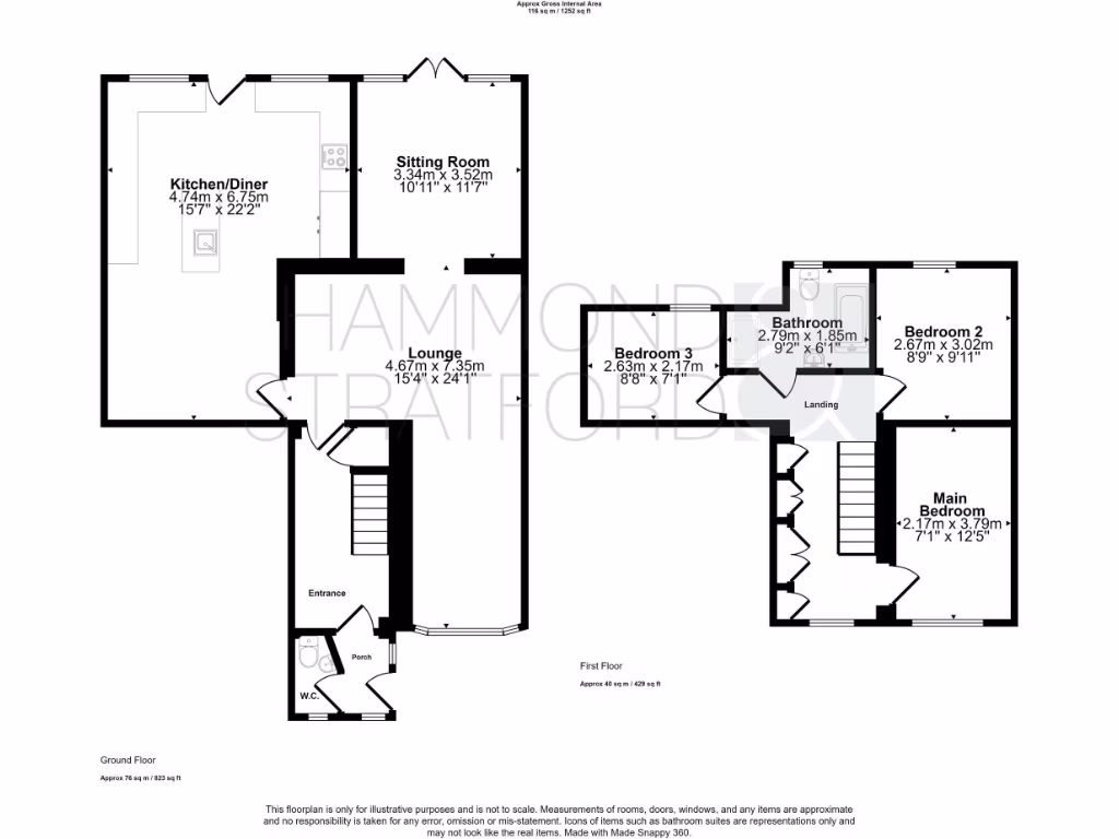
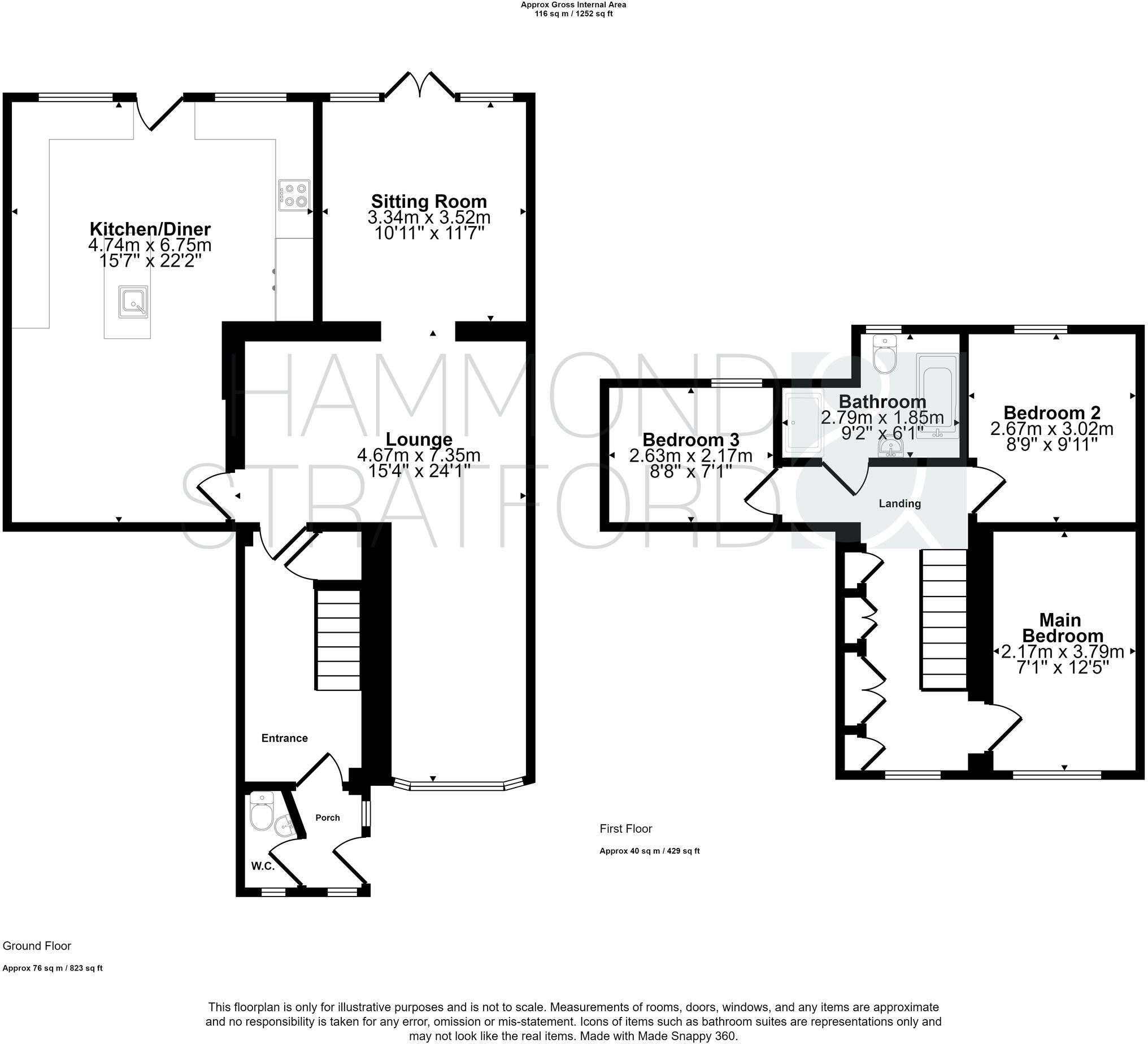
- Impressive 22'2 kitchen/diner with an island and garden access
- Spacious 24'1 open-plan lounge leading to a cozy sitting room
- Off-road parking for multiple vehicles on a gated shingle driveway
- Approx. 0.12 acre plot with a large enclosed rear garden, ideal for families and gardening enthusiasts
- Proximity to major road links and local amenities
Nestled in the serene village of Forncett St Peter, this charming semi-detached cottage blends traditional character with modern conveniences. With three well-proportioned bedrooms and versatile living spaces, this home is perfect for families seeking a peaceful retreat without sacrificing accessibility. The expansive 22-foot plus kitchen/diner invites family gatherings and leads to an outdoor space that boasts a spacious, landscaped garden, ideal for kids to play or for hosting summer barbecues.
The potential to extend the property (subject to planning permission) opens doors for future enhancements, making it an appealing option for first-time buyers and investors alike. The cottage offers off-road parking for multiple vehicles, which is a valuable feature in rural settings. While the charming aspect of country living comes with the need for some minor maintenance, the property’s overall condition is sound and welcoming. This delightful home is a rare find in a tranquil locale, ready to embrace its new owners. Act quickly—properties like this don’t stay on the market for long!
3 bedroom semi-detached house for sale in Long Stratton Road, Forncett St. Peter, Norwich, NR16 — £340,000 • 3 bed • 1 bath • 1152 ft²
3 bedroom link detached house for sale in Humphreys Close, Forncett St Peter, NR16 — £300,000 • 3 bed • 1 bath • 895 ft²
5 bedroom detached house for sale in Bentley Road, Norwich, NR16 — £800,000 • 5 bed • 3 bath • 2720 ft²
3 bedroom semi-detached house for sale in Tabernacle Lane, Forncett St. Peter, Norwich, Norfolk, NR16 — £300,000 • 3 bed • 3 bath • 1184 ft²
5 bedroom semi-detached house for sale in Long Stratton Road, Forncett St. Peter, Norwich, NR16 — £475,000 • 5 bed • 2 bath • 1744 ft²
3 bedroom semi-detached house for sale in Common Road, Forncett St. Peter, NR16 — £425,000 • 3 bed • 3 bath • 1442 ft²














































































