**Standout Features:**
- No chain, making for a quick move-in
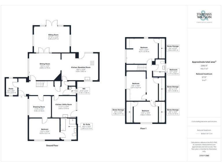
- Newly renovated, spanning over 2000 sq. ft
- 34' open plan kitchen/dining room with integrated appliances
- Four spacious bedrooms, including ground-level master with en-suite
- Landscaped rear garden with a swimming pool room
- Large gated driveway and workshop
**Concise Summary:**
This exquisite detached chalet-style home offers the perfect blend of modern luxury and countryside charm, nestled in a tranquil setting backed by farmland. Boasting over 2000 square feet of beautifully refurbished living space, this residence features a stunning 34’ open-plan kitchen and dining area equipped with high-quality integrated appliances—ideal for entertaining. With four generous bedrooms, including a well-appointed ground-floor master suite complete with a walk-in dressing room and en-suite bathroom, this home encourages both comfort and convenience.
The landscaped rear garden is a personal oasis, complete with a workshop and swimming pool room, perfect for leisure activities. Gated front access ensures both privacy and security, while the extensive driveway accommodates multiple vehicles. Positioned in a serene rural locale, this property exudes potential for families seeking an idyllic retreat with ample space for living and future enhancements. With rising demand in the area, seize this opportunity—properties of this caliber do not stay on the market long!
4 bedroom chalet for sale in The Avenue, Wroxham, Norwich, NR12 — £800,000 • 4 bed • 2 bath • 2562 ft²
4 bedroom chalet for sale in Holmesdale Road, Brundall, Norwich, NR13 — £400,000 • 4 bed • 2 bath • 1270 ft²
4 bedroom detached house for sale in Thrigby Road, Filby, Great Yarmouth, NR29 — £525,000 • 4 bed • 2 bath • 1381 ft²
3 bedroom chalet for sale in Windmill Close, Poringland, Norwich, NR14 — £375,000 • 3 bed • 2 bath • 1407 ft²
4 bedroom detached house for sale in Green Lane East, Rackheath, Norwich, NR13 — £475,000 • 4 bed • 2 bath • 1630 ft²
5 bedroom detached house for sale in Tooks Common Lane, Ilketshall St. Andrew, Beccles, NR34 — £695,000 • 5 bed • 2 bath • 2486 ft²






































































































































