Spacious garden, high ceilings and move-in ready finish near Hither Green transport.
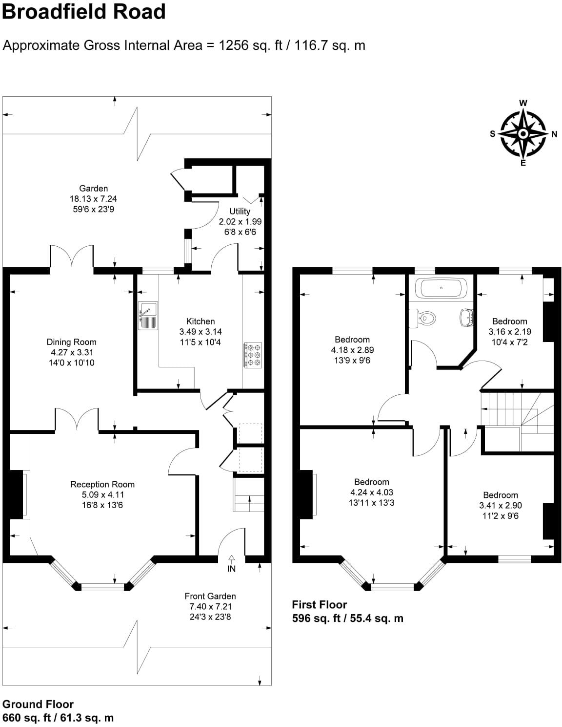
Four double bedrooms across two floors, approx. 1,256 sq ft
A beautifully presented four-bedroom Victorian family home on Broadfield Road, offering generous living space (approx. 1,256 sq ft) and a large, mature landscaped garden — ideal for families seeking indoor/outdoor living close to green spaces and local schools. The recently completed renovation combines period detail with contemporary finishes: restored doors and bannisters, cast-iron radiators, bespoke shaker kitchen and quality fixtures throughout.
Upstairs provides four well-proportioned bedrooms and a single, fully finished family bathroom. The bright living and dining rooms benefit from high ceilings and a bay window that brings in morning sun. There is scope to increase floor area subject to planning (potential to extend, STPP), which will appeal to buyers wanting to add value or adapt the house for changing family needs.
Practical points to note: the property is an end-terrace built c.1901 with solid-brick walls (no cavity insulation assumed), so improving thermal efficiency may be desirable. Tenure is not confirmed — buyers should verify with their solicitor. Council tax band D applies.
Location is a major strength: close to Hither Green and Catford transport links for fast journeys into central London, and within easy reach of well-regarded local primaries and community amenities. The Corbett Estate’s strong community character and nearby parks provide a friendly, village-like feel while keeping the city within easy reach.
4 bedroom terraced house for sale in Arngask Road, London, SE6 — £850,000 • 4 bed • 1 bath • 1506 ft²
4 bedroom terraced house for sale in Ardgowan Road, Catford, London, SE6 — £675,000 • 4 bed • 2 bath • 1486 ft²
4 bedroom terraced house for sale in Muirkirk Road, London, SE6 — £850,000 • 4 bed • 1 bath • 1661 ft²
4 bedroom terraced house for sale in Muirkirk Road, London, SE6 — £775,000 • 4 bed • 1 bath • 1437 ft²
4 bedroom house for sale in Lutwyche Road, Catford, SE6 — £800,000 • 4 bed • 2 bath • 1252 ft²
4 bedroom terraced house for sale in Muirkirk Road, Catford, London, SE6 — £775,000 • 4 bed • 2 bath • 1389 ft²






































































