Freehold 3-bed with garden, parking and approved extension — strong rental and development potential.
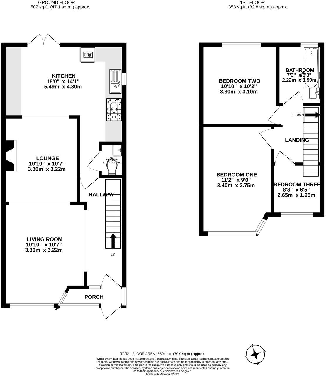
- Freehold 3-bedroom end-of-terrace with large through lounge
- Planning permission approved: 6m rear extension and loft conversion
- Currently let at £2,350 pcm — immediate rental income
- Large rear garden and off-street parking to front
- EPC D (60); walls assumed uninsulated — may need insulation
- Mains gas boiler and radiators; fast broadband and excellent mobile signal
- Built 1950–66; average condition likely needs some modernisation
- Local area has high crime rates; consider neighbourhood factors
This freehold end-of-terrace three-bedroom house on Athelstone Road offers practical family accommodation and clear development upside. The property includes a large through lounge, extended kitchen, ground-floor WC, sizeable rear garden and off-street parking — features that support both owner-occupation and lettability. Harrow & Wealdstone station is within walking distance, improving commuter appeal.
Planning permission has been approved for a 6-metre rear extension and loft conversion, creating tangible scope to increase living space and value. The house is currently let at £2,350 pcm, making it immediately income-generating for an investor. Heating is mains gas via boiler and radiators; mobile signal and broadband speeds are strong.
Buyers should note a few material considerations. The building dates from mid 20th century and walls are assumed to be uninsulated, contributing to an EPC rating of D (60). There is a high local crime level reported for the area; buyers wanting quieter neighbourhoods should factor this in. The property appears in average condition for its age and may require updating or insulation works to optimise comfort and running costs.
Overall this is a practical suburban terraced plot with decent outdoor space, good transport links and approved planning for further accommodation. It will suit investors seeking rental income and development potential, or buyers willing to extend and modernise for family use.
3 bedroom terraced house for sale in Athelstone Road, Harrow, HA3 — £440,000 • 3 bed • 1 bath
3 bedroom end of terrace house for sale in Hill Road, Harrow, Middlesex, HA1 — £500,000 • 3 bed • 1 bath • 786 ft²
3 bedroom terraced house for sale in Harrow View, Harrow., HA1 — £530,000 • 3 bed • 1 bath • 801 ft²
3 bedroom end of terrace house for sale in Harrow View, Harrow, HA1 — £600,000 • 3 bed • 1 bath • 1103 ft²
3 bedroom semi-detached house for sale in Manor Road, Harrow, HA1 4PF, HA1 — £595,500 • 3 bed • 1 bath • 1060 ft²
3 bedroom semi-detached house for sale in Manor Road, Harrow, HA1 2PF, HA1 — £625,000 • 3 bed • 1 bath • 1197 ft²






































