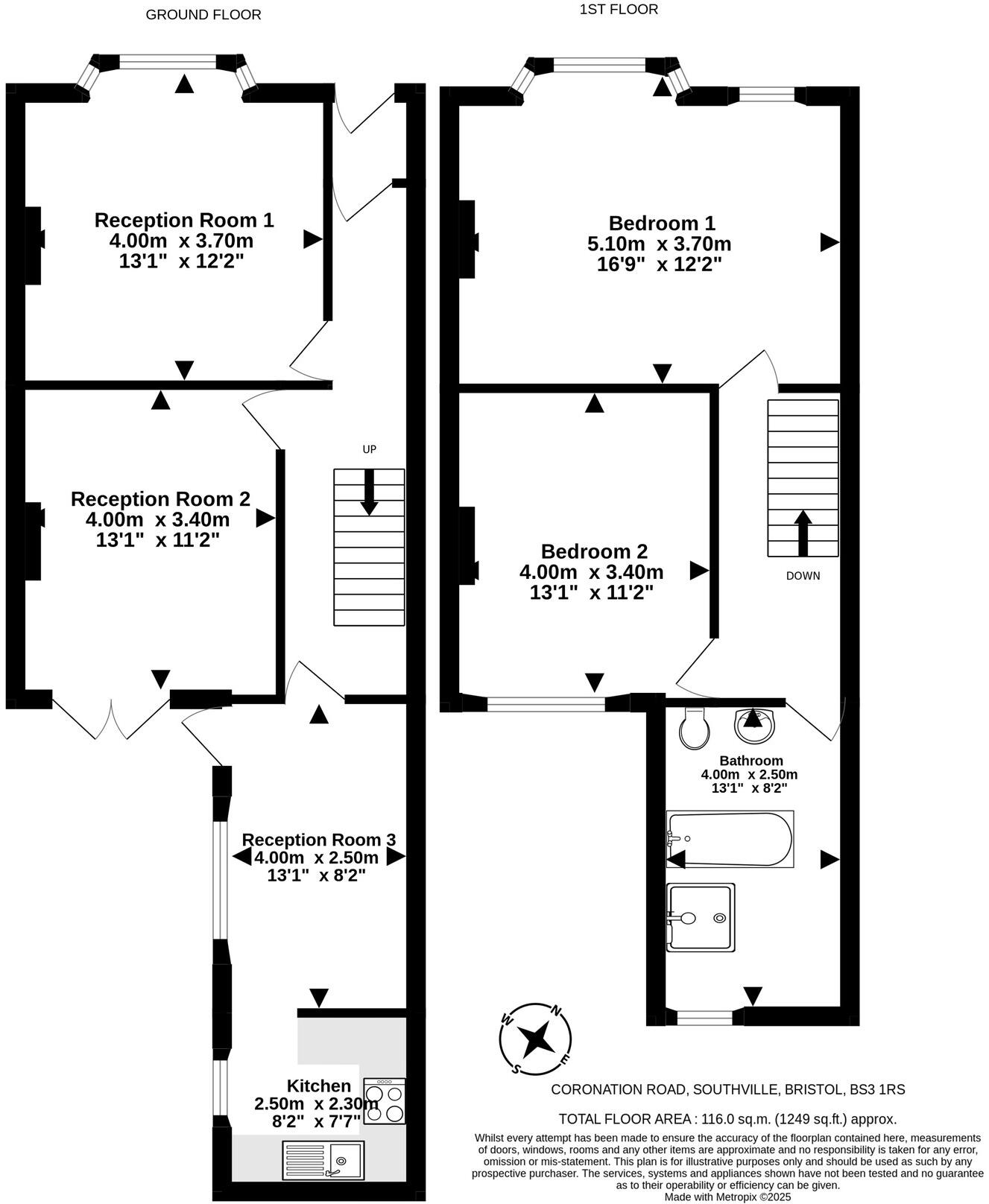
**Standout Features:**
- 2 spacious double bedrooms
- 2 to 3 versatile reception areas, including one with direct garden access
- No chain sale for quick acquisition
- Garage accessible from Back Lane
- Good-sized garden, ideal for outdoor living
- Located in the vibrant Southville area near trendy cafes and shops
**Potential Concerns:**
- Property requires renovation
- High crime rates in the local area
- No insulation in brick walls
Nestled in the vibrant community of Southville, Bristol, this charming Victorian terraced house offers a fantastic opportunity for both families and investors alike. Boasting two generously-sized double bedrooms and a flexible layout with up to three reception rooms, this property features a bright front room with a bay window, ideal for letting in natural light. The second reception room opens directly to the garden through double doors, creating an inviting indoor-outdoor space perfect for modern living.
The good-sized garden presents a peaceful retreat with rear access and includes a garage, offering potential for additional storage or conversion into a creative outbuilding. The home's location is a highlight, situated just a short stroll from North Street’s array of restaurants, bars, and shops, as well as numerous parks and the scenic Harbourside.
While this property is chain-free and presents an ideal blank canvas for renovation, it's important to note that it requires updates and lacks insulation, which could affect heating efficiency. Priced at £550,000, this offers a unique chance to invest in a popular neighborhood with high rental potential, making it especially appealing for first-time buyers looking to leave their mark. Don’t miss out on this opportunity to create your ideal home in a highly sought-after area!
3 bedroom terraced house for sale in Coronation Road, Southville, Bristol, BS3 — £430,000 • 3 bed • 1 bath • 1184 ft²
3 bedroom terraced house for sale in Coronation Road | Southville, BS3 — £425,000 • 3 bed • 1 bath • 1321 ft²
3 bedroom terraced house for sale in Coronation Road, Southville, Bristol, Somerset, BS3 — £540,000 • 3 bed • 2 bath • 1278 ft²
3 bedroom terraced house for sale in Coronation Avenue, Bristol, BS16 — £395,000 • 3 bed • 1 bath • 1031 ft²
2 bedroom house for sale in Beaumont Street, Bristol, BS5 — £335,000 • 2 bed • 2 bath • 977 ft²
4 bedroom terraced house for sale in Coronation Road, Southville, BRISTOL, BS3 — £650,000 • 4 bed • 2 bath • 1393 ft²






































































