Single-floor living with garden and garage in sought-after Priorslee.
Detached single-storey bungalow on a decent sized plot
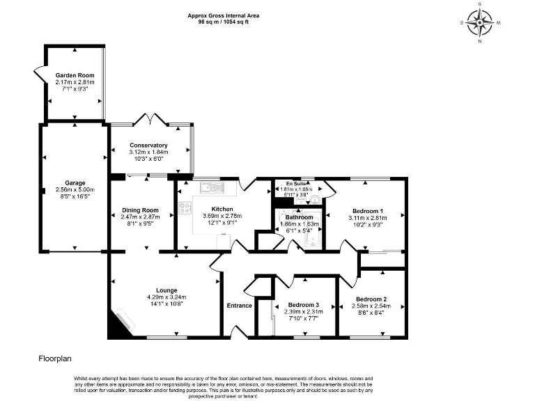
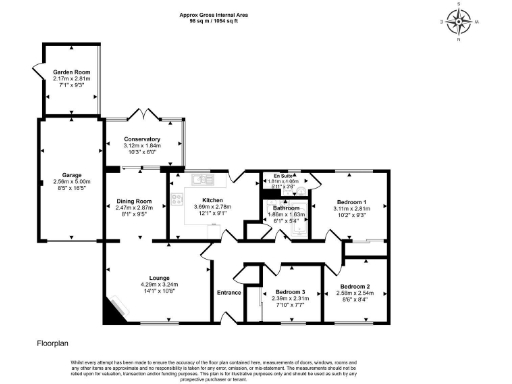
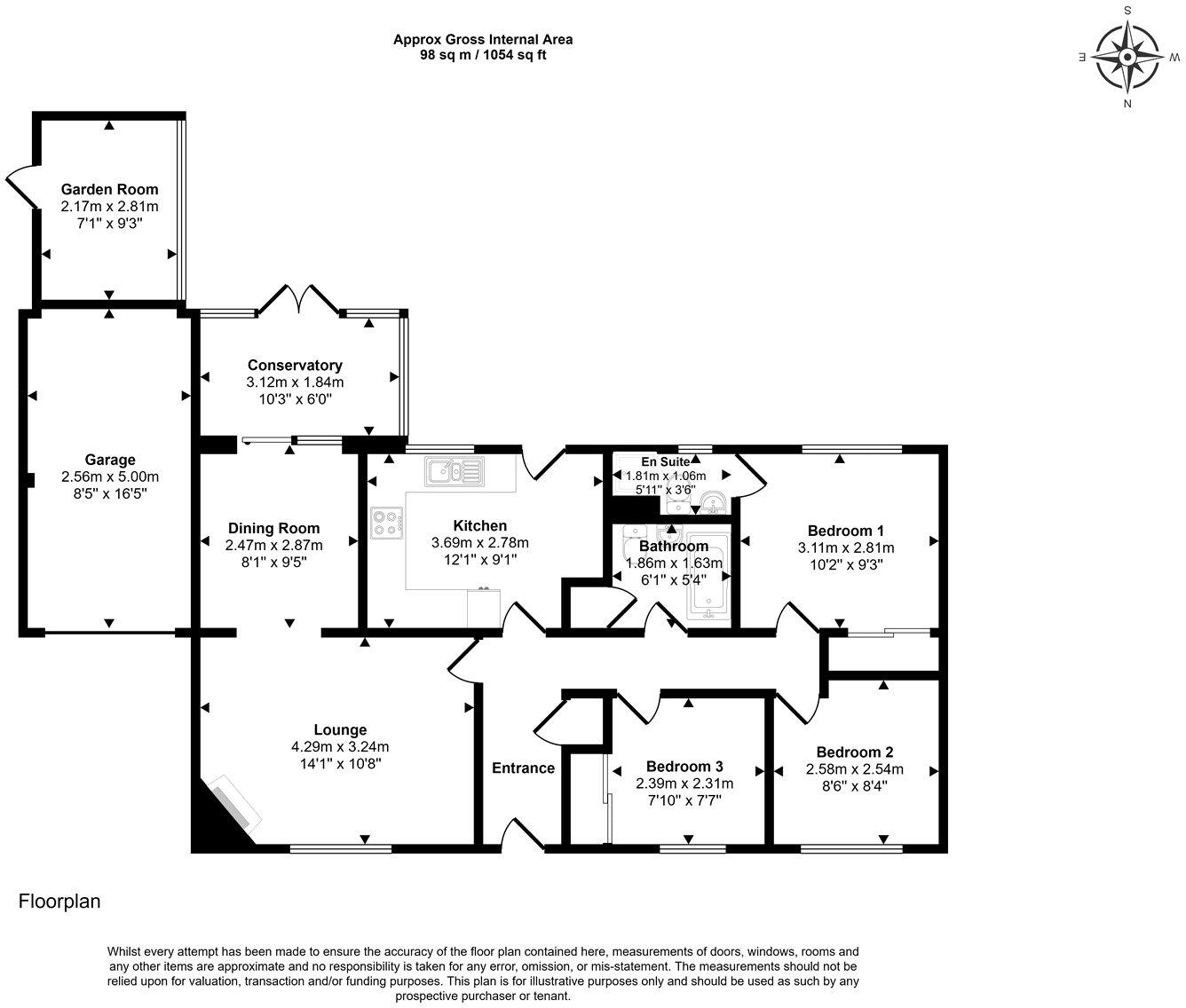
Set on a generous plot in desirable Priorslee, this detached three-bedroom bungalow offers comfortable single-level living and clear potential to personalise. The layout includes a lounge with dining area, kitchen, master bedroom with ensuite, an additional two bedrooms and a conservatory/garden room overlooking a private rear garden with patio. A garage and driveway provide convenient off-street parking.
Sold freehold and offered with no onward chain, the property is well suited to families or downsizers seeking spacious accommodation close to good schools and local amenities. Transport links are strong with easy access to the M54 and Telford town centre a short drive away. Practical comforts include double glazing, mains gas central heating and fast broadband/mobile signal.
The bungalow dates from the 1980s and presents as a blank canvas rather than a finished refurbishment. Room sizes are small-to-moderate and cosmetic updating is likely required to modernise kitchens, bathrooms and finishes to current tastes. Buyers should note average local crime levels and moderate council tax banding.
For those who value single-floor living, outside space and scope to renovate, this property offers a solid, well-located base with good schools nearby and straightforward commuter links. Early viewing recommended to appreciate the layout and garden potential.
3 bedroom detached bungalow for sale in Grasmere Close, Priorslee, TF2 — £270,000 • 3 bed • 2 bath • 875 ft²
3 bedroom bungalow for sale in 11 Ainsdale Drive, Priorslee, Telford. TF2 9QJ, TF2 — £283,950 • 3 bed • 1 bath • 1036 ft²
3 bedroom bungalow for sale in Grasmere Close, Priorslee, Telford, TF2 — £384,950 • 3 bed • 2 bath • 1034 ft²
3 bedroom detached bungalow for sale in Ennerdale Close, Priorslee, Telford, Shropshire, TF2 9RR, TF2 — £410,000 • 3 bed • 2 bath • 1179 ft²
3 bedroom detached house for sale in Ainsdale Drive, Priorslee, Telford, Shropshire, TF2 — £285,000 • 3 bed • 1 bath
3 bedroom detached bungalow for sale in Prioslee Road, Snedshill, TF2 — £299,950 • 3 bed • 1 bath • 1114 ft²


























































