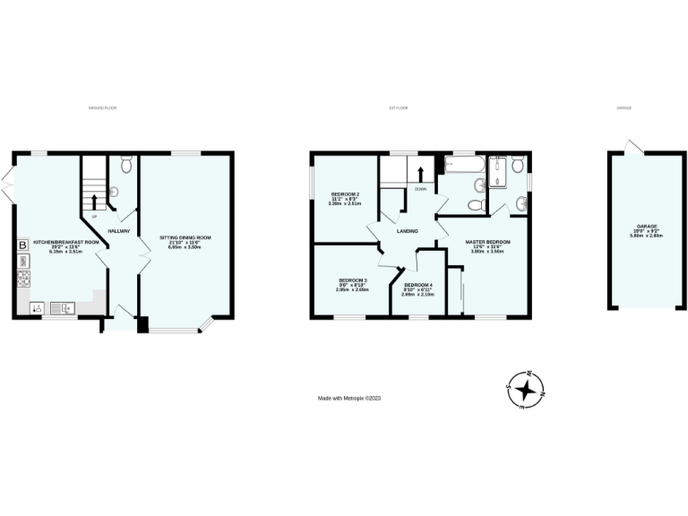
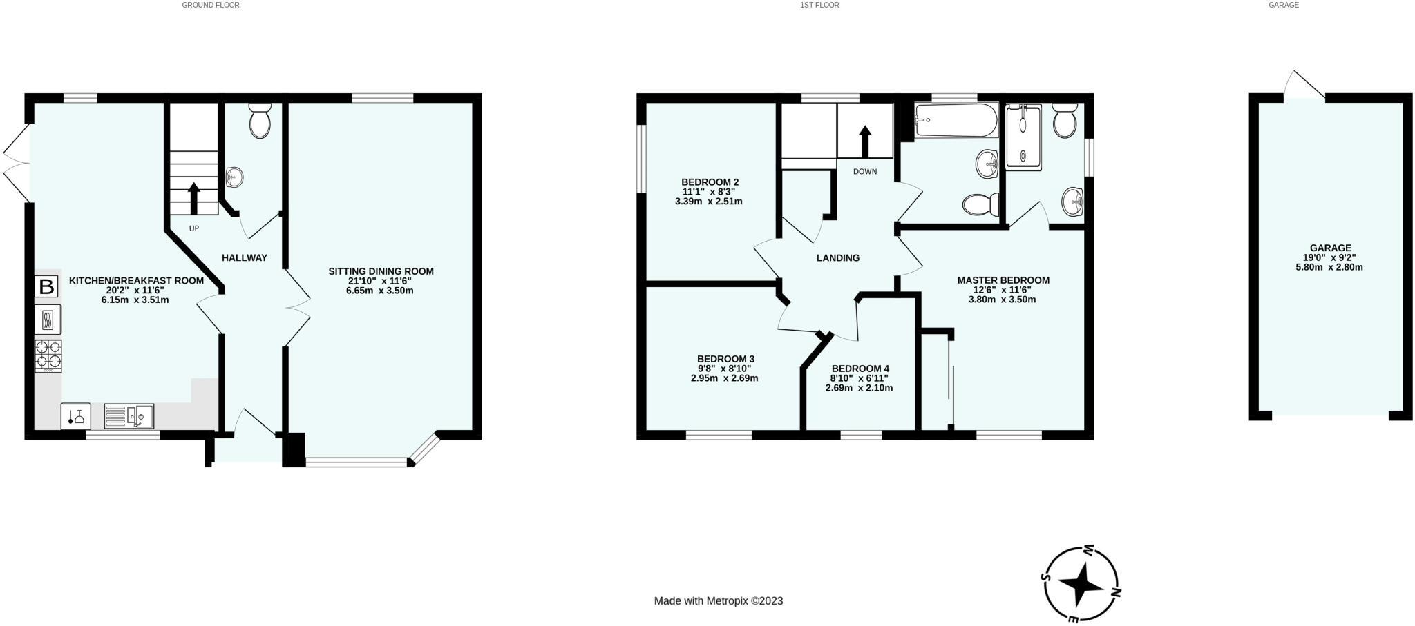
**Standout Features:**
- Four good-sized bedrooms plus an en-suite shower room
- Beautifully fitted modern kitchen and dining area with quartz finishes
- Dual aspect sitting room filled with natural light
- Landscaped garden with south-facing composite decking
- Garage and driveway for convenient parking
- Freehold tenure, built in 2011, newly renovated
- Located in a tranquil suburban environment with very low crime rates and excellent mobile and broadband connectivity
**Summary Description:**
Welcome to this beautifully renovated detached cottage in Sidmouth, Devon, where modern elegance meets charming countryside living. With a well-designed layout featuring four spacious bedrooms and a stylish dual aspect sitting room, this home is perfect for families seeking comfort and security. The highlight is the newly fitted kitchen and dining area that opens onto a south-facing deck, seamlessly integrating indoor and outdoor living—ideal for summer gatherings or quiet evenings at home.
The property boasts a meticulously maintained garden, combining low maintenance with the potential for additional custom landscaping. Parking is a breeze with both a garage and driveway available. Enjoy the benefits of living in an affluent, peaceful area with access to excellent local schools and amenities. This charming home is not just a residence; it’s an opportunity to embrace a desirable lifestyle. Act fast—properties like this, offering comfort, style, and tranquility, don't stay on the market for long!
4 bedroom detached house for sale in Metcombe, Nr Sidmouth, Devon, EX11 — £450,000 • 4 bed • 2 bath • 1995 ft²
4 bedroom detached house for sale in Newlands Road, Sidmouth, Devon, EX10 — £625,000 • 4 bed • 2 bath • 1402 ft²
3 bedroom detached house for sale in Livonia Road, Sidmouth, Devon, EX10 — £800,000 • 3 bed • 2 bath • 1552 ft²
4 bedroom detached house for sale in Boughmore Road, Sidmouth, EX10 — £1,250,000 • 4 bed • 3 bath • 2276 ft²
3 bedroom terraced house for sale in Bridge Street, Sidbury, Sidmouth, Devon, EX10 — £400,000 • 3 bed • 2 bath • 1159 ft²
3 bedroom detached house for sale in Convent Fields, Sidmouth, Devon, EX10 — £800,000 • 3 bed • 2 bath • 1484 ft²






























































































































