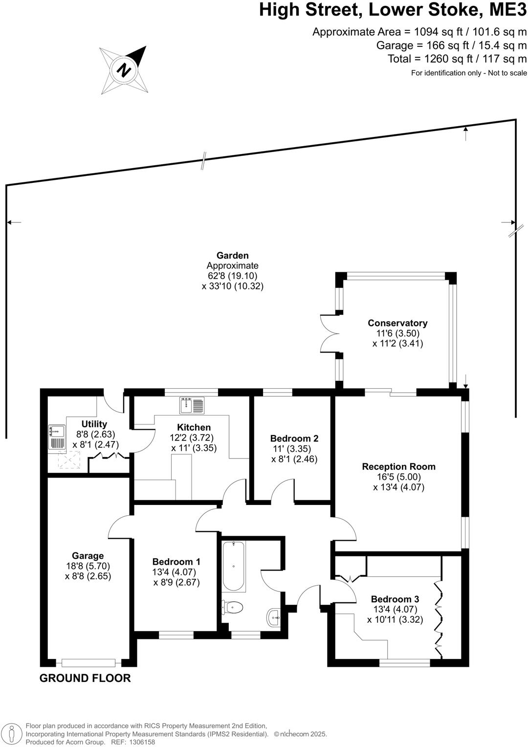
**Standout Features:**
- Spacious three-bedroom detached bungalow
- Off-road parking for multiple vehicles & integral garage
- Modernized kitchen with high gloss finishes and integrated appliances
- Conservatory opens up to a stunning rear garden with a summerhouse
- Prime location in Lower Stoke village, close to shops and primary school
- Low crime rate and vibrant community atmosphere
- Freehold tenure with low annual service charge (~£80)
This delightful three-bedroom detached bungalow in the heart of Lower Stoke offers a harmonious mix of comfort and convenience. Enjoy the ample off-road parking and the security of an integral garage. Inside, a contemporary kitchen leads seamlessly to a charming conservatory that opens onto a beautifully landscaped garden—your personal oasis for relaxation and outdoor entertaining.
The property’s well-proportioned bedrooms and spacious living areas provide a perfect family-friendly environment. Nestled in a village setting with essential amenities just a short stroll away, this home presents an ideal opportunity for both families and first-time buyers while being only a short drive from Strood for further shopping and transport links.
With a price guide of £375,000 to £400,000, this freehold property is chain-free and ready for you to make it your own. Don't miss your chance to secure this lovely bungalow—schedule a viewing today to experience all its potential and charm!
2 bedroom detached bungalow for sale in Allhallows Road, Lower Stoke, Rochester, Kent, ME3 — £400,000 • 2 bed • 1 bath • 935 ft²
2 bedroom detached bungalow for sale in High Street, Rochester, ME3 — £325,000 • 2 bed • 1 bath • 1123 ft²
3 bedroom detached bungalow for sale in Brompton Farm Road, Strood, Rochester, ME2 3RQ, ME2 — £575,000 • 3 bed • 2 bath • 1259 ft²
3 bedroom semi-detached house for sale in Shepherds Way, Lower Stoke, Rochester, ME3 — £375,000 • 3 bed • 2 bath • 1099 ft²
2 bedroom bungalow for sale in Powlett Road, Rochester, ME2 — £300,000 • 2 bed • 1 bath • 794 ft²
3 bedroom bungalow for sale in St. Johns Road, Higham, Rochester, Kent, ME3 — £425,000 • 3 bed • 1 bath • 826 ft²






























































































