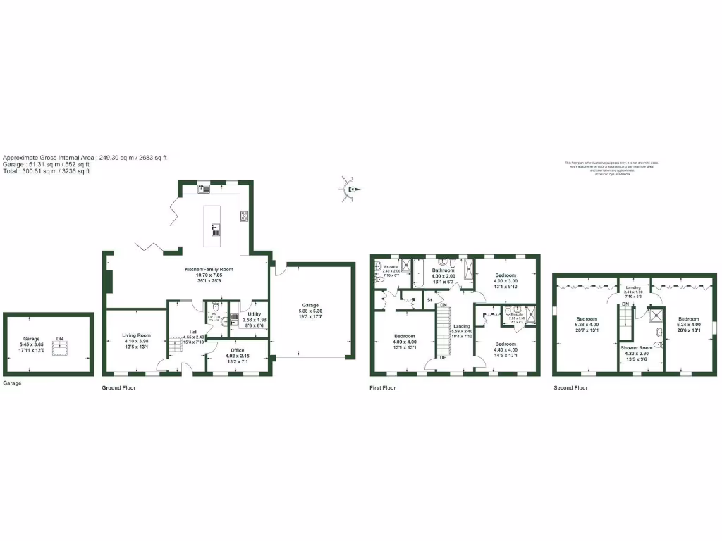
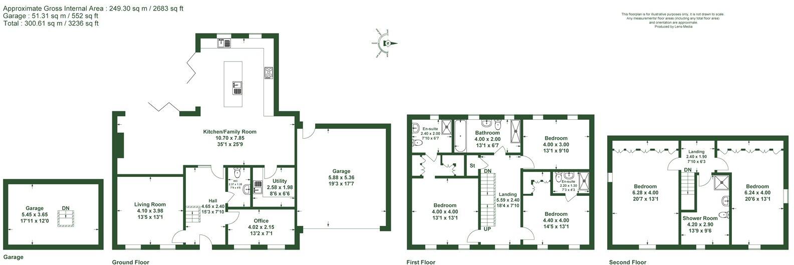
New neo‑Georgian five-bedroom home on a large plot with sustainability features..
- Five bedrooms and four bathrooms across three storeys
- Large private plot with patio, lawn and summer house (water & electric)
- Energy-efficient: solar PV, Zero Carbon fabric, air-source heat pump
- Spacious living-dining kitchen with bifold doors and island
- Double garage with electric doors to front and rear
- Medium flood risk — check insurance and drainage arrangements
- Council tax described as quite expensive; confirm running costs
- Constructed 2022; high specification but scope to personalise garden
This substantial, newly built five-bedroom detached house blends neo‑Georgian character with high-spec contemporary living, ideal for growing families who value space and energy efficiency. The living-dining kitchen with bifold doors opens to a large lawn and patio, creating a generous hub for daily life and entertaining. Two additional reception rooms and a dedicated study provide flexible space for home working and quieter family zones.
Built in 2022 with a Zero Carbon fabric, solar PV and an air-source heat pump with underfloor heating, the home was constructed with energy performance in mind. Practical features include a double garage with electric doors front and rear, a utility room, ground-floor WC and a well-equipped kitchen with island, integrated appliances and a media wall.
Set on a sizeable, private plot in semi-rural Catforth village, the location offers very low local crime, excellent mobile signal and fast broadband — useful for commuters and remote workers. Good primary schools are nearby and the M6, Preston station and coastal towns such as Lytham are within easy reach for wider amenities and commuting.
Buyers should note a medium flood risk for the area and that council tax is described as quite expensive; prospective purchasers should confirm insurance and long-term running costs. While the property is presented to a high standard throughout, the large garden and summer house provide scope to personalise landscaping and external finishes to suit your household needs.
4 bedroom detached house for sale in School Lane, Catforth, Preston, Lancashire, PR4 — £645,000 • 4 bed • 2 bath • 2145 ft²
4 bedroom detached house for sale in Catforth Road, Catforth, Preston, Lancashire, PR4 — £750,000 • 4 bed • 2 bath • 3093 ft²
4 bedroom detached house for sale in Bartle Lane, Lower Bartle, Preston, PR4 — £645,000 • 4 bed • 3 bath • 2109 ft²
4 bedroom detached house for sale in Heatherlea, Catforth Road, Catforth, Preston, PR4 — £664,500 • 4 bed • 3 bath • 2220 ft²
5 bedroom detached house for sale in Darkinson Lane, Lea Town, Preston, PR4 0RJ, PR4 — £900,000 • 5 bed • 3 bath • 2991 ft²
5 bedroom detached house for sale in Moorside Lane, Woodplumpton, PR4 — £825,000 • 5 bed • 3 bath • 2898 ft²






















































































