Spacious plot with garage, conservatory and versatile living for modern family life.
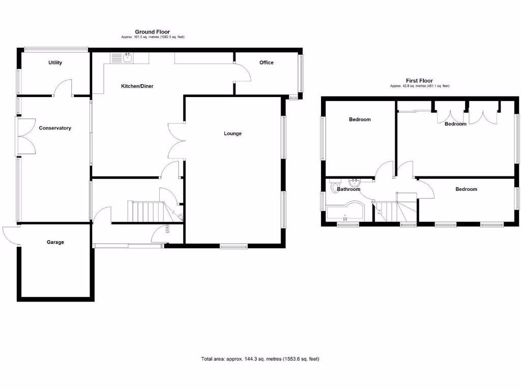
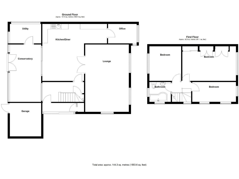
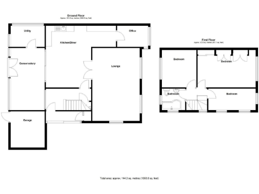
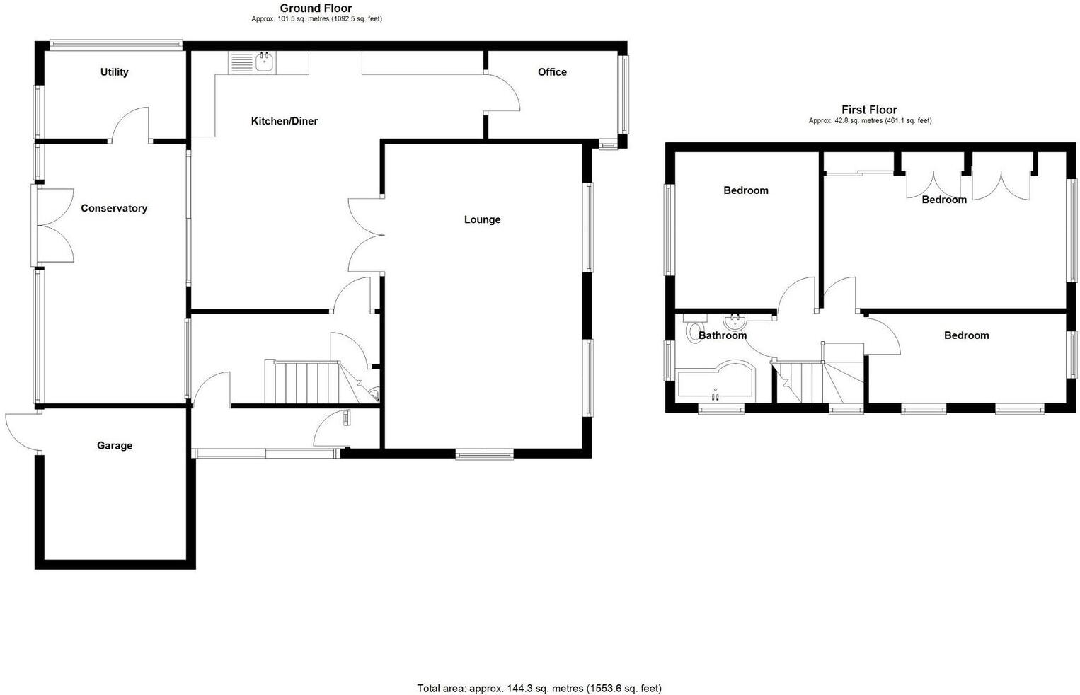
Three bedrooms with built-in wardrobes and a re-fitted family bathroom
Superb open family dining kitchen with integrated dishwasher and breakfast bar
Spacious conservatory plus separate home office/utility room
Integral garage, generous block-paved driveway for multiple cars
Good-sized, low-maintenance rear garden with decking and patio
Older solid-brick construction; likely no wall insulation — energy works possible
Only one bathroom plus guest WC — family may need additional facilities
Local crime levels recorded as very high; consider security measures
This link-detached house sits on a generous plot in comfortable suburbia, arranged over two floors with a large dining kitchen, lounge, conservatory and a dedicated home office. The layout suits a family who need flexible space for everyday living, home working and entertaining. The garage and wide block-paved in‑and‑out driveway provide substantial off-street parking.
Internally the property is well presented with neutral decoration, wood-effect flooring to principal rooms and a recently re-fitted family bathroom. The large dining kitchen with integrated appliances and glazed doors into the lounge is a strong family focal point; the conservatory and additional office/utility give useful extra living space and garden access.
Buyers should note the house is an older solid-brick build (c.1900–1929) and external walls are assumed to have no added insulation; some thermal improvements may be desirable. There is one family bathroom and a guest WC. Local services include fast broadband and good nearby primary and secondary schools, but crime statistics for the immediate area are recorded as very high, which may concern some buyers.
The property is offered freehold (vendor’s solicitor confirmation pending) with council tax band D and no flood risk. Overall this is a comfortable, move-in-ready family home with scope for energy upgrades and modest updating to personalise.
3 bedroom link detached house for sale in Mereside Way, Solihull, B92 — £485,000 • 3 bed • 1 bath • 1413 ft²
3 bedroom link detached house for sale in Wharton Avenue, Solihull, B92 — £375,000 • 3 bed • 1 bath • 934 ft²
3 bedroom link detached house for sale in Wheeley Road, Solihull, B92 — £385,000 • 3 bed • 2 bath • 1197 ft²
3 bedroom link detached house for sale in Middle Leaford, Birmingham, B34 — £270,000 • 3 bed • 1 bath • 1090 ft²
4 bedroom semi-detached house for sale in Landor Road, Knowle, B93 — £475,000 • 4 bed • 2 bath • 1464 ft²
3 bedroom semi-detached house for sale in Ebrington Avenue, Solihull, B92 — £380,000 • 3 bed • 1 bath • 915 ft²














































































































