**Standout Features:**
- Luxurious Neo-Georgian detached house
- 5 spacious bedrooms, all en suite
- Extensive grounds exceeding 3/4 acre
- Private gated driveway with ample parking and double garage
- Sophisticated living spaces with high ceilings and quality finishes
- Built-in modern conveniences, including EV charging and intelligent home system
- Ideally located in an affluent neighborhood with a low crime rate
**Potential Concerns:**
- Slow broadband speeds may affect connectivity
- High council tax band (H)
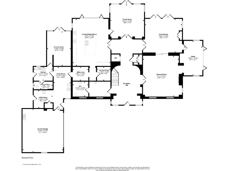
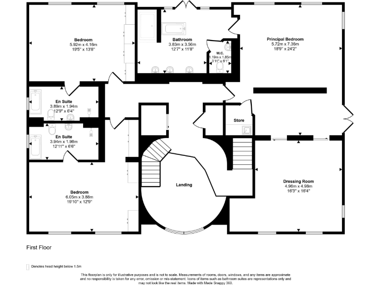
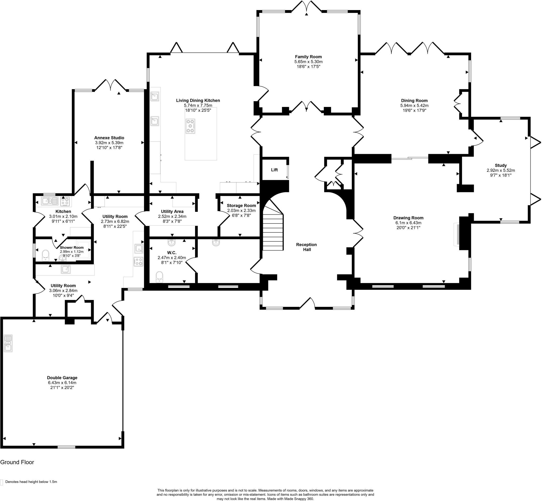
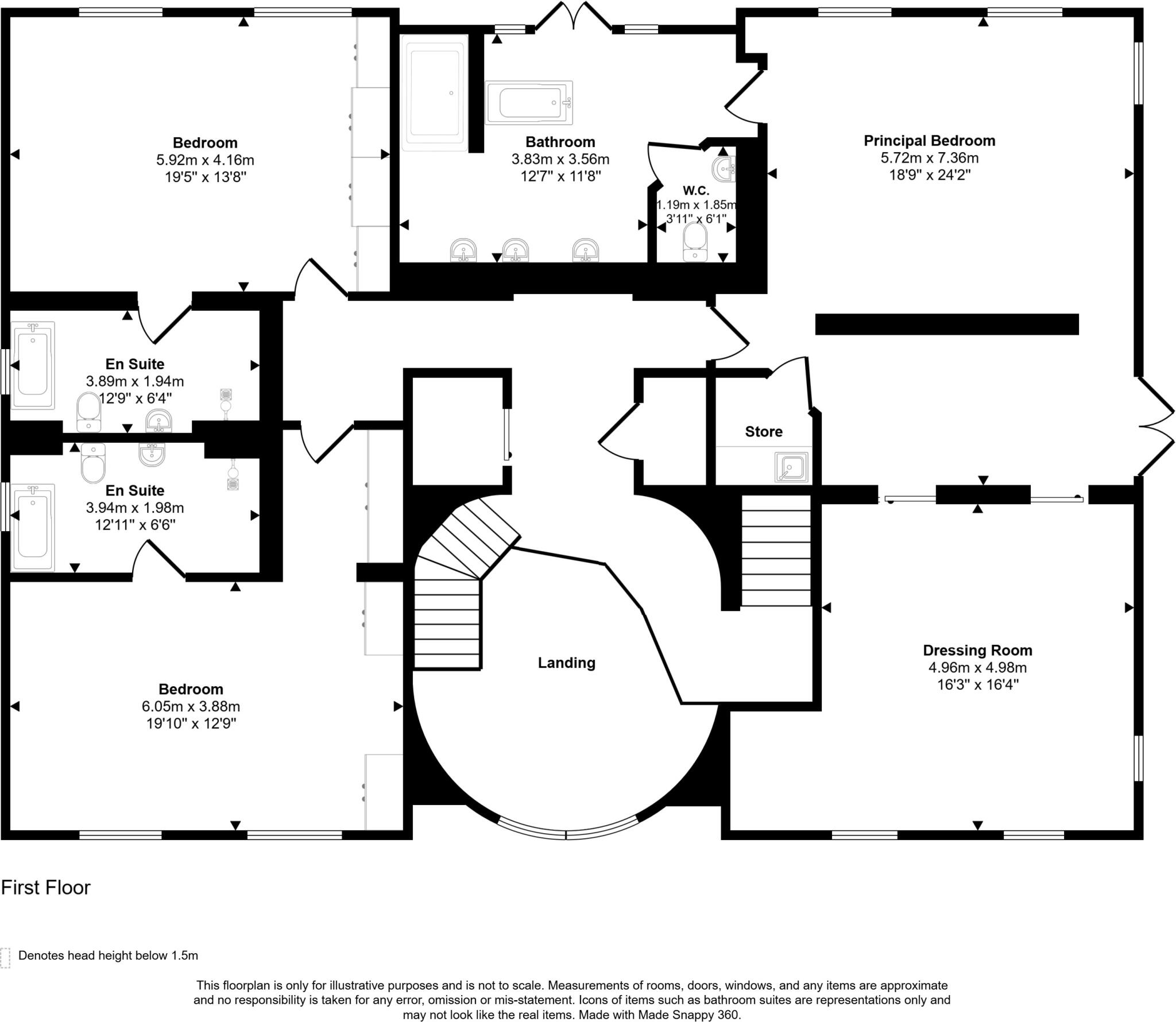
Nestled at the heart of a prestigious neighborhood, this grand Neo-Georgian detached home offers 7,858 sq ft of opulent living space ideal for families seeking comfort and exclusivity. Features include five generously sized en suite bedrooms, a stunning living dining kitchen equipped with high-end Miele appliances, and expansive reception rooms that cater to both entertaining and family life. An elegant private gated entrance leads to manicured gardens and spacious outdoor terraces, perfect for tranquil enjoyment or social gatherings.
This property is tailor-made for those who appreciate quality craftsmanship and modern conveniences, such as underfloor heating and a home lift, ensuring easy accessibility. Located in a low-crime area with local amenities and highly rated schools within proximity, this home not only provides luxury but also a secure and family-friendly environment. With its unique offerings and expansive layout, this residence is a rare find and is chain-free for immediate acquisition—seize the opportunity before it slips away!
6 bedroom detached house for sale in Hale Road, Hale Barns, WA15 — £1,895,000 • 6 bed • 3 bath • 5192 ft²
5 bedroom detached house for sale in Park Road, Hale, WA15 — £1,995,000 • 5 bed • 5 bath • 4180 ft²
5 bedroom detached house for sale in Bankhall Lane, Hale, Altrincham, WA15 — £3,000,000 • 5 bed • 5 bath • 5212 ft²
5 bedroom detached house for sale in Park Road, Hale, Altrincham, WA15 — £1,500,000 • 5 bed • 2 bath • 3054 ft²
6 bedroom detached house for sale in Hale Road, Hale Barns, WA15 8XR, WA15 — £1,500,000 • 6 bed • 4 bath • 2338 ft²
6 bedroom detached house for sale in Hough Lane, Wilmslow, Cheshire, SK9 — £3,250,000 • 6 bed • 6 bath • 6799 ft²


































































































































