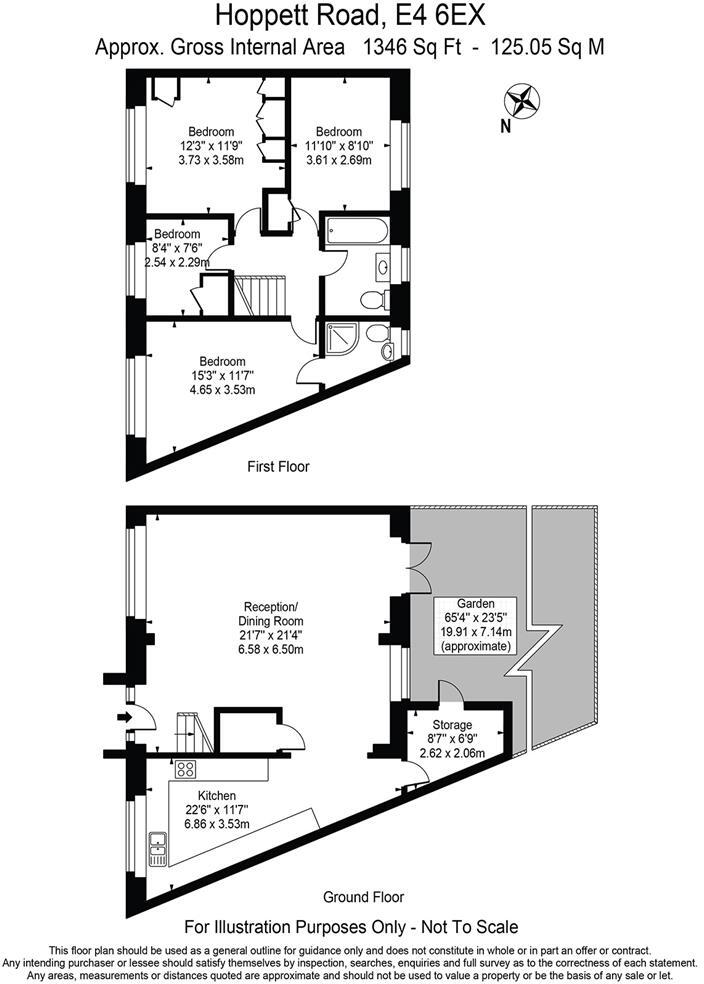
Four bedrooms with en-suite to the principal bedroom
A spacious four-bedroom semi-detached home arranged over two storeys and extended to the side, offering about 1,346 sq ft of family accommodation. The ground floor delivers a large open-plan living area leading to a modern fitted kitchen, plus a useful storage/utility room. Upstairs there are four bedrooms, a family bathroom and an en-suite to the principal bedroom.
Outside, the property benefits from off-street parking and an approximately 65ft rear garden — a rare combination for this price bracket in Chingford. The house is double glazed and heated by mains gas with a boiler and radiators, providing everyday comfort and efficiency.
Location is practical for family life: local shops, cafes, bus routes and Chingford Overground station are within easy reach, and several well-regarded primary and secondary schools are walkable. The large green spaces of Epping Forest and nearby recreational spots suit regular outdoor activity.
Buyers should note some practical points: the walls are cavity-built with no confirmed insulation, and the double glazing install date is unknown, so further energy-efficiency upgrades may be required. The wider area shows indicators of deprivation and average crime levels; council tax is moderate. Offered chain free and freehold, the house is ready for immediate occupation but also has scope for further modernisation or improvement.
4 bedroom semi-detached house for sale in Westward Road, Chingford, London, E4 — £750,000 • 4 bed • 2 bath • 1604 ft²
4 bedroom terraced house for sale in Heriot Avenue, London, E4 — £675,000 • 4 bed • 2 bath • 1568 ft²
4 bedroom terraced house for sale in Whitehall Gardens, North Chingford, E4 — £650,000 • 4 bed • 2 bath • 1399 ft²
4 bedroom semi-detached house for sale in Essex Road, North Chingford, E4 — £1,250,000 • 4 bed • 2 bath • 1633 ft²
2 bedroom terraced house for sale in Mead Crescent, London, E4 — £500,000 • 2 bed • 1 bath • 1015 ft²
4 bedroom semi-detached house for sale in Westward Road, Chingford, London, E4 — £600,000 • 4 bed • 3 bath • 1409 ft²










































































