Modern family home with gardens, garage and strong transport links..
Four bedrooms including master with en-suite
Detached single garage plus driveway for two cars
Front, side and rear gardens; family-friendly outdoor space
EPC rating C; mains gas boiler and radiators
Leasehold with 107 years remaining — check before purchase
Council Tax Band D; moderate local tax level
Excellent mobile signal and fast broadband for home working
Local recorded crime level is high — consider security implications
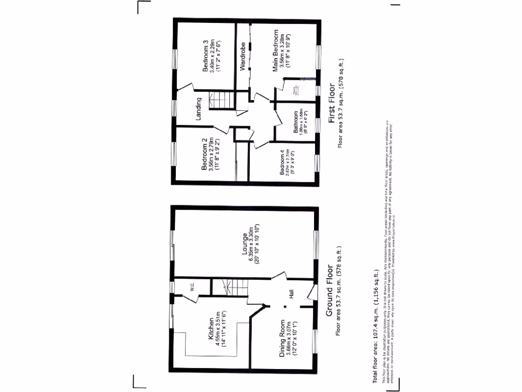
Set on a quiet street in West Allotment, this modern four-bedroom detached home offers comfortable family living with practical space and good transport links. The house, built in the early 2000s, has a bright 20ft lounge, a fitted breakfast kitchen, cloakroom/WC and a master bedroom with en-suite — an easy layout for everyday family routines.
Outside there are front, side and rear gardens, plus a detached single garage and driveway with parking for at least two cars. Broadband speeds are fast and mobile signal is excellent, supporting home working and streaming. The property has double glazing and mains gas central heating and comes with an EPC rating of C.
Important practical points: the property is leasehold with 107 years remaining and sits in a council tax Band D. The immediate area is described as very affluent and family-oriented with good local schools and convenient access to metro, bus services and the A19. Prospective buyers should note the local recorded crime level is high, which may affect long-term desirability for some buyers.
Overall, this is a ready-to-live-in family house that balances modern convenience with sensible running costs. It will suit buyers seeking a well-located, comfortable home with scope to personalise interior finishes over time.
4 bedroom detached house for sale in Cloverfield, West Allotment, Newcastle Upon Tyne, NE27 — £339,950 • 4 bed • 2 bath • 1002 ft²
3 bedroom end of terrace house for sale in Cloverfield, West Allotment, NE27 — £225,000 • 3 bed • 1 bath • 782 ft²
3 bedroom detached house for sale in Cloverfield, West Allotment, Newcastle Upon Tyne, NE27 — £289,950 • 3 bed • 2 bath • 1281 ft²
3 bedroom terraced house for sale in Cloverfield, West Allotment, Newcastle Upon Tyne, NE27 — £250,000 • 3 bed • 2 bath • 1055 ft²
4 bedroom house for sale in Cloverfield, West Allotment, NE27 — £325,000 • 4 bed • 3 bath • 1572 ft²
4 bedroom detached house for sale in Cloverfield, West Allotment, Newcastle Upon Tyne, NE27 — £375,000 • 4 bed • 3 bath • 1329 ft²






































































