Light-filled period home near top schools and central transport links.
Share of freehold tenure with private street-level entrance
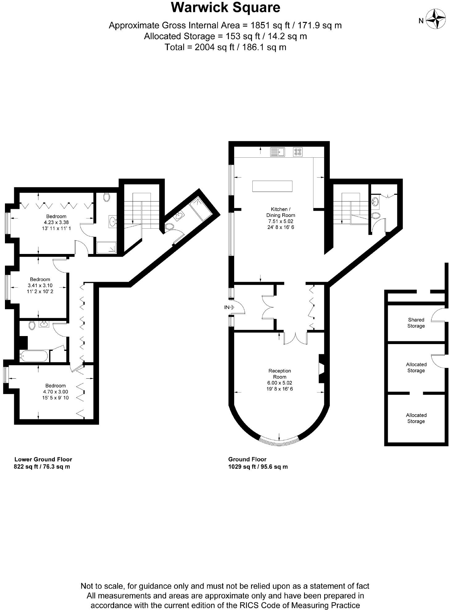
An elegant, Grade II–listed maisonette occupying ground and lower-ground floors of a Georgian corner building in Warwick Square. The apartment extends to around 2,000 sqft (including two allocated storage vaults) and feels very much like a house thanks to its private street-level entrance, excellent ceiling heights and generous room proportions.
The ground floor presents a large open-plan kitchen and dining area, a bright drawing room with bay window and a guest cloakroom — well suited to family living and entertaining. Three double bedrooms sit on the lower ground floor, two with en-suite bathrooms and a separate family bathroom, offering good separation and sound insulation for night-time privacy.
Practical points are straightforward: share of freehold tenure, an annual service charge of £7,105, and no onward chain. The property’s listed status brings attractive period character but will restrict some alterations and could complicate repairs or upgrades. Note also that local crime levels are reported as very high, a material consideration for buyers.
This home is ideally positioned for central London living — close to Pimlico, Victoria and Belgravia amenities, fast broadband and excellent mobile signal, and within walking distance of several strong schools. Some marketing images have been digitally staged (CGI); purchasers should rely on an in-person inspection for finish and condition assessment.
2 bedroom flat for sale in Warwick Square, Pimlico, SW1V — £1,750,000 • 2 bed • 2 bath • 1560 ft²
2 bedroom flat for sale in Warwick Square, London, SW1V — £1,850,000 • 2 bed • 2 bath • 1560 ft²
2 bedroom flat for sale in Warwick Square,
Westminster, SW1V — £1,500,000 • 2 bed • 2 bath • 1125 ft²
3 bedroom flat for sale in Warwick Square, Pimlico, SW1V — £2,000,000 • 3 bed • 3 bath • 1450 ft²
2 bedroom apartment for sale in Warwick Square, London, SW1V — £850,000 • 2 bed • 2 bath • 1049 ft²
1 bedroom flat for sale in Warwick Square, London, SW1V — £695,000 • 1 bed • 1 bath • 657 ft²














































































