**Standout Features:**
- Freehold commercial property in a prime town center location
- Versatile usage suitable for various trades (micropub, café, retail, office)
- Spacious ground floor layout with modern pine staircase to mezzanine level
- Vibrant interior with contemporary decor and ample foot traffic
- Chain-free sale for quick transaction
- Proximity to King Street Market and the harbor
**Potential Concerns:**
- High local crime rate
- Very small plot size
- Requires personal inspection to confirm the condition of utilities and fixtures
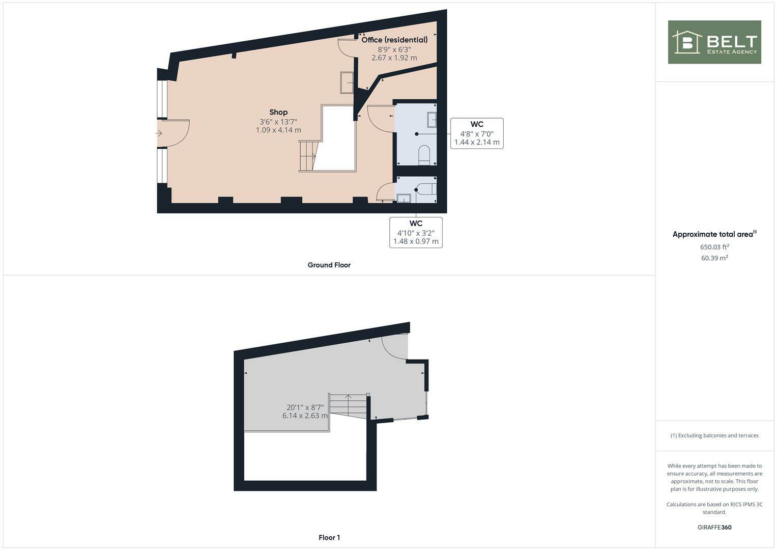
This unique freehold shop offers an exceptional opportunity for entrepreneurs looking to establish a presence in a bustling town center. Located strategically on a prominent road opposite Boyes Store, this double-fronted retail unit boasts 650 sq. ft. of versatile space, ideal for businesses ranging from a micropub to a coffee lounge. The layout comprises a spacious ground floor with a comfortable serving area, complemented by a semi-mezzanine level that can be utilized for additional seating or storage.
The vibrant interior, highlighted by colorful wall decorations, creates an inviting atmosphere for customers, while the property's modern security features ensure peace of mind for ownership. With the potential for expansion into various commercial avenues, this property is a canvas for your entrepreneurial vision. Don't miss out on this rare chance to secure a well-located, chain-free commercial space in a high-traffic area; schedule a viewing today to explore the exciting possibilities this property holds.
Shop for sale in South Cliff Road, Bridlington, YO15 — £295,000 • 4 bed • 1 bath • 1365 ft²
High street retail property for sale in Queen Street, Bridlington, YO15 — £90,000 • 1 bed • 1 bath • 646 ft²
Shop for sale in South Cliff Road, Bridlington, East Riding of Yorkshire, YO15 — £5,000 • 1 bed • 1 bath
High street retail property for sale in King Street, Bridlington, East Riding of Yorkshire, YO15 — £200,000 • 1 bed • 1 bath • 3615 ft²
Shop for sale in Queen Street, Bridlington, East Yorkshire, YO15 — £125,000 • 1 bed • 1 bath • 1866 ft²
Commercial property for sale in Retail, East Yorkshire, YO15 — £19,950 • 1 bed • 1 bath










































