Central location with parking and extension in place — suited to cash buyers or investors.
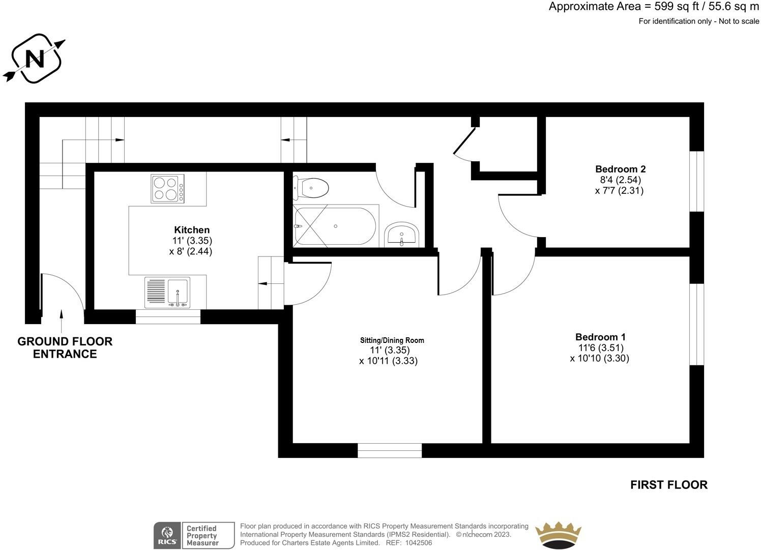
- Two bedrooms, approximately 599 sq ft first-floor maisonette
- Private entrance, separate sitting/dining room
- Resident off-street parking for one car
- Leasehold with c.63–66 years remaining (issue for lenders)
- Offered with lease extension prepared for completion
- Cash buyers only likely due to lease length
- Electric room heaters; likely higher running costs
- No forward chain; low ground rent £25 pa
A two-bedroom first-floor maisonette in central Bishopstoke, offered with no forward chain and a private entrance. The layout provides a separate sitting/dining room, a fitted kitchen and a modern bathroom across approximately 599 sq ft, suitable for an investor or buyer seeking a project with immediate rental potential.
The property is being sold leasehold with around 63–66 years unexpired; a lease extension has been prepared for completion. Because of the limited unexpired term, most mortgage lenders may refuse lending, so purchase is effectively restricted to cash buyers unless you secure specialist financing. Annual ground rent is low at £25 and there is no service charge indicated.
Practical positives include resident off-street parking, good local amenities within walking distance, excellent mobile signal and fast broadband—useful for tenants or home-working. Heating is by electric room heaters and the building appears to have original cavity walls with assumed no insulation, so expect running-cost and improvement works.
The maisonette presents clear refurbishment potential: cosmetic updating and thermal improvements would enhance comfort and long-term value. Be aware of the material constraint around the lease length and potential lender refusal; buyers should verify all lease and legal details with their solicitor before exchange.
1 bedroom flat for sale in Sedgwick Road, Bishopstoke, SO50 — £120,000 • 1 bed • 1 bath • 334 ft²
1 bedroom maisonette for sale in Torch Close, Bishopstoke, Eastleigh, SO50 — £150,000 • 1 bed • 1 bath • 431 ft²
1 bedroom ground floor maisonette for sale in Derby Road, Eastleigh, SO50 — £155,000 • 1 bed • 1 bath • 387 ft²
2 bedroom apartment for sale in Elkins Square, Bishopstoke, Eastleigh, SO50 8HF, SO50 — £185,000 • 2 bed • 2 bath • 632 ft²
1 bedroom ground floor flat for sale in Merryoak! Cash Buyers Only! No Forward Chain!, SO19 — £100,000 • 1 bed • 1 bath • 420 ft²
2 bedroom maisonette for sale in Tichborne House, Lower Northam Road, Hedge End, SO30 — £189,999 • 2 bed • 1 bath • 430 ft²


















































