Spacious family home with lodge and stunning open views.
- Approximately one acre of mature, landscaped gardens
- Four double bedrooms; two recently refurbished en-suites
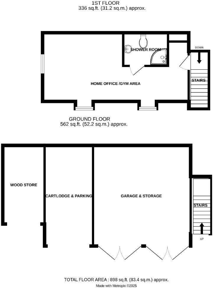
- Triple bay cart lodge with versatile room above (office/gym)
- Gated driveway parking for several vehicles
- Annexe potential subject to planning consent
- Oil central heating and private water treatment plant
- Fast Gigaclear fibre and excellent mobile signal
- Council tax noted as quite expensive
Set in about one acre on the peaceful hamlet of Bardfield End Green, this unlisted period detached house combines generous family living with far-reaching countryside views. The ground floor offers three reception rooms, a bright garden room with underfloor heating, and a large kitchen/breakfast room with AGA and utility — built for day-to-day family life and entertaining. Gigaclear fibre provides fast internet for home working or streaming.
Upstairs are four double bedrooms, two recently refurbished en-suites and a family bathroom; the principal bedroom includes extensive fitted storage and exposed timbers. Outside, established formal lawns, a wildflower meadow and orchard create private, varied garden spaces. A triple-bay cart lodge with office/gym above and gated gravel driveway provide ample parking and versatile outbuilding space.
There is clear potential for an annexe subject to planning consent and the lodge's first-floor room already functions well as a home office or gym. Practical notes: the house uses oil central heating and a private water treatment plant; these are typical for rural homes but carry ongoing running and maintenance costs. Council tax is described as quite expensive.
For buyers seeking rural family living with scope for adaptation — or those wanting a countryside base with strong connectivity and outbuilding potential — this property offers space, character and privacy. Serious consideration should be given to planning requirements for annexe conversion and the longer-term costs of oil heating and private services.
4 bedroom detached house for sale in Monk Street, Thaxted, Dunmow, CM6 — £725,000 • 4 bed • 2 bath • 1937 ft²
6 bedroom detached house for sale in Bardfield Road, Thaxted, Dunmow, CM6 — £750,000 • 6 bed • 3 bath • 2325 ft²
3 bedroom cottage for sale in Cornish Hall End, Braintree, CM7 — £700,000 • 3 bed • 3 bath • 2380 ft²
5 bedroom detached house for sale in Howe Lane, Great Sampford, Saffron Walden, CB10 — £1,385,000 • 5 bed • 4 bath • 3195 ft²
5 bedroom detached house for sale in Tindon End, Great Sampford, Saffron Walden, CB10 — £1,375,000 • 5 bed • 3 bath • 3804 ft²
4 bedroom detached house for sale in Rotten End, Wethersfield, Braintree, CM7 — £625,000 • 4 bed • 3 bath • 3521 ft²


































































































































