**Standout Features:**
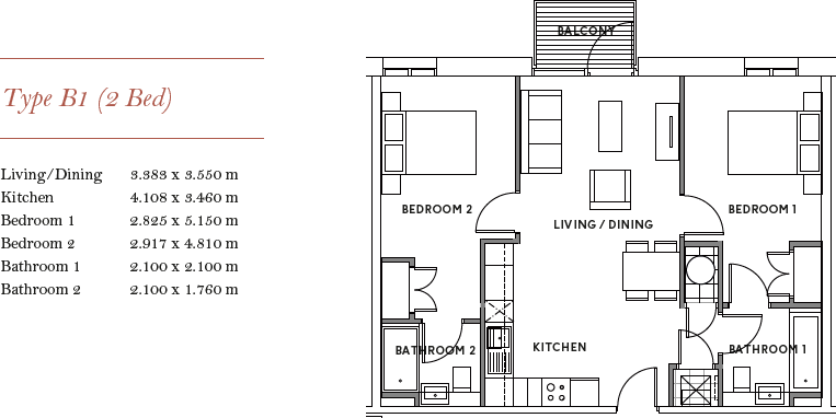
- 2 spacious double bedrooms, each with en-suite bathrooms
- Modern open-plan living area with large windows and Juliet balcony
- Fully equipped kitchen with integrated appliances
- Excellent security with very low local crime rates
- Attractive rental potential in a cosmopolitan neighborhood
**Potential Concerns:**
- Service charge of £2,589.50/year and ground rent of £250/year
- Broadband speeds are very slow
- The area is classified as deprived
Discover urban elegance in this modern 2-bedroom flat located in the vibrant Salford district, known for its youthful energy. Featuring an inviting open-plan living area, this space is perfect for relaxing or entertaining guests. The well-equipped kitchen includes an integrated washing machine, dishwasher, and spacious fridge freezer, enhancing everyday convenience.
Each double bedroom boasts its own en-suite bathroom, ensuring privacy for you and guests. Enjoy views from the Juliet balcony that overlook the picturesque surroundings, inviting natural light into your contemporary home. With excellent low crime rates and an array of local amenities, including shops, schools, and leisure spots, this property is ideal for first-time buyers or investors looking to tap into the rental market.
While the service charges may be a consideration, the comfort and modern appeal of this flat, combined with its location in a thriving community, make it a compelling option that won’t last long on the market. Don’t miss your chance to embrace this lifestyle of convenient urban living!
3 bedroom flat for sale in Local Crescent, Block C 14 Hulme Street, Salford, Manchester, M5 — £400,000 • 3 bed • 2 bath • 981 ft²
2 bedroom flat for sale in 4, Hulme Street, SALFORD, , M5 — £285,000 • 2 bed • 2 bath • 710 ft²
2 bedroom flat for sale in Hulme Street, Manchester, Greater Manchester, M5 — £265,000 • 2 bed • 2 bath • 700 ft²
2 bedroom apartment for sale in 4, Hulme Street, SALFORD, , M5 — £275,000 • 2 bed • 2 bath • 710 ft²
2 bedroom flat for sale in 14 Hulme Street, Salford, M5 — £300,000 • 2 bed • 2 bath • 754 ft²
2 bedroom flat for sale in Hulme Street, Salford, M5 — £278,000 • 2 bed • 2 bath • 710 ft²






















































































































