Characterful, low-maintenance home ideal for families wanting town access.
Chain free freehold terrace under one mile to town and station
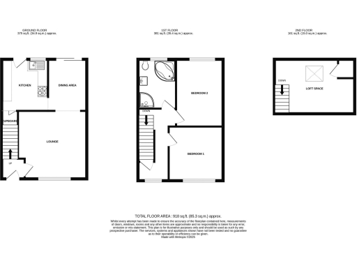
Two double bedrooms plus boarded loft with Velux skylight
Large four-piece bathroom — family-friendly layout
Separate lounge and dining room with patio doors
Fully enclosed, low-maintenance paved rear garden with decking
Double glazing and gas central heating installed
Small plot size; limited garden for extensive outdoor use
Slow broadband speeds despite excellent mobile signal
Tucked on a hillside above Hebden Bridge, this mid-terrace home offers practical family living across three levels. The ground floor provides a separate lounge and dining room with patio doors that open onto a low-maintenance, paved rear garden and decking — a safe outdoor spot for children and pets.
Upstairs are two double bedrooms and a generous four-piece bathroom, while a boarded loft with a Velux skylight gives useful storage and potential to adapt as needs change. The house benefits from double glazing, gas central heating and a freehold tenure; it is available with no onward chain for a quicker move.
The plot is small and the garden is designed for low maintenance rather than extensive outdoor recreation. Broadband speeds are slow in this location despite excellent mobile signal, and the EPC is rated C (EER 69). Overall, the property suits buyers seeking a well-located, characterful two-bedroom home near town and transport, with scope to improve connectivity or adapt the loft space if desired.
2 bedroom terraced house for sale in Edward Street, Hebden Bridge, HX7 — £250,000 • 2 bed • 1 bath • 1202 ft²
2 bedroom terraced house for sale in Broughton Street, Hebden Bridge, HX7 — £165,000 • 2 bed • 1 bath • 840 ft²
3 bedroom terraced house for sale in Slater Avenue, Hebden Bridge, HX7 — £275,000 • 3 bed • 1 bath • 700 ft²
3 bedroom end of terrace house for sale in Railway View, Palace House Road, Hebden Bridge, HX7 — £225,000 • 3 bed • 1 bath • 894 ft²
2 bedroom terraced house for sale in Broughton Street, Hebden Bridge, HX7 8JY, HX7 — £189,950 • 2 bed • 1 bath • 745 ft²
5 bedroom end of terrace house for sale in Mitchell Street, Hebden Bridge, West Yorkshire, HX7 — £310,000 • 5 bed • 1 bath • 1562 ft²


































































