Perfect starter home within easy walking distance of station and shops.
Allocated off-street parking space included
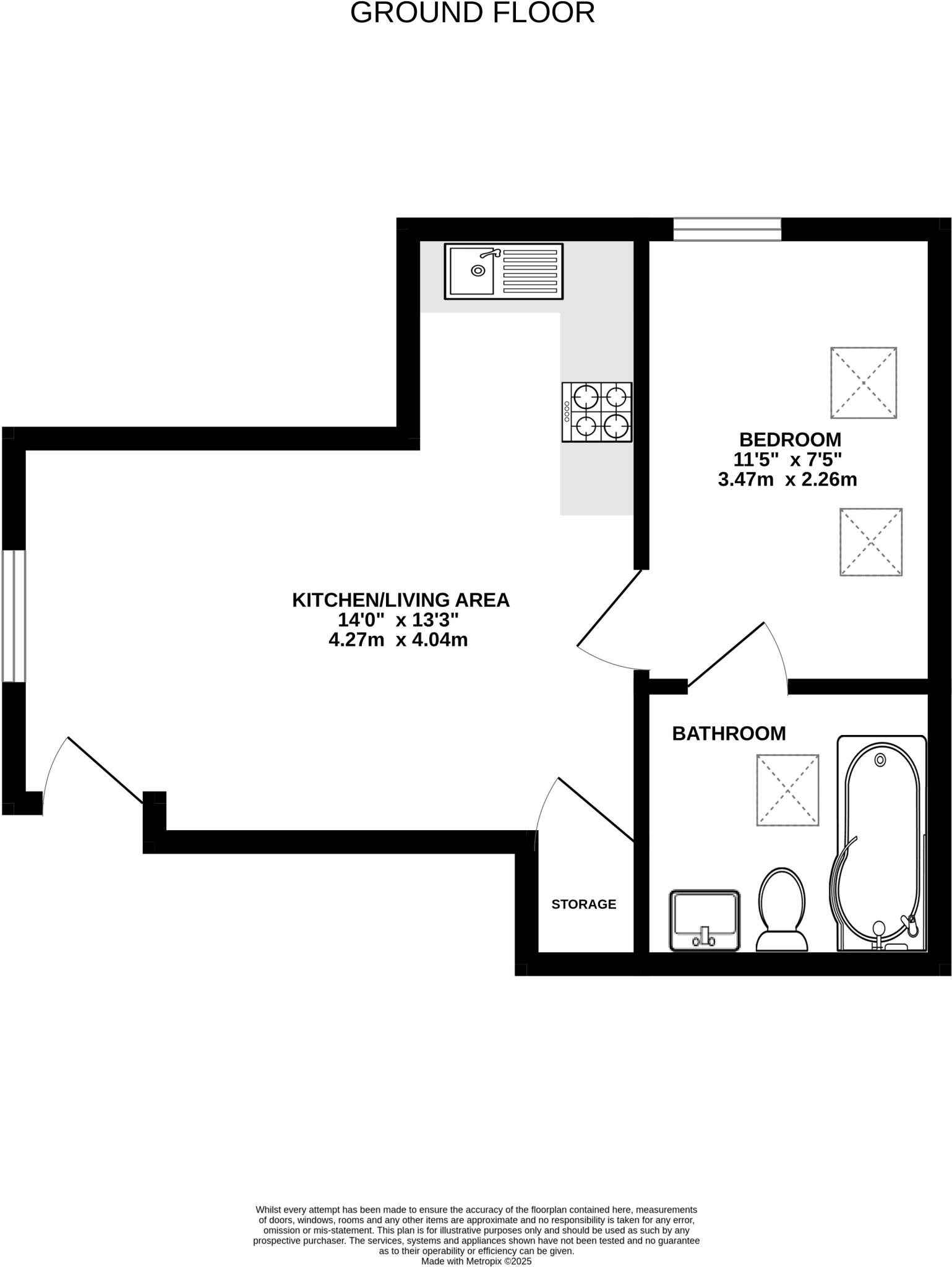
This ground-floor, one-bedroom apartment sits in a bespoke four-home development a short walk from Fleet station and the town centre. The open-plan layout makes efficient use of space, with a contemporary kitchen/living area finished with oak worktops and herringbone tiling — ideal for first-time buyers or buy-to-let purchasers seeking a low-maintenance home in a central location.
Comfort and specification are clear strengths: underfloor heating throughout, a stylish contemporary bathroom, skylights in the principal bedroom and an allocated off-street parking space. The property is new build and remains under warranty, and it has an EPC rating of C (80). The long lease (approximately 991 years remaining) is a practical advantage compared with many leasehold flats.
Buyers should note a few practical points: the apartment is compact and best suited to singles or couples rather than families, and the local recorded crime level is high — check local stats and security options. Service charges, ground rent and exact lease details were not provided (listed as TBC) and should be confirmed by your solicitor before exchange.
Overall this is a well-specified, low-upkeep apartment in a very convenient Fleet location. It offers sensible rental or starter-home potential, but prospective purchasers should verify running costs, charges and local security considerations before committing.
2 bedroom flat for sale in Clarence Road, Fleet, Hampshire, GU51 — £225,000 • 2 bed • 1 bath • 351 ft²
1 bedroom apartment for sale in Fleet Road, Fleet, Hampshire, GU51 — £190,000 • 1 bed • 1 bath • 407 ft²
1 bedroom apartment for sale in Fleet Road, Fleet, GU51 — £190,000 • 1 bed • 1 bath • 407 ft²
1 bedroom apartment for sale in Fleet Road, Fleet, GU51 — £180,000 • 1 bed • 1 bath • 424 ft²
1 bedroom apartment for sale in Old Dairy Close, Fleet, Hampshire, GU51 — £180,000 • 1 bed • 1 bath • 540 ft²
1 bedroom apartment for sale in Principle House, Fleet Road, Fleet, GU51 — £195,000 • 1 bed • 1 bath • 535 ft²






















































