Move-in ready two-bedroom with expansion potential for first-time buyers.
Chain free end-terrace with freehold title
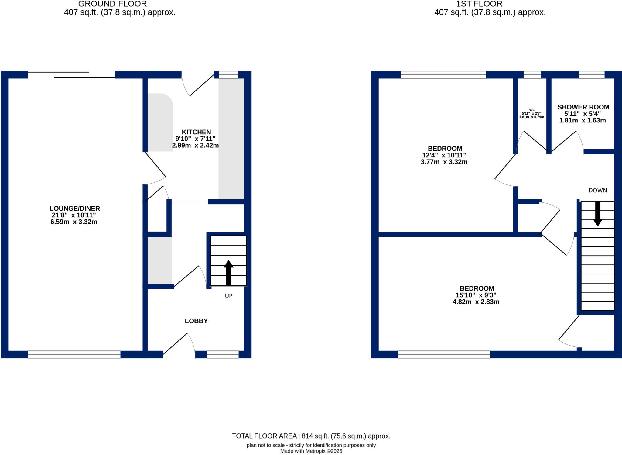
Newly renovated: modern kitchen and full rewire throughout
Large rear garden; potential to create three bedrooms
Driveway providing off-street parking
814 sq ft total; average-sized overall footprint
Very deprived area with higher-than-average local crime
Cheap council tax and excellent mobile/fast broadband
Close to schools, local shops, Headingley and Ring Road
This chain-free, end-terrace house offers a practical first step onto the property ladder. Newly renovated throughout with a modern fitted kitchen and a full rewire, the home feels fresh and move-in ready. The 814 sq ft layout includes two good bedrooms and the space to create a third bedroom, as neighbouring houses have done.
A large rear garden and driveway add real everyday value — outdoor space for children, pets or entertaining, plus off-street parking. The property is freehold and positioned for easy access to local shops, Headingley’s amenities and the Ring Road, making commutes and weekend plans straightforward.
Be realistic about the location: this part of LS16 is classed as very deprived with higher-than-average crime and hampered neighbourhood characteristics. While the house itself has been refurbished to a modern standard, prospective buyers should weigh local social factors alongside the property’s strong physical condition and running-cost advantages (cheap council tax, excellent mobile signal, fast broadband).
For first-time buyers seeking affordable space and expansion potential, this end-terrace is a solid, low-hassle option. The combination of recent electrical work, a contemporary kitchen and a sizeable garden gives immediate comfort with scope to add value over time.
2 bedroom semi-detached house for sale in Old Oak Drive, Leeds, LS16 — £190,000 • 2 bed • 1 bath • 777 ft²
2 bedroom town house for sale in Normanton Place, Leeds, West Yorkshire, LS11 — £140,000 • 2 bed • 1 bath • 792 ft²
3 bedroom semi-detached house for sale in Ramshead Approach, Leeds, West Yorkshire, LS14 — £220,000 • 3 bed • 1 bath • 1012 ft²
3 bedroom end of terrace house for sale in Monkswood Bank, Leeds, LS14 — £152,000 • 3 bed • 1 bath • 846 ft²
2 bedroom terraced house for sale in Farndale Garth, Leeds, LS14 — £165,000 • 2 bed • 1 bath • 829 ft²
2 bedroom terraced house for sale in Farndale Garth, Leeds, West Yorkshire, LS14 — £165,000 • 2 bed • 1 bath • 815 ft²






































