Low-maintenance two-bed with parking and west-facing garden in Welford-on-Avon.
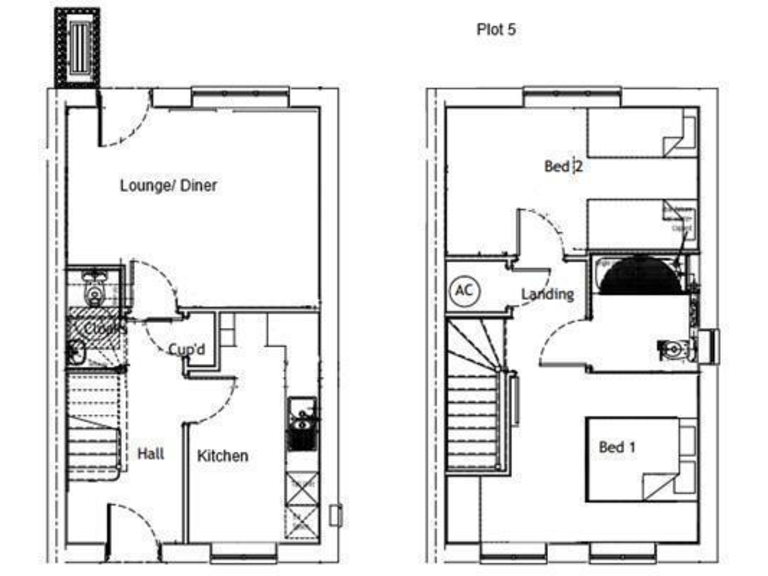
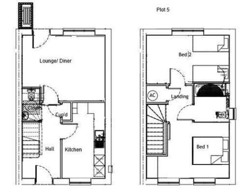
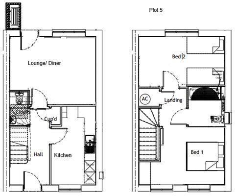
Two double bedrooms — both roomy enough to be a master
Tucked away on a quiet private lane in sought-after Welford-on-Avon, this well-presented two double-bedroom home was built in 2017 and offers contemporary, low-maintenance living. The ground floor features a modern kitchen/breakfast room to the front, a bright living/dining area at the rear with direct access to a west-facing garden, plus a practical downstairs WC. Upstairs there are two generous double bedrooms and a sleek family bathroom with a landing storage cupboard.
Practical everyday living is a strong suit here: two allocated off-street parking spaces, a private west-facing garden that’s easy to maintain, and a pleasant outlook onto mature trees and communal green space. The property is freehold, in a low-crime, affluent village setting with good mobile signal and straightforward access to Stratford-upon-Avon and surrounding countryside.
Considerations are clear and practical. The home is compact with a modest plot and total floor area of around 765 sq ft, so space is best suited to first-time buyers, small families, or investors seeking a low-management rental. Heating is electric via an air-source heat pump; prospective buyers should note the unspecified electricity tariff. Broadband speeds are average rather than superfast, and council tax is moderate.
Overall this is a modern, tidy home that delivers village tranquillity with commuter-friendly access. It presents a low-upkeep opportunity to move straight in, or a sensible base for incremental cosmetic upgrades (kitchen, bathroom or flooring) to add future value.
3 bedroom terraced house for sale in Headland Rise, Welford On Avon, Stratford-Upon-Avon, CV37 — £395,000 • 3 bed • 1 bath • 968 ft²
4 bedroom detached house for sale in Montagues Corner, Chapel Street, Welford on Avon STRATFORD-UPON-AVON, CV37 — £725,000 • 4 bed • 2 bath • 2114 ft²
2 bedroom semi-detached house for sale in Blenheim Road, Stratford-Upon-Avon, CV37 — £285,000 • 2 bed • 2 bath • 645 ft²
2 bedroom end of terrace house for sale in Sandringham Avenue, Stratford-Upon-Avon, CV37 — £290,000 • 2 bed • 2 bath • 765 ft²
3 bedroom detached house for sale in Samantha Close, Welford on Avon, CV37 — £625,000 • 3 bed • 2 bath • 1312 ft²
2 bedroom end of terrace house for sale in Sid Courtney Road, Tiddington, CV37 — £315,000 • 2 bed • 2 bath • 766 ft²






































































































