Lifetime Lease option for over‑60s with planning permission to extend.
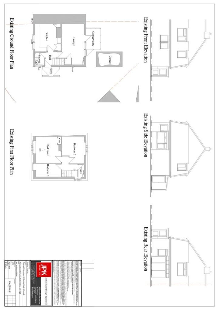
Three bedrooms with downstairs shower and separate first-floor toilet
This semi-detached three-bedroom home on Stretton Road is offered through a Lifetime Lease option for buyers aged 60 and over, with a guide Lifetime Lease price of £93,750 (market price £140,000). The current layout provides comfortable living over two floors, a modern kitchen, reception room and a sun room that opens onto established gardens and off-street parking for two cars.
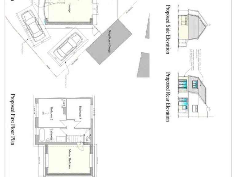
A major advantage is full planning permission already granted for a substantial two-storey rear extension plus a single-storey addition and two front parking spaces — saving time and giving scope to create significantly more space and improved value. The plot is a decent size and the property sits on a mid-20th-century build with double glazing and gas central heating in place.
Buyers should be aware of local and property-specific considerations: the wider area scores as deprived with above-average crime, and the house is described as small overall (approx. 582 sq ft). Wall construction is cavity brick with no installed insulation assumed, so further insulation or energy-efficiency work may be desirable. The Lifetime Lease purchase price depends on the purchaser’s age and chosen safeguarded share (up to 50%).
This home suits an over-60 buyer wanting a lower-cost entry via a Lifetime Lease, or an investor/developer wanting a planning-permitted project. It offers immediate occupation with clear potential for enlargement, but factor in local area challenges and likely retrofit works when assessing suitability.
3 bedroom detached bungalow for sale in Roe Lane, Newcastle, ST5 — £194,250 • 3 bed • 1 bath • 1066 ft²
3 bedroom semi-detached house for sale in Stretton Road, Newcastle, ST5 — £153,000 • 3 bed • 1 bath • 582 ft²
4 bedroom detached house for sale in Geneva Drive, Newcastle, ST5 — £234,500 • 4 bed • 2 bath • 1093 ft²
4 bedroom house for sale in Canary Grove, Wolstanton, Newcastle, ST5 — £191,000 • 4 bed • 1 bath • 758 ft²
3 bedroom semi-detached house for sale in Lilleshall Road, Clayton, Newcastle, ST5 — £154,000 • 3 bed • 1 bath • 1094 ft²
3 bedroom bungalow for sale in Birkholme Drive, Stoke-On-Trent, ST3 — £288,000 • 3 bed • 2 bath • 1132 ft²


















































































