Low-price project with strong rental upside for hands-on investors.
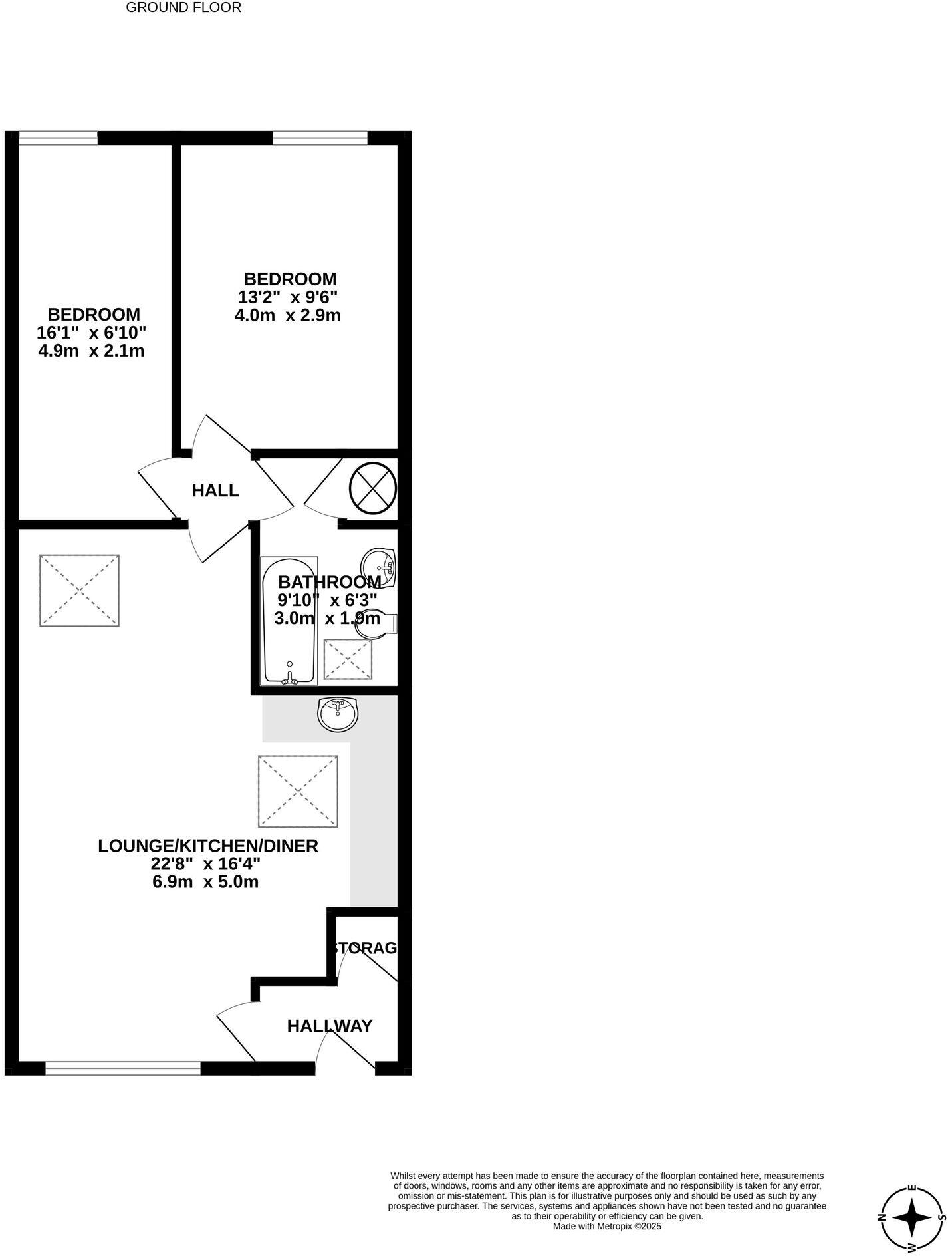
Chain-free first-floor two-bedroom flat, approx. 646 sq ft
Requires renovation: kitchen, bathroom, damp and ceiling repairs
Lease c.78 years — lenders may refuse mortgages
EPC F; poor energy efficiency, likely insulation work needed
Electric room heaters; no central heating system
Westerly terrace; positioned above retail with street access
High crime area and very deprived locality — tenant profile impacted
Good rental yield potential at this price for experienced investors
This first-floor, two-bedroom flat on Saltersgill Avenue is a low-cost, chain-free purchase aimed at experienced buy-to-let investors. The property occupies approximately 646 sq ft and sits above retail units close to schools, transport links and James Cook University Hospital, offering straightforward rental demand in a city setting.
The flat requires a degree of refurbishment: cosmetic updating, bathroom and kitchen modernisation, and attention to damp and ceiling damage noted in communal and internal areas. Heating is by electric room heaters and the building has PVCu double glazing; cavity walls are assumed uninsulated, so energy efficiency is poor (EPC F).
Notable practical considerations: the lease has around 78 years remaining and mortgage lenders could refuse lending; full lease and management details are pending. The area records high crime and very high deprivation, which affects tenant profiles and long-term capital growth but can support strong yields at this price point.
For the right investor this is a value-driven project: low purchase price, no onward chain, and clear scope for uplift after basic works. Repairs and lease considerations should be quantified before committing, but once refurbished the flat is suitable for the local rental market seeking proximity to schools and amenities.
2 bedroom flat for sale in Newcomen Green, Longlands, TS4 — £95,000 • 2 bed • 1 bath • 700 ft²
2 bedroom flat for sale in Saltcote, Marton-In-Cleveland, Middlesbrough, TS7 — £70,000 • 2 bed • 1 bath • 513 ft²
2 bedroom flat for sale in Brusselton Court, Stockton-On-Tees, TS18 — £55,000 • 2 bed • 1 bath • 679 ft²
2 bedroom flat for sale in Lockwood Court, Middlesbrough, TS6 — £55,000 • 2 bed • 1 bath • 538 ft²
2 bedroom apartment for sale in Camsell Court, Middlesbrough, TS5 — £67,500 • 2 bed • 1 bath • 584 ft²
1 bedroom duplex for sale in Aspen Drive, Middlesbrough, North Yorkshire, TS5 — £40,000 • 1 bed • 1 bath • 484 ft²














