Spacious three-bedroom conversion with parking and garden near Ilkley Moor.
- Town centre location, short walk to shops and Ilkley Moor
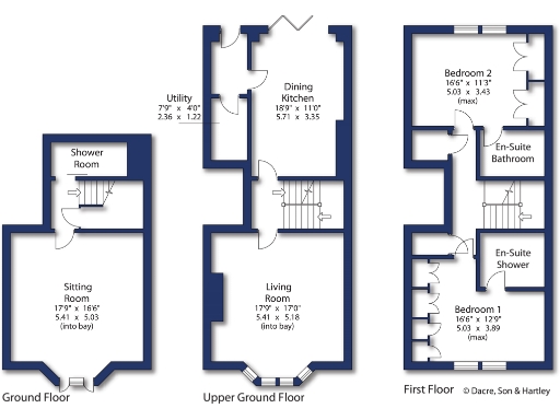
- Spacious three-bedroom conversion, 1,664 sq ft across three floors
- High-spec kitchen with island and separate utility room
- Two luxury en suites; flexible ground-floor room for bedroom or living
- Off-street block-paved parking and southerly courtyard plus garden
- FTTP broadband and mains gas central heating installed
- Conservation area location may restrict external alterations
- Council Tax Band F and noted higher local crime levels
Set in the heart of Ilkley, this three-bedroom character conversion delivers generous, light-filled accommodation over three floors with high ceilings, large windows and period stonework. The property combines Victorian charm with a high-spec kitchen, two luxury ensuites and a flexible ground-floor room that could serve as a third bedroom or formal living space.
Practical benefits include a block-paved driveway for off-street parking, a secluded southerly courtyard and a larger landscaped rear garden with direct access onto Albany Walk. Modern conveniences are covered too, with a separate utility room, FTTP broadband and mains gas central heating via a boiler and radiators.
Notable considerations: the house lies within Ilkley’s conservation area, which may restrict some external alterations. The plot is relatively small for the property size, and the local council tax is Band F (expensive). The listing notes higher local crime levels — buyers should satisfy themselves on security and insurance implications.
Offered freehold and chain free, this home suits buyers seeking a well-appointed, central Ilkley base close to shops, schools and the moor. It will particularly appeal to families wanting generous living space with character, or professionals wanting a town-centre location with commuter links.
3 bedroom terraced house for sale in Nile Road, Ilkley, LS29 — £399,000 • 3 bed • 1 bath • 1137 ft²
4 bedroom town house for sale in 22 Leicester Crescent, in the heart of Ilkley, West Yorkshire, LS29 8DX, LS29 — £475,000 • 4 bed • 1 bath • 1314 ft²
3 bedroom apartment for sale in 104, Skipton Road, Ilkley, LS29 — £485,000 • 3 bed • 2 bath • 1302 ft²
2 bedroom terraced house for sale in Crescent Terrace, Ilkley, LS29 — £275,000 • 2 bed • 1 bath • 715 ft²
3 bedroom end of terrace house for sale in Ash Street, Ilkley, West Yorkshire, LS29 — £350,000 • 3 bed • 2 bath • 1257 ft²
3 bedroom town house for sale in Maufe Way, Ilkley, West Yorkshire, LS29 — £550,000 • 3 bed • 2 bath • 1104 ft²






























































