Low-maintenance two-bedroom bungalow in an exclusive Burford courtyard, modern and energy-efficient..
Two double bedrooms in single-storey layout ideal for downsizers
Built 2019 — modern construction with good thermal performance
Air-source heat pump with underfloor heating — energy-efficient system
Open-plan living/dining with vaulted ceiling and skylight
Small private garden and courtyard — low-maintenance outdoor space
Single bathroom only — may be limiting for frequent guests
Electric main fuel; tariff unspecified — check projected energy costs
Freehold property in very low-crime village location
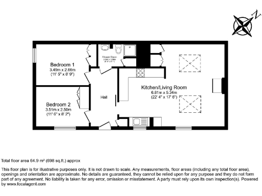
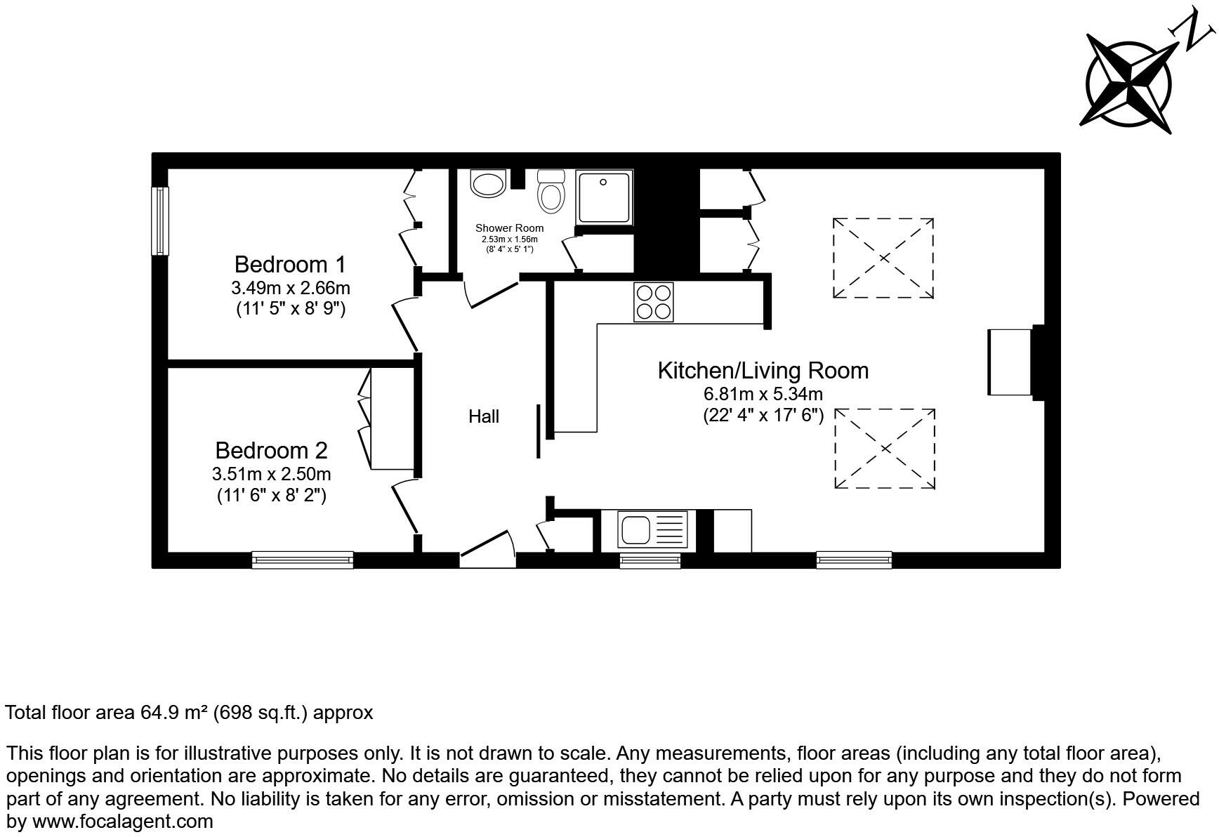
Set within a small exclusive courtyard on the edge of Burford, this two-bedroom bungalow offers a low-maintenance, single-storey home suited to downsizers or those seeking village life. The layout is open-plan with a bright living/dining space, vaulted ceiling and skylight that gives a roomy feel despite the compact footprint. A wood-burning stove and contemporary finishes add character and warmth.
Built in 2019 and offered freehold, the property benefits from modern construction standards and good thermal performance. Heating is via an air-source heat pump with underfloor distribution, which should keep running costs lower than direct electric heating. Broadband speeds are fast and local crime is very low, supporting comfortable, connected living in a peaceful setting.
Practical points to note: the plot and garden are small, and there is a single bathroom — important if you regularly host visitors. The property runs on electricity with an unspecified tariff, so prospective buyers should confirm likely energy bills despite the efficient heat-pump system. Mobile signal is average in the area.
This bungalow sits close to Burford’s amenities and well-rated schools, making it an attractive step-down home for couples or professionals wanting village atmosphere with modern comforts. Its ready-to-live-in condition reduces immediate renovation needs, while the courtyard setting provides a manageable outdoor area and a sense of privacy.
3 bedroom bungalow for sale in Frethern Close, Burford, OX18 — £395,000 • 3 bed • 2 bath • 864 ft²
2 bedroom bungalow for sale in Fiddlers Hill, Shipton-under-Wychwood OX7 6DR, OX7 — £625,000 • 2 bed • 2 bath • 1109 ft²
2 bedroom bungalow for sale in Long Barn, Sturt Farm, Oxford Road, Burford, Oxfordshire, OX18 — £525,000 • 2 bed • 2 bath • 1031 ft²
2 bedroom semi-detached house for sale in Windrush Close, Burford, Oxfordshire, OX18 — £370,000 • 2 bed • 1 bath • 737 ft²
2 bedroom detached bungalow for sale in Edgeworth Drive, Carterton, Oxfordshire, OX18 — £325,000 • 2 bed • 1 bath • 572 ft²
3 bedroom bungalow for sale in Witney, Oxfordshire, OX29 — £400,000 • 3 bed • 1 bath • 1607 ft²














































