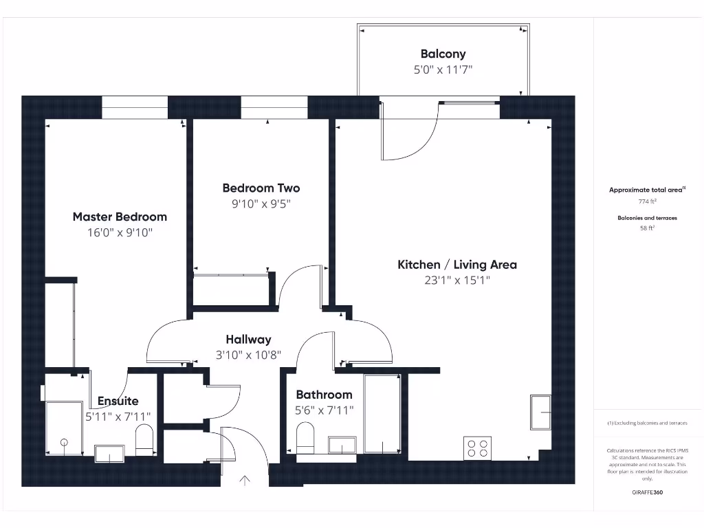
Bright open-plan living with integrated appliances and two parking spaces.
River and green views from private balcony
Set on Glen Island within the award-winning Taplow riverside development, this two-bedroom apartment offers bright open-plan living and a private balcony with pleasant river and green-view aspects. The kitchen is fitted with integrated Siemens appliances and the bathrooms are Villeroy & Boch, delivering a modern, high-spec finish. Underfloor heating and two allocated off-street parking spaces add daily convenience for a small family or professional couple.
Practical details to note: the home is leasehold (992 years remaining), chain free and served by secure entry and communal landscaping. It sits 0.8 miles from Taplow station (Elizabeth Line), making commutes straightforward. Service charges average £2,582 per year and ground rent is £400 per year.
Be honest about local constraints: the property sits in a medium flood-risk zone and local recorded crime levels are higher than average, which may influence insurance and family safety decisions. The apartment is well presented but buyers seeking a freehold house, lower running costs or minimal area crime should weigh these factors.
Overall this apartment will suit buyers wanting a stylish, move-in-ready riverside base with strong transport links and generous living space. It represents comfortable riverside living with good long-term lease security, but budget for service charges, ground rent and consider flood and local crime implications when deciding to view.
1 bedroom apartment for sale in Glen Island, Taplow, Maidenhead, SL6 — £450,000 • 1 bed • 1 bath • 818 ft²
2 bedroom apartment for sale in Glen Island, Taplow, Buckinghamshire, SL6 — £749,950 • 2 bed • 2 bath • 1132 ft²
2 bedroom flat for sale in Glen Island, Taplow, SL6 — £735,000 • 2 bed • 2 bath • 963 ft²
2 bedroom apartment for sale in River Road, Taplow, SL6 — £460,000 • 2 bed • 2 bath • 875 ft²
2 bedroom apartment for sale in River Road, Taplow, Maidenhead, Buckinghamshire, SL6 — £460,000 • 2 bed • 2 bath • 875 ft²
2 bedroom apartment for sale in Court Road, Maidenhead, SL6 — £385,000 • 2 bed • 2 bath • 737 ft²


































































