Energy-efficient three-storey family house with large private garden.
Open-plan kitchen, dining and family area with French doors to garden
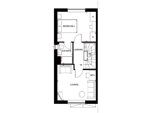
A modern, energy-efficient new build arranged over three floors, this Kingsgate end-of-terrace home suits families who value light, low-maintenance living and outdoor space. The ground floor’s free-flowing kitchen, dining and family area opens through French doors onto a large private garden — great for children and summer entertaining. The lounge and main bedroom with en suite occupy the first floor, with two further bedrooms and a family bathroom on the top floor. A small additional room is offered as a study or home office.
Practical benefits include contemporary finishes, built-in energy-efficiency features and private parking as part of a sympathetically landscaped cul-de-sac setting. The property sits in an affluent, settled area with nearby primary schools rated Good and Outstanding, and easy access to local leisure and community amenities.
Important practical notes: the total internal floor area is compact (approx. 762 sq ft), so rooms are efficient rather than generous. Broadband speeds are reported as very slow, and tenure details are not confirmed in the listing — buyers should check connectivity and ownership/estate charges before exchange. Flood risk is nil and crime is average for the area.
4 bedroom detached house for sale in Kingsgate,
Bridlington,
East Riding of Yorkshire, YO15 3NG, YO15 — £320,000 • 4 bed • 1 bath • 874 ft²
4 bedroom end of terrace house for sale in Kingsgate,
Bridlington,
East Riding of Yorkshire, YO15 3NG, YO15 — £245,000 • 4 bed • 1 bath • 360 ft²
3 bedroom end of terrace house for sale in Kingsgate,
Bridlington,
East Riding of Yorkshire, YO15 3NG, YO15 — £240,000 • 3 bed • 1 bath • 654 ft²
4 bedroom detached house for sale in Kingsgate,
Bridlington,
East Riding of Yorkshire, YO15 3NG, YO15 — £295,000 • 4 bed • 1 bath • 897 ft²
3 bedroom end of terrace house for sale in Kingsgate,
Bridlington,
East Riding of Yorkshire, YO15 3NG, YO15 — £230,000 • 3 bed • 1 bath • 736 ft²
3 bedroom end of terrace house for sale in Kingsgate,
Bridlington,
East Riding of Yorkshire, YO15 3NG, YO15 — £230,000 • 3 bed • 1 bath • 736 ft²


































































