Characterful renovated apartment with private garden in Midhurst Old Town.
Newly renovated one-bedroom apartment, ready to move into
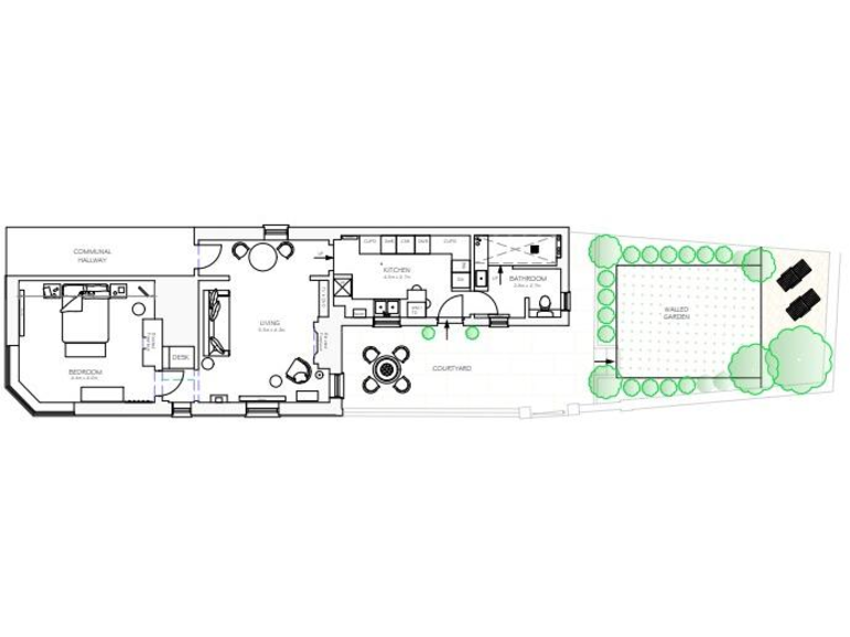
Quiet, characterful and freshly refurbished, this one-bedroom apartment sits in Midhurst’s Old Town on the edge of the South Downs National Park. Recent works have combined period details — high ceilings, an ornate chandelier and decorative wallpaper — with a contemporary kitchen, bathroom and quality joinery for a boutique, ready-to-live-in finish.
The principal bedroom is dual-aspect and light-filled; the living room feels generous for the property type. A private rear garden and separate rear access provide a rare outdoor space for an apartment, ideal for summer evenings or low-maintenance gardening. Local shops, cafés and good transport links are all within easy reach.
This home will suit a single occupant, couple or downsizer seeking low-maintenance, characterful accommodation in an affluent, low-crime town. It will also appeal to investors looking for a straightforward let in a desirable location. Buyers should note the overall footprint is compact and rooms are average in size for a flat of this type. Tenure and council tax details are not provided and should be confirmed prior to offer.
Practical information: broadband speeds are average with excellent mobile signal; the property sits in a self-sufficient retirement / ageing rural neighbourhood classification and benefits from South Downs National Park proximity. The apartment has been newly renovated but remains small in total area, so consider storage and layout against individual needs.
1 bedroom flat for sale in Bepton Road, Midhurst, GU29 9NB, GU29 — £200,000 • 1 bed • 1 bath • 731 ft²
1 bedroom flat for sale in Petersfield Road, Midhurst, West Sussex, GU29 — £180,000 • 1 bed • 1 bath • 475 ft²
2 bedroom apartment for sale in Drake Cottage, Duck Lane, Midhurst, West Sussex, GU29 — £215,000 • 2 bed • 1 bath • 917 ft²
1 bedroom flat for sale in Russell Court, MIDHURST, West Sussex, GU29 — £110,000 • 1 bed • 1 bath • 540 ft²
2 bedroom apartment for sale in Duck Lane, Green Court Duck Lane, GU29 — £300,000 • 2 bed • 2 bath • 1124 ft²
1 bedroom flat for sale in North Street, Midhurst, West Sussex, GU29 — £275,950 • 1 bed • 1 bath • 608 ft²






































































