Chain-free period home with garage and substantial garden near Edgware transport links.
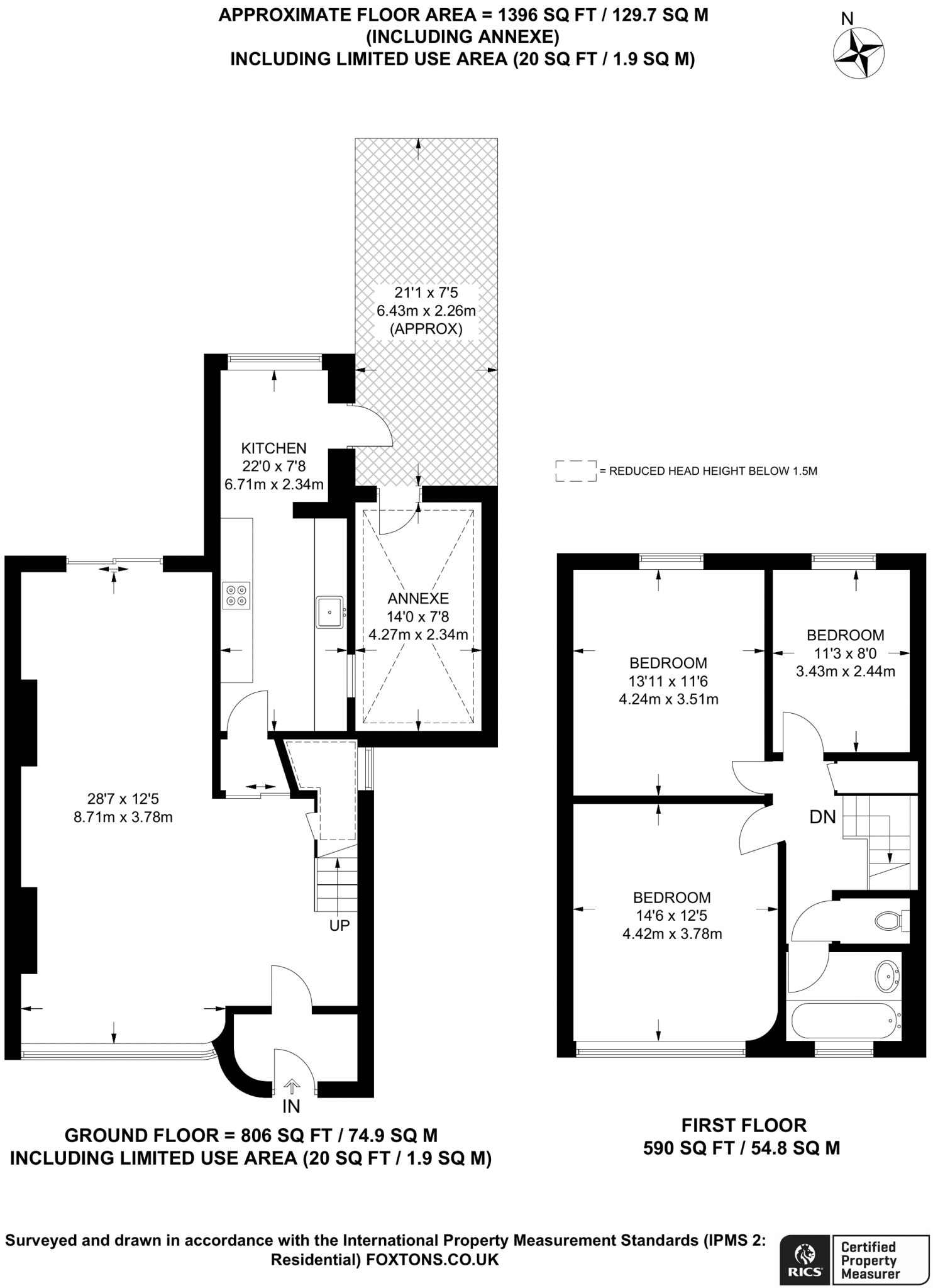
Large 3-bedroom semi-detached house, circa 1,396 sqft
Generous-sized bedrooms throughout
Large rear garden with extension potential
Garage plus off-street parking on driveway
Chain free sale for faster completion
Requires full refurbishment and modernisation throughout
Solid brick walls with assumed no insulation
Single bathroom only; dated fixtures and decor
Set on a large plot in sought-after Hillside Gardens, this 1930s semi-detached house offers substantial living space and clear potential. The property is chain free and includes off-street parking plus a garage, making it practical for families who need storage and vehicle space. Local transport links, including Edgware station, and several well-rated schools are within easy reach.
The house is well proportioned throughout with generous-sized bedrooms and a large rear garden ideal for children or extending (subject to planning). Heating is by mains gas boiler and radiators; double glazing is already installed though dated. The area benefits from very low crime, fast broadband and excellent mobile signal.
The property requires refurbishment throughout: cosmetic updating and possible insulation work for the solid brick walls. There is a single bathroom and fixtures are dated, so buyers should budget for modernization. For buyers seeking a roomy family home or a renovation project in a very affluent, well-connected part of Edgware, this offers strong upside.
3 bedroom end of terrace house for sale in Whistler Gardens, Edgware, HA8 — £550,000 • 3 bed • 1 bath • 891 ft²
3 bedroom semi-detached house for sale in Ranelagh Close, Edgware, HA8 — £665,000 • 3 bed • 2 bath • 1154 ft²
3 bedroom terraced house for sale in Fairfield Crescent, Edgware, Middlesex, HA8 — £529,950 • 3 bed • 1 bath • 826 ft²
3 bedroom semi-detached house for sale in Mollison Way, Edgware, Greater London, HA8 — £614,950 • 3 bed • 1 bath • 1102 ft²
3 bedroom detached house for sale in Whitchurch Gardens, Edgware, HA8 — £849,000 • 3 bed • 1 bath • 1191 ft²
3 bedroom semi-detached house for sale in Palace Court, Harrow, HA3 — £619,950 • 3 bed • 1 bath • 953 ft²


































































