New-build three-bedroom home near station with two parking spaces and NHBC warranty.
Three bedrooms with open-plan living and dining area
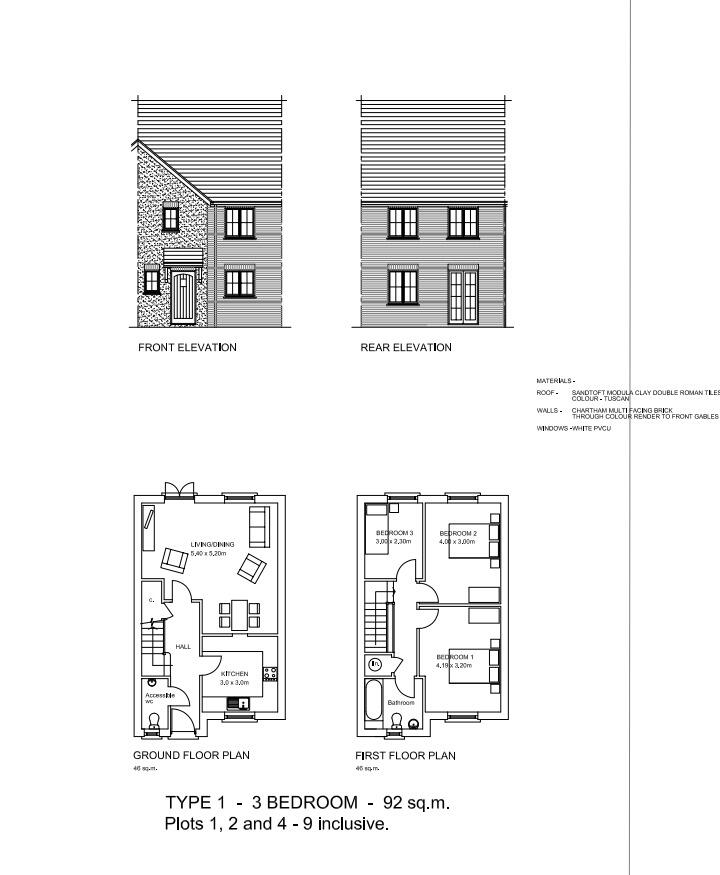
A newly built three-bedroom end-of-terrace home positioned within walking distance of Castle Cary town centre and the local train station. Completed in 2025, the property is offered freehold and comes with a brand-new NHBC warranty on completion, providing standard new-build protections and energy-efficient construction. Two allocated off-street parking spaces plus visitor parking add practical convenience for families or commuters.
Inside, the house offers an open-plan living and dining area, a practical kitchen, three bedrooms and one family bathroom across approximately 92 sq m (990 sq ft). Rooms are average in size and benefit from good natural light through large windows. Buyers reserving early can choose flooring at no extra cost and secure a plot for a £1,000 reservation fee.
Highlights include a very large plot with a rear garden and low running costs indicated by cheap council tax. The development stands in a small-town fringe setting with good mobile signal and fast broadband — useful for home working and commuting. The area is generally stable: average crime, average deprivation and a mix of local primary-sector workers and white-professional households nearby.
Notable drawbacks are factual and should be considered: there is only one bathroom for three bedrooms, which may be limiting for larger households. As a new-build development, landscaping and communal finishes may still be progressing at completion. Buyers who need immediate occupancy should note the completion timing (early autumn 2025) and that this is an off-plan purchase. School ratings in the area are mixed; several local primaries are rated Good, while some nearby schools require improvement.
3 bedroom terraced house for sale in Shorland Row Plot 4, Station Road, Castle Cary, Somerset, BA7 7BY, BA7 — £300,000 • 3 bed • 1 bath • 990 ft²
3 bedroom end of terrace house for sale in Shorland Row Plot 1, Station Road, Castle Cary, Somerset, BA7 7BY, BA7 — £310,000 • 3 bed • 1 bath • 990 ft²
3 bedroom terraced house for sale in Shorland Row Plot 3, Station Road, Castle Cary, Somerset, BA7 7BY, BA7 — £300,000 • 3 bed • 1 bath • 1044 ft²
3 bedroom terraced house for sale in Station Road , Castle Cary, BA7 — £300,000 • 3 bed • 1 bath • 990 ft²
3 bedroom terraced house for sale in Shorland Row Plot 2, Station Road, Castle Cary, Somerset, BA7 7BY, BA7 — £300,000 • 3 bed • 1 bath • 990 ft²
3 bedroom terraced house for sale in Station Road , Castle Cary , BA7 — £300,000 • 3 bed • 1 bath • 1044 ft²






































