**Standout Features:**
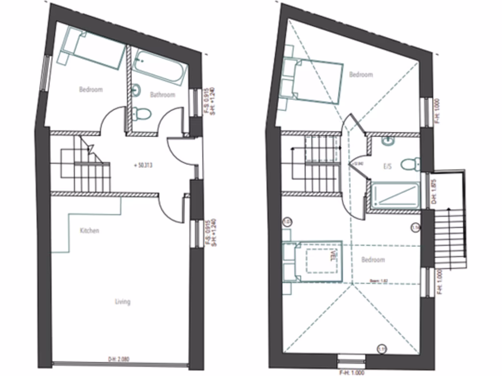
- 3-bedroom detached potential home
- Full planning permission granted for new dwelling
- No Community Infrastructure Levy (CIL) tax
- Large plot with room for parking and gardens
- Utilization of original outbuilding offers cost savings
**Summary:**
Seize a rare opportunity to transform a generous plot on South Street, St. Austell, into a charming 3-bedroom detached home. With full planning permission already in place, buyers can jump straight into construction without the burdensome CIL tax, making this plot a financially savvy choice compared to many others. Positioned for convenience, the property is just a stone’s throw from a variety of amenities, ensuring all essential services are within reach.
The expansive space allows for off-street parking and delightful garden areas, while the prospect of incorporating the existing outbuilding presents both an economical advantage and ample flexibility for future renovations. Although the local area does experience higher crime rates and presents certain economic challenges, this plot's affordability and potential for rental income make it particularly appealing for investors or first-time buyers. Don't miss out on this unique opportunity—perfectly situated in a city rich in community spirit and educational resources.
Land for sale in Bodmin Road, St. Austell, PL25 — £130,000 • 1 bed • 1 bath
Plot for sale in Slades Road, St Austell, PL25 — £79,950 • 1 bed • 1 bath
Plot for sale in Carclaze Road, St Austell, PL25 — £149,950 • 1 bed • 1 bath • 2195 ft²
Plot for sale in Caudledown Lane, Stenalees, St. Austell, PL26 — £85,000 • 2 bed • 1 bath • 614 ft²
Plot for sale in 40 Trenance Road, St. Austell, PL25 — £225,000 • 1 bed • 1 bath
Plot for sale in SINGLE BUILDING PLOT, Lostwithiel, Cornwall, PL22 — £99,950 • 1 bed • 1 bath • 1345 ft²














