Light-filled four-bedroom detached home close to schools and high-speed rail links.
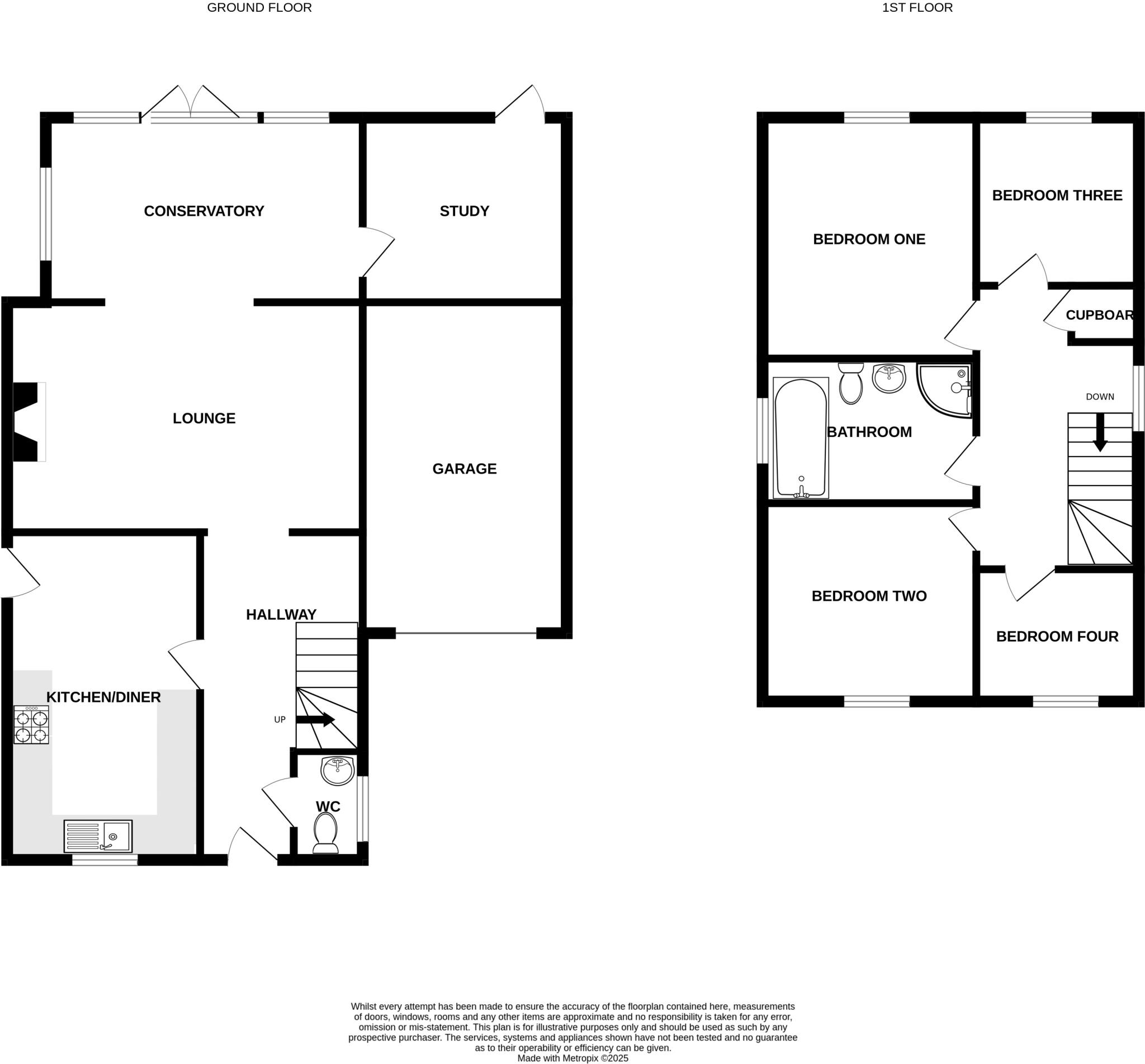
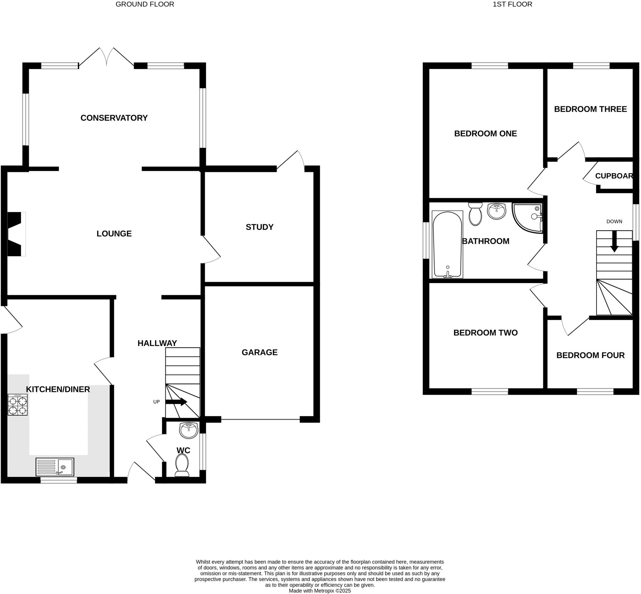
Four bedrooms in a detached cul-de-sac family home
Set back in a quiet Cheriton cul-de-sac, this four-bedroom detached home suits families seeking convenient schooling and fast rail links. The ground floor flows from a large kitchen-diner to a lounge with an open fireplace and an extended conservatory that fills the house with light. A landscaped, low-maintenance rear garden and powered garden shed offer easy outdoor living.
Practical features include off-street parking for multiple vehicles, a semi-converted garage with an office at the rear (convertible back to a full garage), and a downstairs WC. Upstairs are four bedrooms and a family bathroom with both a bath and a walk-in shower — a single bathroom serves all four bedrooms.
The property is freehold, double-glazed and gas central heated, built in the 1980s and presented in good order. EPC band D and Council Tax Band D are noted. The house is compact at about 1,141 sq ft but arranged for comfortable family living close to shops, playgrounds and several well-regarded schools.
This home will appeal to families prioritising location, school access and straightforward, low-maintenance outdoor space. Buyers seeking larger rooms or multiple bathrooms should note the modest overall size and single family bathroom.
4 bedroom detached house for sale in Firs Lane, Folkestone, CT19 — £550,000 • 4 bed • 2 bath • 919 ft²
4 bedroom semi-detached house for sale in Waddington Drive, Hawkinge, Folkestone, CT18 — £350,000 • 4 bed • 1 bath • 1052 ft²
4 bedroom detached house for sale in Archer Road, Folkestone, Kent, CT19 — £375,000 • 4 bed • 2 bath • 1403 ft²
4 bedroom terraced house for sale in Biggins Wood Road, Folkestone, Kent, CT19 — £325,000 • 4 bed • 1 bath • 1528 ft²
4 bedroom detached house for sale in Cornwallis Avenue, Folkestone, CT19 — £450,000 • 4 bed • 3 bath • 1522 ft²
4 bedroom detached house for sale in Cherry Garden Lane, Folkestone, CT19 — £725,000 • 4 bed • 1 bath • 1842 ft²










































































