Immediate rental income with refurbishment upside for hands-on investors.
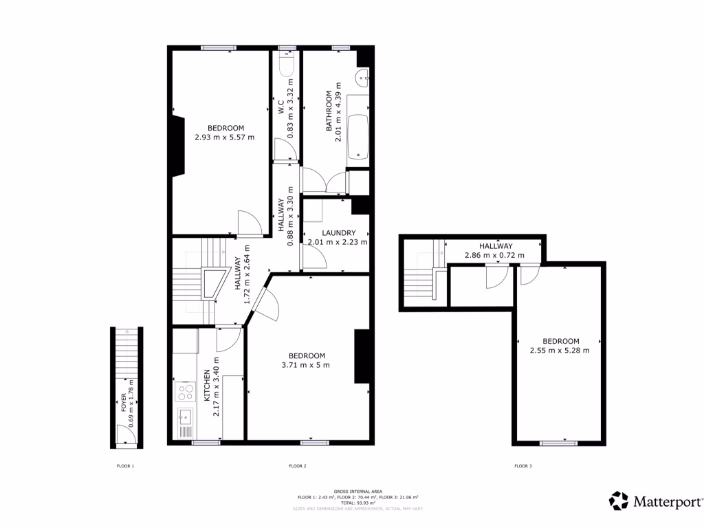
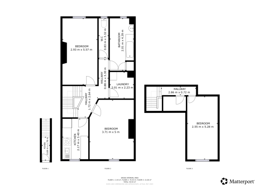
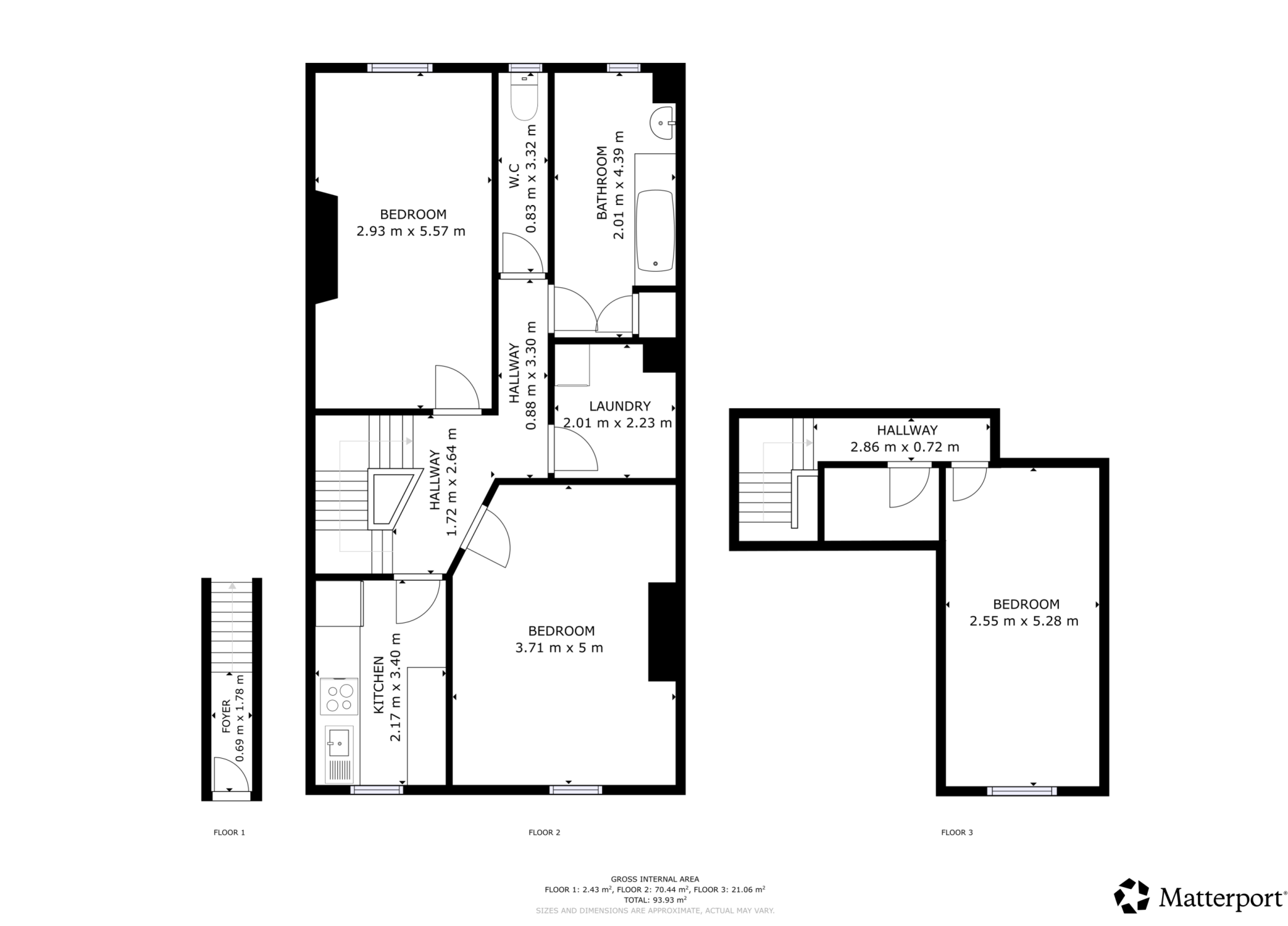
3 bedrooms and 2 bathrooms — multi-storey flat with flexible layout
Private rear garden — useful outdoor space for tenants
On-street parking only — no allocated off-street parking
Tenant in situ generating £17,400 gross pa — immediate income
Leasehold with 105 years remaining — check service charges
Area described as very deprived with very high crime — affects risk
Buyer’s premium applies — additional purchase cost to note
Internal condition and exact room sizes not confirmed — survey advised
Set up as a buy-to-let opportunity in LS7, this three-bedroom flat sits within a Victorian terrace and offers immediate rental income with a tenant in situ. The property produces a reported annual gross income of £17,400, making it attractive to investors seeking an income-generating addition to a portfolio. The flat includes two bathrooms, a private rear garden and contemporary fitted kitchen — useful lettable features in an urban rental market.
Practical details matter: the tenure is leasehold with 105 years remaining, and on-street parking is available. The accommodation is a multi-story layout totalling about 1,195 sq ft (approx.), which is generous for an inner-city flat and gives scope for flexible room arrangements or refurbishment to increase yield. Broadband and mobile signal are strong locally, supporting tenant demand.
Material considerations are clear and should be factored into any valuation. The area is described as very deprived with very high crime levels — both directly affect rental demand, management costs and long-term capital growth. The listing includes a buyer’s premium to secure a transaction; this is an additional cost for purchasers. Internal condition is not fully documented in the images supplied, so buyers should confirm the exact layout, condition and any required works before exchange.
For a hands-on investor or developer, the flat offers medium-term upside through targeted refurbishment or reconfiguration, subject to confirming internal condition and compliance with local licensing. It is best suited to investors comfortable managing an urban rental in a challenging neighbourhood, or to developers able to add value through improvements.
2 bedroom flat for sale in Ainsley Court, Leeds, LS14 — £123,000 • 2 bed • 2 bath • 667 ft²
3 bedroom semi-detached house for sale in Whincover Gardens, Leeds, LS12 — £160,000 • 3 bed • 1 bath • 926 ft²
3 bedroom flat for sale in East Street, Leeds, LS9 — £135,000 • 3 bed • 2 bath • 936 ft²
2 bedroom flat for sale in Gotts Road, Leeds, LS12 — £142,000 • 2 bed • 1 bath • 646 ft²
2 bedroom flat for sale in Elmwood Lane, Leeds, LS2 — £150,000 • 2 bed • 2 bath • 850 ft²
2 bedroom flat for sale in Littlemoor Road, Leeds, LS28 — £107,500 • 2 bed • 2 bath • 570 ft²


























































































