Buy‑to‑let opportunity close to parks, schools and transport links.
Three bedrooms with family bathroom upstairs
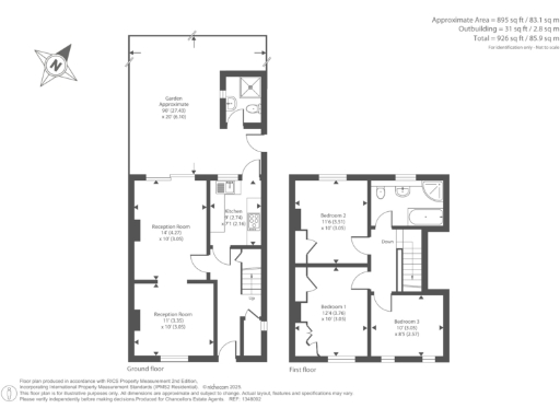
Set on a mid‑century development in North Summertown, this three‑bedroom mid‑terraced house offers straightforward living over two storeys. Downstairs provides a front reception, rear dining room and kitchen, while upstairs holds three bedrooms and a family bathroom. A private rear garden and side access add outdoor space and convenience.
An outbuilding in the garden contains a shower room and WC, useful for conversion to a home office, studio or additional utility area. The property is currently let with tenants in place until February 2026, making it suitable for an investor seeking immediate rental income and a no‑chain sale.
Constructed in the 1950s–60s with cavity walls and double glazing (install date unknown), the house is of average size (approximately 952 sq ft) and will suit buyers comfortable with a property that may benefit from cosmetic updating rather than full refurbishment. Excellent local commuter links, Cutteslowe Park, and strong school catchments increase long‑term appeal.
Important practical notes: the tenancy runs through early 2026, so vacant possession is not immediate. There is no reported flood risk; main heating is mains gas with a boiler and radiators. Council tax is described as affordable.
3 bedroom terraced house for sale in Wren Road, Oxford, Oxfordshire, OX2 — £700,000 • 3 bed • 1 bath • 1023 ft²
3 bedroom end of terrace house for sale in Wolsey Road, Oxford, Oxfordshire, OX2 — £600,000 • 3 bed • 1 bath • 920 ft²
3 bedroom semi-detached house for sale in Linkside Avenue, North Oxford, OX2 — £725,000 • 3 bed • 2 bath • 1084 ft²
3 bedroom semi-detached house for sale in Lovelace Road, Oxford, OX2 — £735,000 • 3 bed • 2 bath • 1221 ft²
3 bedroom terraced house for sale in Lambourn Road, Oxford, OX4 — £375,000 • 3 bed • 1 bath • 846 ft²
3 bedroom terraced house for sale in Bushey Leys Close, Headington, Oxford, OX3 — £375,000 • 3 bed • 1 bath • 843 ft²






















































































