Renovated interior, garage and parking — ideal for first-time buyers.
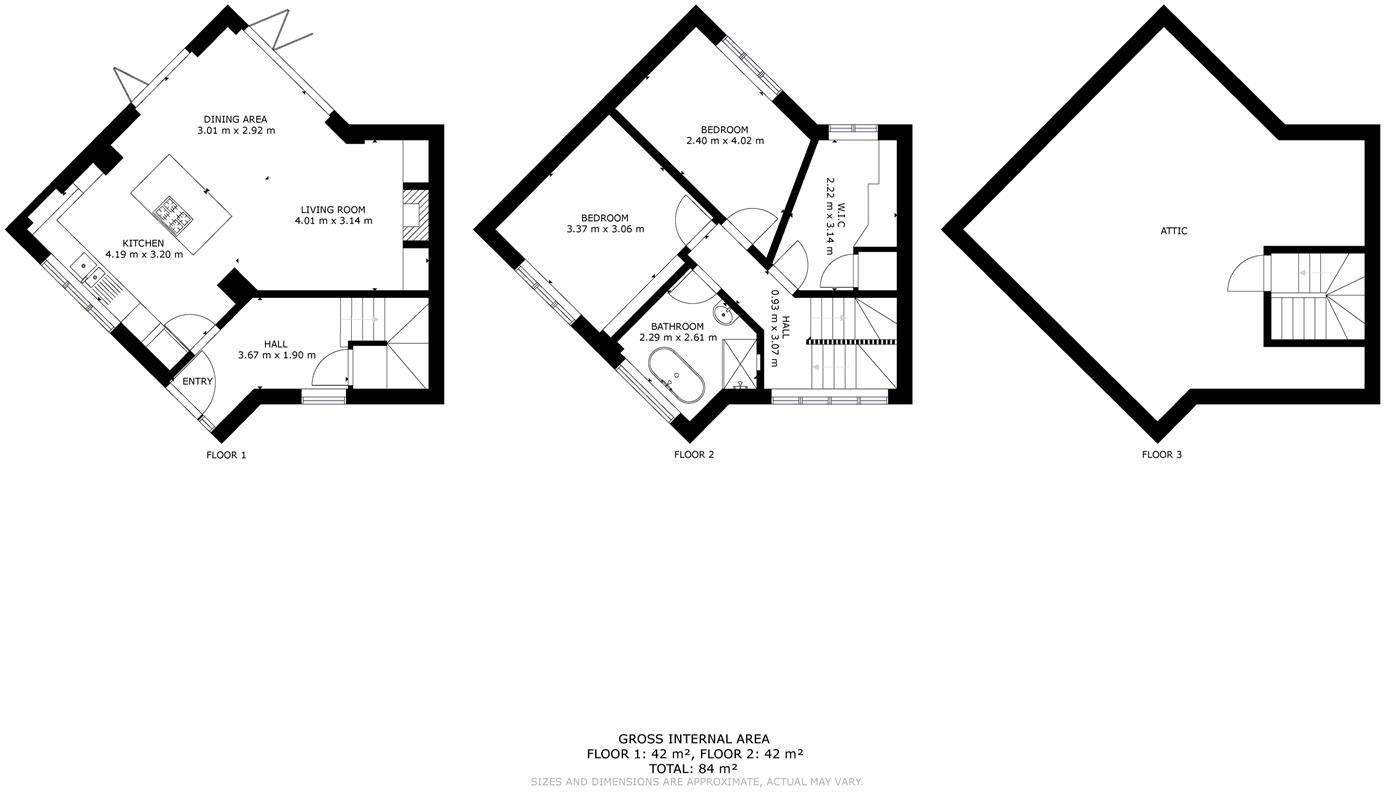
Three bedrooms with extended open-plan kitchen/diner
This recently renovated three-bedroom semi offers bright, modern living across an extended open-plan kitchen/diner and living area. The interior is presented to a contemporary standard with a large kitchen island, bi-fold doors and parquet flooring that create an inviting family space.
Practical benefits include a detached garage, off-road parking for multiple cars and a decent rear garden — useful for storage, hobbies or outdoor entertaining. At about 904 sq ft the home suits first-time buyers or young families seeking an affordable, move-in-ready property in B31.
Buyers should note the exterior requires attention: the driveway is overgrown, hedging needs trimming and some repainting/maintenance is needed to improve kerb appeal. The wider neighbourhood is classified as very deprived with high local crime rates, so consider security measures and local due diligence.
Location is convenient for public transport links, shops and several good-rated local schools within walking distance. The property is freehold, offered chain free and sits in council tax band B, which helps running costs. Verify all details through your solicitor.
3 bedroom house for sale in Moorpark Road, Birmingham, West Midlands, B31 — £260,000 • 3 bed • 1 bath • 1072 ft²
3 bedroom semi-detached house for sale in Heath Croft, Birmingham, B31 — £295,000 • 3 bed • 1 bath • 1292 ft²
3 bedroom semi-detached house for sale in West Park Avenue, Northfield, Birmingham, B31 — £290,000 • 3 bed • 1 bath
3 bedroom semi-detached house for sale in Eves Croft, Birmingham, B32 — £274,950 • 3 bed • 1 bath • 1035 ft²
3 bedroom semi-detached house for sale in Hesketh Crescent, Birmingham, B23 7EQ, B23 — £275,000 • 3 bed • 1 bath • 1200 ft²
3 bedroom semi-detached house for sale in Hanging Lane, Birmingham, West Midlands, B31 — £260,000 • 3 bed • 1 bath • 1127 ft²


















































































































