Entry-level investment close to Westfield and transport links.
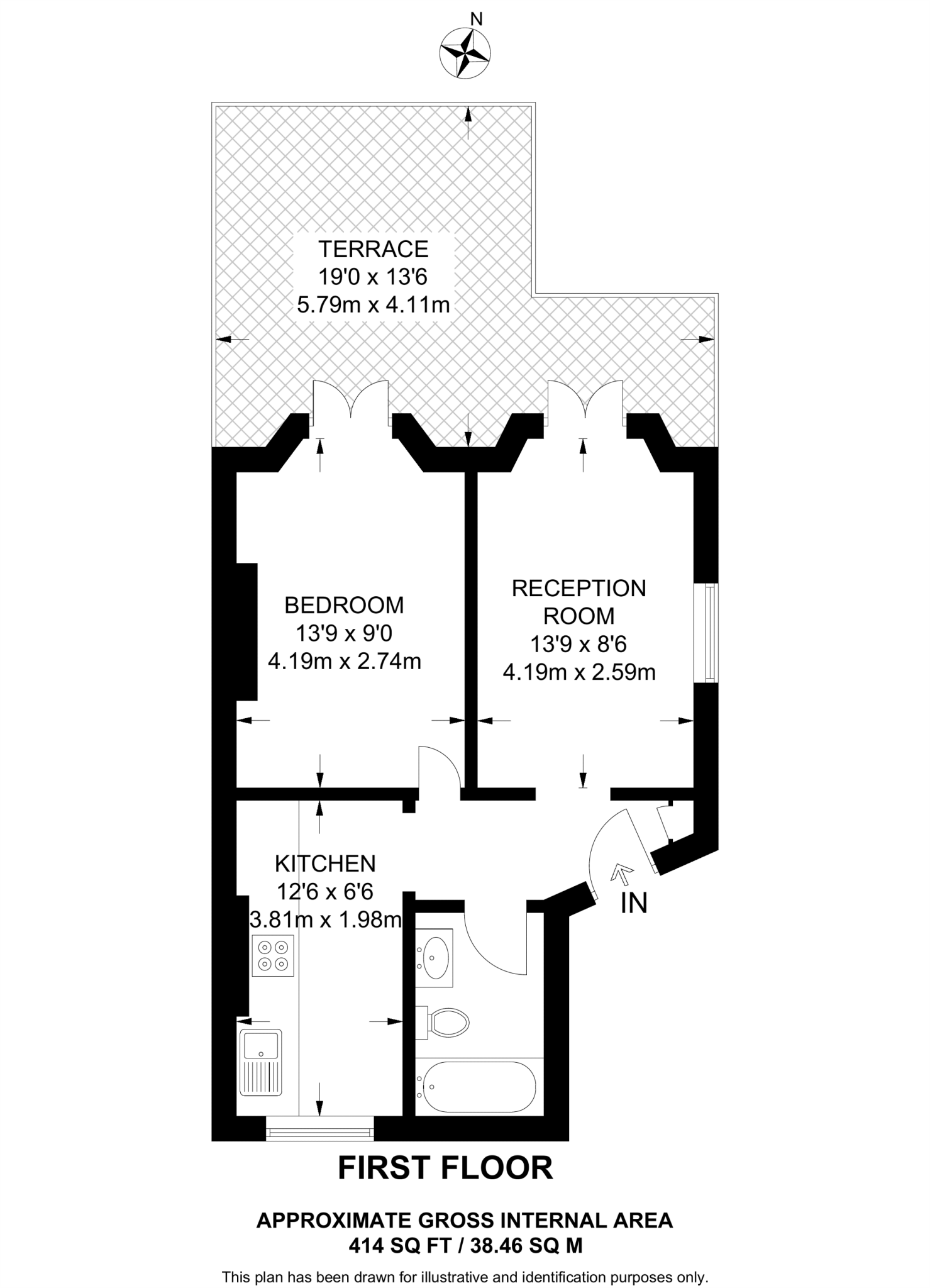
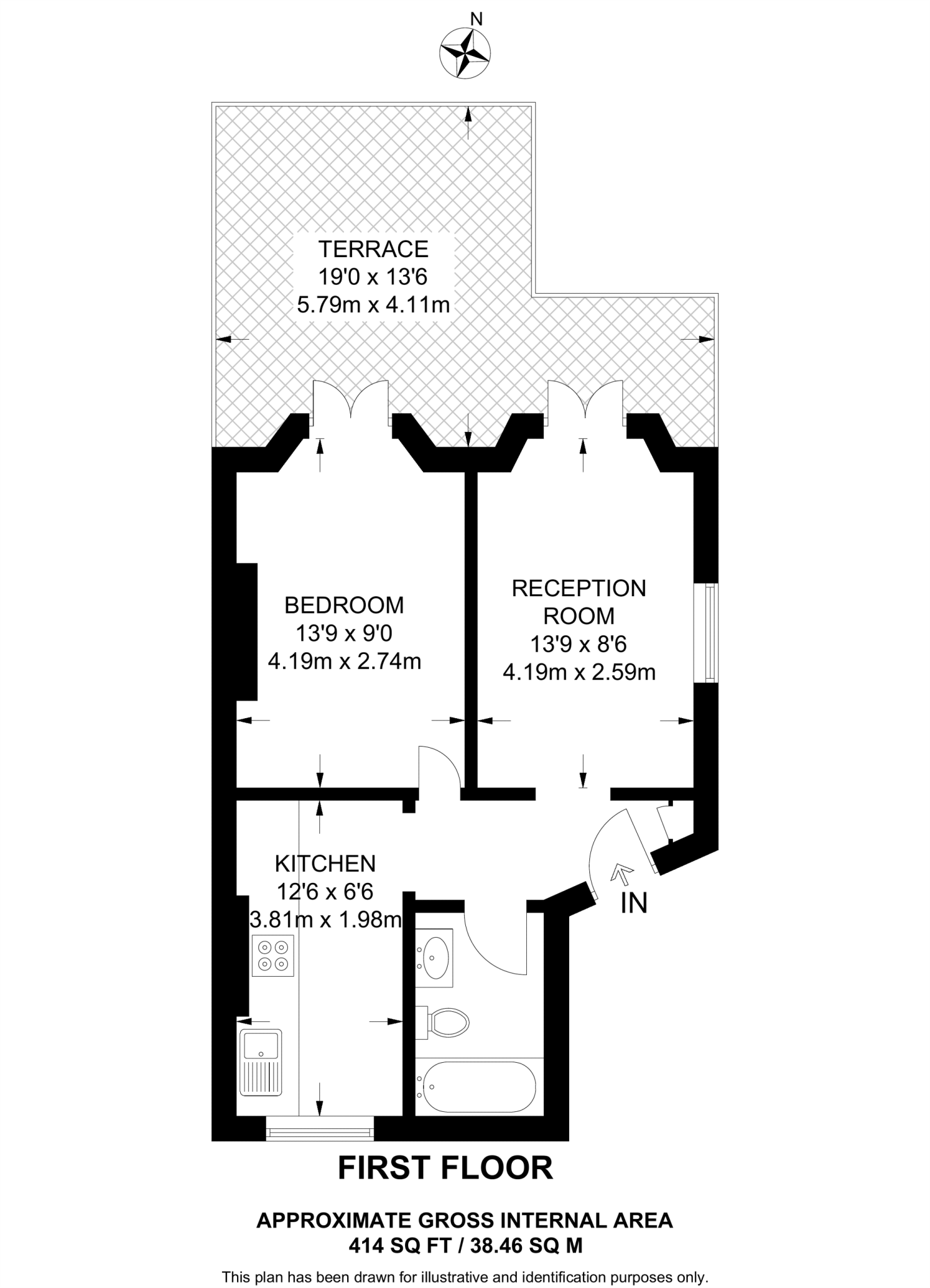
Private terrace fully demised and accessible from the flat
A compact 1-bedroom first-floor flat in Shepherd’s Bush, offered with a fully demised private terrace and immediate proximity to Westfield Shopping Centre. The owner has started the lease extension process and is covering associated costs, simplifying a key legal step for a buyer. Transport connections are strong, with Goldhawk Road and Shepherd's Bush stations within easy walking distance.
The apartment is small (approximately 416 sq ft) and shows signs of wear; the living room notes potential damp and requires renovation. Heating is mains gas via a boiler and radiators; the building’s solid-brick walls are likely uninsulated, so budget for thermal improvements. The property is leasehold and set within a densely urban area with very high local crime statistics—important considerations for both owner-occupiers and tenants.
For investors this presents an entry-price opportunity in a well-connected W12 location with holiday/long-let potential thanks to the terrace and nearby amenities. For a buyer willing to refurbish, there’s scope to increase rental or resale value. However, factor in refurbishment costs, possible damp remediation, and the implications of the local crime profile when assessing yield or living comfort.
1 bedroom flat for sale in Goldhawk Road, London, W12 — £400,000 • 1 bed • 1 bath • 410 ft²
1 bedroom flat for sale in Devonport Road, Shepherd's Bush W12 — £400,000 • 1 bed • 1 bath • 525 ft²
1 bedroom flat for sale in Pennard Road, Shepherds Bush, W12 — £425,000 • 1 bed • 1 bath • 423 ft²
1 bedroom flat for sale in Banstead Court, Shepherd's Bush, London, W12 — £350,000 • 1 bed • 1 bath • 520 ft²
1 bedroom flat for sale in Shinfield Street, London, W12 — £385,000 • 1 bed • 1 bath • 423 ft²
1 bedroom flat for sale in Askew Road, London, W12 — £350,000 • 1 bed • 1 bath • 531 ft²


























































































































































