**Standout Features:**
- Guide Price: £240,000
- Great Location in a sought-after neighborhood
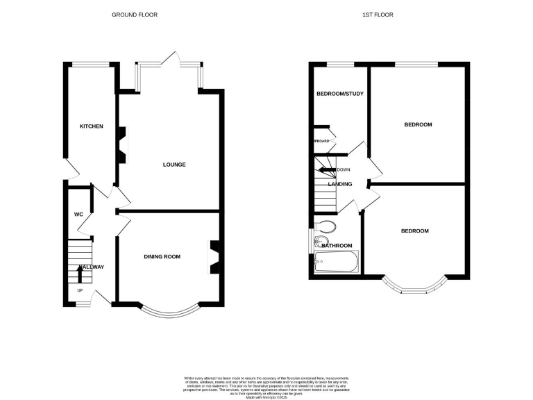
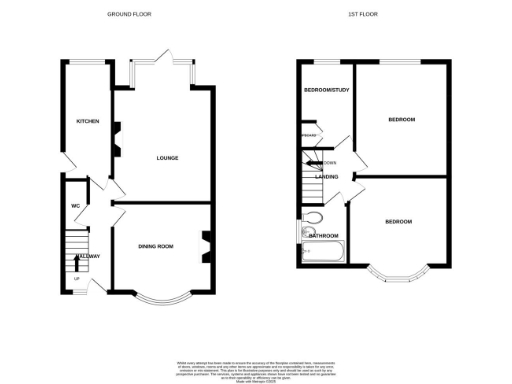
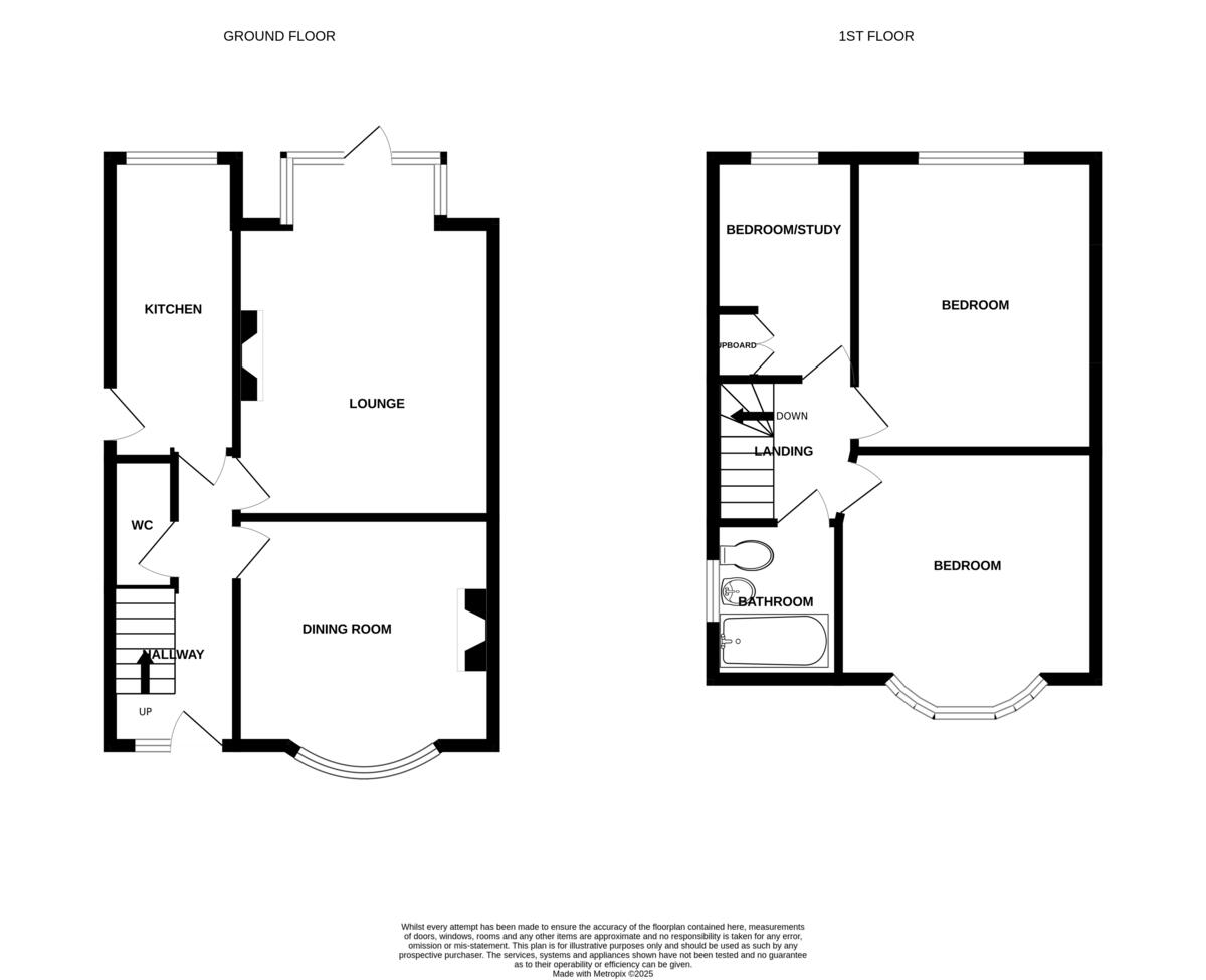
- 3 spacious bedrooms
- Off-street parking and a garage
- Extensively extended and modernized layout
- Generous rear garden with parkland views
- Close proximity to local amenities and excellent transport links
**Summary:**
Discover your perfect family home in this beautifully extended, bay-windowed three-bedroom semi-detached property, ideally situated in a vibrant community. As you step inside, you'll be welcomed by a spacious entrance hall leading to a bright dining room featuring a charming fireplace and an extended lounge, perfect for cozy family gatherings. The extended kitchen offers ample space for culinary adventures, while upstairs, you'll find three well-sized bedrooms ready to accommodate your family, alongside a modern bathroom.
The generous rear garden, which backs onto tranquil parkland, provides a perfect escape, while the neatly kept front garden, driveway, and garage enhance convenience. This home is conveniently located near local amenities, public transportation, and highly rated schools, making it an ideal choice for growing families. Although the area experiences above-average crime rates and ranks as very deprived, the community offers excellent mobile and broadband connectivity, ensuring modern living won't be compromised. Don’t miss your chance to secure this charming property—schedule your viewing today and envision your future here!
3 bedroom semi-detached house for sale in Farview Road, SHEFFIELD, South Yorkshire, S5 — £245,000 • 3 bed • 1 bath • 1330 ft²
3 bedroom semi-detached house for sale in Elmfield Avenue, Sheffield Lane Top, S5 — £230,000 • 3 bed • 1 bath • 1022 ft²
3 bedroom semi-detached house for sale in Hollythorpe Road, Sheffield, South Yorkshire, S8 — £300,000 • 3 bed • 1 bath • 1112 ft²
3 bedroom semi-detached house for sale in Hereward Road, Sheffield, S5 — £190,000 • 3 bed • 1 bath • 743 ft²
3 bedroom semi-detached house for sale in Batworth Drive, Sheffield, S5 — £230,000 • 3 bed • 1 bath • 775 ft²
4 bedroom semi-detached house for sale in Herries Road, Sheffield, South Yorkshire, S5 — £250,000 • 4 bed • 1 bath • 1147 ft²






















































