Convenient period flat near Warminster town centre — ideal for first-time buyers or investors.
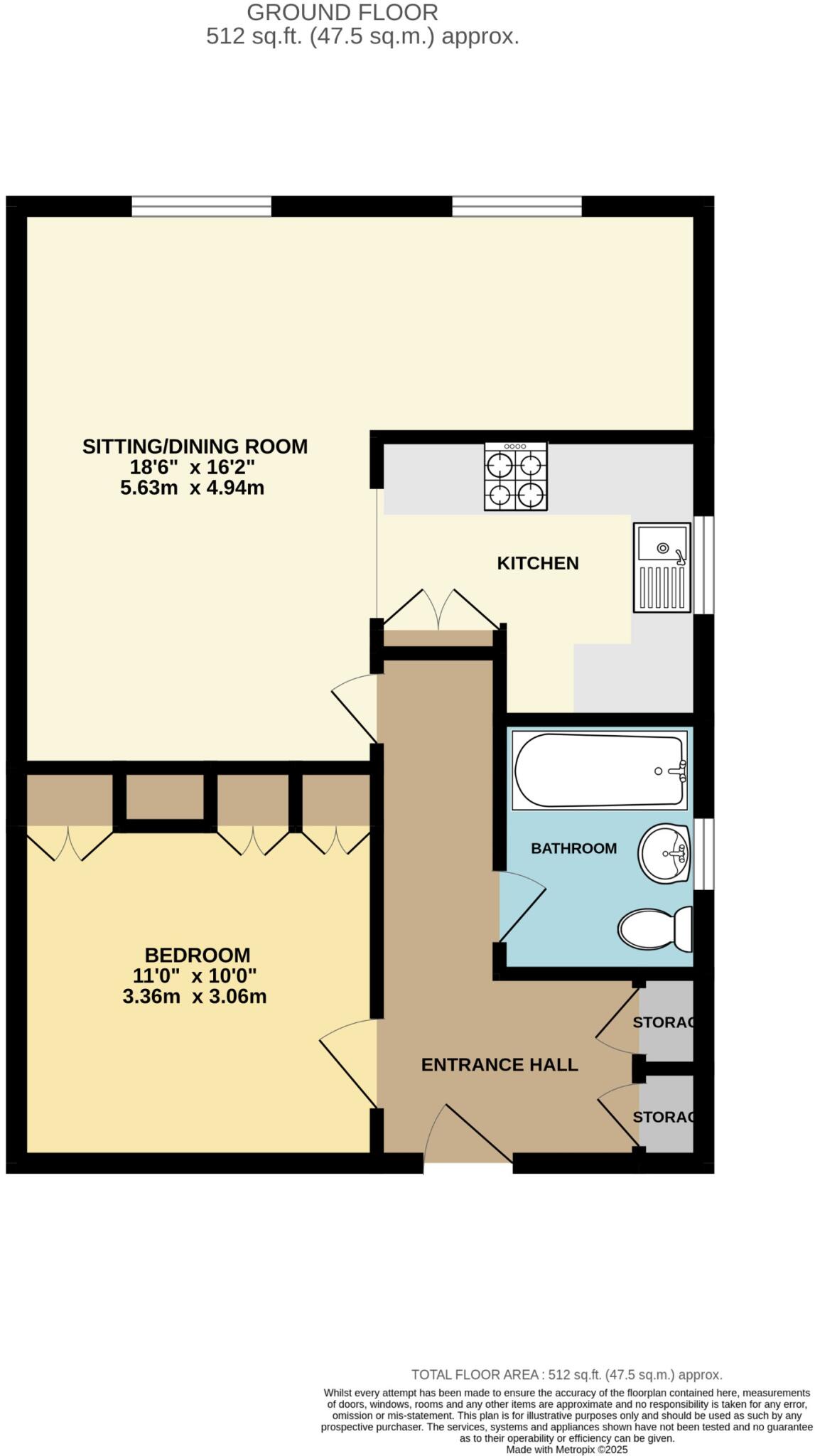
Ground-floor one-bedroom apartment; open-plan living/dining space
A ground-floor one-bedroom apartment in the heart of Warminster, offering immediate access to the town centre and local amenities. The open-plan living/dining room benefits from large windows and a practical layout suited to first-time buyers or buy-to-let investors seeking low-entry stock.
The property sits in a period mid-terrace with a stone façade and retains characterful features. The double bedroom includes built-in wardrobes; the kitchen is functional with wooden cabinets and natural light; bathroom is modern and well-organised. Double glazing was installed after 2002 and the home is heated by a mains-gas boiler and radiators.
Practical running costs are a positive: low council tax, modest service charge (£360pa) and small ground rent (£30pa). There is also garage parking and a small garden — useful extras for town-centre living.
Notable considerations: the building is solid brick with assumed no cavity insulation so thermal performance may be poor and heating costs could be higher than modern standards. EPC rating D. The area records very high crime levels, which may concern some buyers and could affect lettability and insurance. Broadband speeds are average. Tenure is leasehold.
1 bedroom flat for sale in The Old Workshop, Warminster, BA12 — £100,000 • 1 bed • 1 bath • 393 ft²
2 bedroom apartment for sale in Market Place, Warminster, BA12 — £125,000 • 2 bed • 1 bath • 839 ft²
2 bedroom ground floor flat for sale in Swaledale Road, Warminster, BA12 — £150,000 • 2 bed • 1 bath • 596 ft²
1 bedroom ground floor flat for sale in Barclay Court, Warminster, BA12 — £110,000 • 1 bed • 1 bath • 473 ft²
2 bedroom apartment for sale in Swaledale Road, Warminster, BA12 — £160,000 • 2 bed • 1 bath • 569 ft²
2 bedroom flat for sale in Market Place, Warminster, BA12 — £140,000 • 2 bed • 1 bath • 588 ft²






























































