Ready-to-rent retreat with private jetty and hot tub.
- Direct lake frontage with private jetty and sandy beach
- Fully furnished and ready to occupy or let immediately
- Open-plan lounge, kitchen and dining with lake views
- Master bedroom with en-suite plus two double bedrooms
- Large decking area with hot tub and glass screening
- Leasehold within a managed holiday park (buyer to verify terms)
- Very slow broadband speeds; limited external grounds
- Estimated rental income £20,000–£25,000 per year
Set directly on Delamere Lake, this contemporary three-bedroom lodge offers immediate lakeside living with a private jetty and sandy beach. The open-plan living, dining and kitchen space is bright and elevated to maximise water views, and the extensive decking with hot tub and glass screening creates an attractive outdoor entertaining zone. Sold fully furnished, the property is ready to occupy or let straight away.
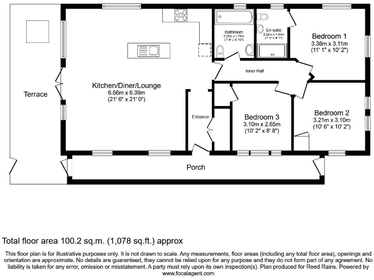
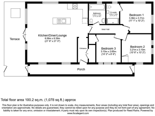
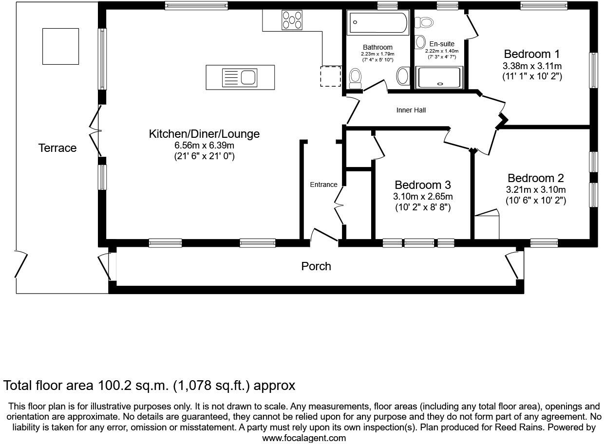
Designed at a typical park-lodge scale, accommodation comprises three double bedrooms including a master with en-suite, plus a family bathroom. The interior is modern and well-presented, making the unit appealing to holiday-makers and short-stay guests. Double-width parking is provided on-site for convenience.
This unit is offered as a leasehold within a managed holiday park. Estimated annual rental income is £20,000–£25,000, supporting its appeal to investors seeking an established holiday-let option. The plot is compact and focused on decking and immediate lakeside access rather than extensive grounds, so garden space is limited.
Practical points to note: broadband speeds are very slow here, which may affect long-stay or remote-working guests. Council tax details are not provided. The property sits in a very low-crime, affluent rural location with average mobile signal and no recorded flood risk.
3 bedroom park home for sale in Delamere Lake Sailing & Holiday Park, Oakmere, Northwich, CW8 — £250,000 • 3 bed • 2 bath • 1870 ft²
3 bedroom lodge for sale in Delamere Lake Sailing and Holiday Park, Chester Road, CW8 — £259,995 • 3 bed • 2 bath • 990 ft²
4 bedroom detached house for sale in Chester Road, Oakmere, Northwich, Cheshire, CW8 — £200,000 • 4 bed • 3 bath • 1072 ft²
4 bedroom lodge for sale in Four Bed Omar Boutique (50x22) 2022, Delamere Lake Sailing and Holiday Park, Oakmere, Northwich, Cheshire, CW8 2JL, CW8 — £225,995 • 4 bed • 3 bath
2 bedroom lodge for sale in Two Bed Pemberton Glendale (40x22), Oakmere Country Park, Oakmere, Northwich, Cheshire, CW8 2HB, CW8 — £245,000 • 2 bed • 2 bath
2 bedroom park home for sale in Oakmere Country Park, CW8 — £225,000 • 2 bed • 2 bath • 800 ft²






































































































