Move-in-ready one-bedroom tenement flat with south-facing garden, minutes from Glasgow University.
Recently renovated throughout with new kitchen and flooring
A freshly renovated one-bedroom ground-floor apartment in a handsome red sandstone tenement, just a short walk from Glasgow University and Byres Road. The interior has been fully refreshed with a new kitchen (with unused appliances), new flooring and contemporary bathroom, creating a bright, move-in-ready home for a student, young professional or first-time buyer.
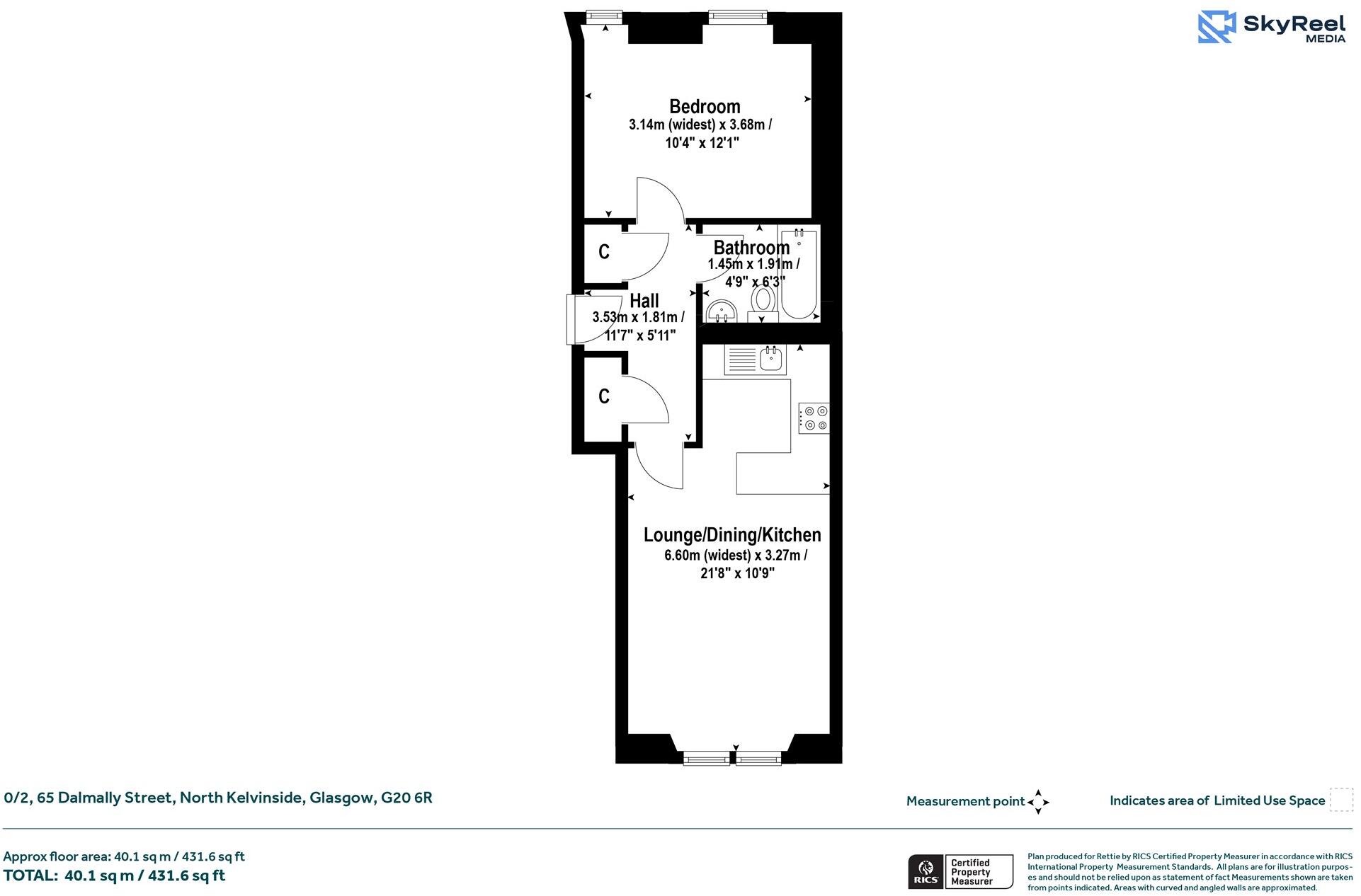
The open-plan lounge and kitchen with peninsula breakfast bar makes efficient use of the 432 sq ft layout, while a double bedroom at the rear offers a quieter aspect. A secure communal entrance, tidy halls and a south-facing communal garden provide pleasant communal spaces and great natural light throughout the day.
Practical details: freehold tenure, EPC C and Council Tax Band B. The apartment’s compact size and ground-floor position suit buyers prioritising location and low-maintenance living over larger living areas. Note the wider neighbourhood is described as very deprived; buyers should consider this when assessing local services and long-term investment prospects.
This property is ideal for someone seeking a stylish, low-hassle base close to the city’s universities, arts venues and transport links, including quick access to the M8. The forthcoming closing date means interested buyers should act promptly to view.
1 bedroom flat for sale in 1/2, 156 Dumbarton Road, Partick, Glasgow, G11 — £155,000 • 1 bed • 1 bath • 549 ft²
1 bedroom apartment for sale in Kent Road, Finnieston, Glasgow, G3 — £169,000 • 1 bed • 1 bath • 726 ft²
1 bedroom flat for sale in Berkeley Street, Glasgow, G3 — £150,000 • 1 bed • 1 bath • 317 ft²
2 bedroom apartment for sale in Havelock Street, Dowanhill, Glasgow, G11 — £289,000 • 2 bed • 1 bath • 877 ft²
1 bedroom apartment for sale in Apsley Street, Glasgow, G11 — £125,000 • 1 bed • 1 bath • 434 ft²
1 bedroom apartment for sale in Minerva Street, Finnieston, Glasgow, G3 — £160,000 • 1 bed • 1 bath • 552 ft²






























































































