Refurbished three-bed bungalow with double garage and landscaped garden on a generous plot.
Extended and newly refurbished single-storey bungalow
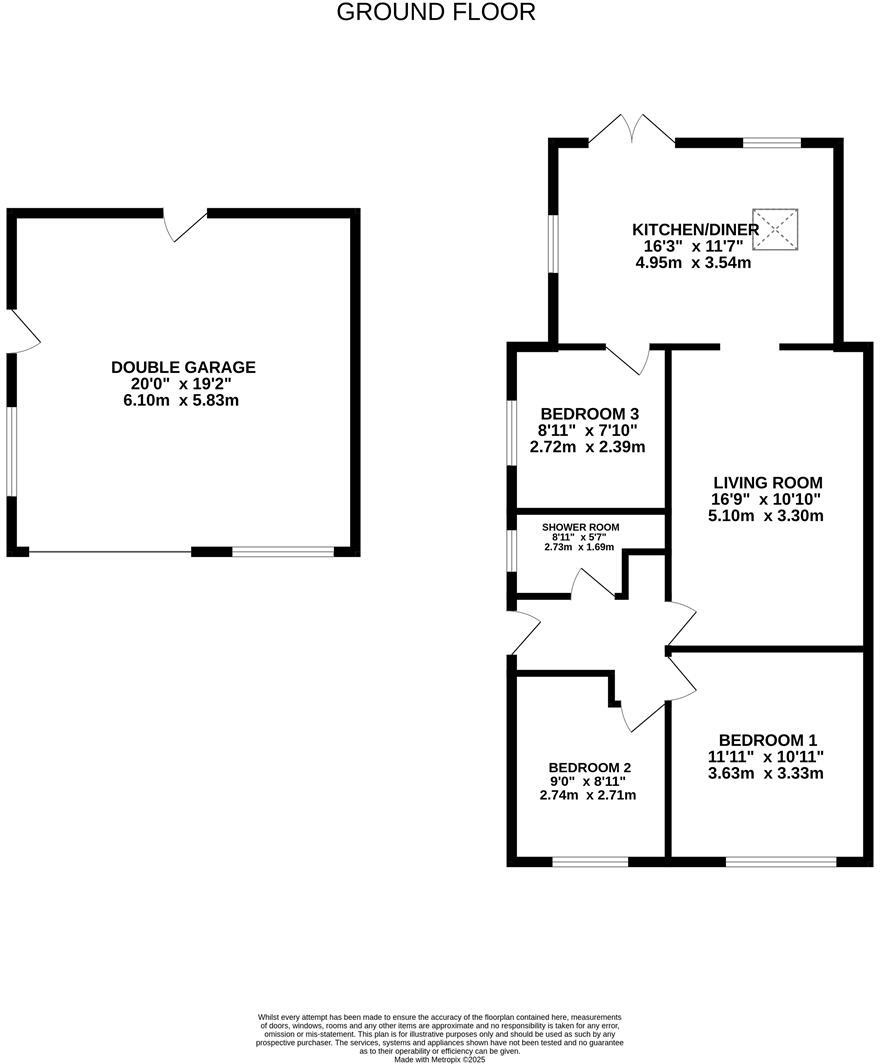
A recently extended and refurbished single-storey home in a popular village close, offering low-maintenance, single-floor living ideal for downsizers or small families. The bungalow sits on a decent plot with landscaped rear garden, paved patio and pergola for outdoor entertaining plus a patch of lawn and mature screening for privacy.
Practical strengths include a large powered double garage/workshop, gravel driveway with space for 2–3 cars (plus further gated parking), and a bright kitchen-diner with double doors and rooflight. The accommodation comprises three bedrooms, a modern shower room and a welcoming living room with feature surround — all arranged in a traditional, easy-to-manage layout.
Buyers should note the EPC rating of D (59) and that electric storage heaters are currently recorded, while material information also references an LPG system fitted in 2025; prospective purchasers should verify heating type and running costs. Broadband performance is basic in places (around 17 Mbps), although higher-speed networks are available locally.
Overall this freehold bungalow offers turn-key presentation with scope to personalise, strong parking and workshop space, and a village location with primary school, pub, bakery and bus links — a sensible choice for someone seeking comfortable single-level living in a rural yet well-connected setting.
3 bedroom detached bungalow for sale in Prince Crescent, Staunton, GL19 — £365,000 • 3 bed • 1 bath • 1405 ft²
3 bedroom detached bungalow for sale in Willow Walk, Lea, Ross-On-Wye, HR9 — £459,950 • 3 bed • 2 bath • 1108 ft²
2 bedroom bungalow for sale in The Holly Grove, Quedgeley, Gloucester, Gloucestershire, GL2 — £350,000 • 2 bed • 1 bath • 730 ft²
3 bedroom semi-detached bungalow for sale in Sherwood Green, Longford, Gloucester, GL2 — £295,000 • 3 bed • 1 bath • 829 ft²
2 bedroom detached bungalow for sale in Cavendish Avenue, Churchdown, Gloucester, GL3 — £400,000 • 2 bed • 1 bath • 714 ft²
3 bedroom bungalow for sale in Hildyard Close, Hardwicke, GL2 — £375,000 • 3 bed • 1 bath • 786 ft²






















































