Three-bedroom family home with large private garden and garage near Kibworth High Street.
Three bedrooms with two good doubles and a single/fitted dressing room
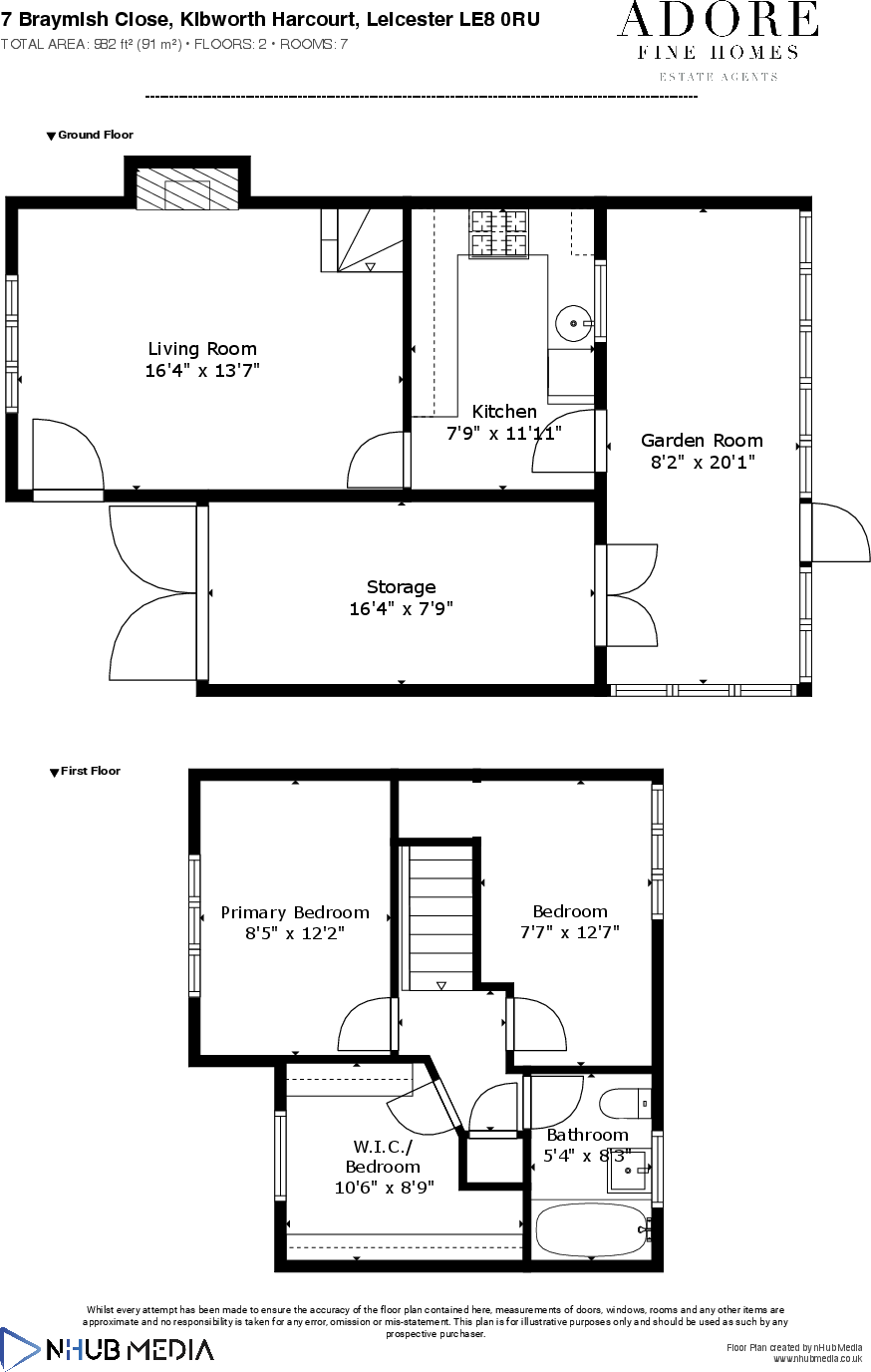
A bright, well-presented three-bedroom mid-terraced family home tucked at the end of a quiet cul-de-sac, just a short walk from Kibworth High Street. The house offers comfortable living across 982 sq ft with a contemporary fitted kitchen, generous lounge/diner and a 20' x 8' garden room that opens onto a large, private rear garden.
Practical benefits include driveway parking, an integral garage with utility space and potential to add a downstairs cloakroom/WC, and fast broadband — useful for home working. The two double bedrooms and a single (currently fitted as a dressing room) are served by a modern family bathroom; the layout suits families needing good communal space and outdoor room for children and pets.
Set in a prospering, affluent village location with outstanding and good local schools nearby, sports clubs, shops and regular transport links, this freehold property is well placed for family life. Note the house has a single family bathroom only and any internal reconfiguration (for extra WC or further extension) would be subject to planning/consent and expense.
Overall, this is an attractive, move-in-ready home for buyers seeking a quietly positioned family property with a large garden and garage, with clear potential to add value by modest reconfiguration or updating where desired.
4 bedroom detached house for sale in Brookfield Way, Kibworth, LE8 — £485,000 • 4 bed • 3 bath • 1933 ft²
3 bedroom semi-detached house for sale in Disraeli Close, Kibworth, LE8 — £280,000 • 3 bed • 1 bath • 789 ft²
2 bedroom semi-detached house for sale in 5 Balfour Drive, Kibworth, LE8 0WJ, LE8 — £250,000 • 2 bed • 1 bath • 730 ft²
3 bedroom semi-detached house for sale in Gladstone Street, Kibworth, LE8 — £310,000 • 3 bed • 1 bath • 874 ft²
4 bedroom detached house for sale in Barnards Way, Kibworth Harcourt, LE8 — £485,000 • 4 bed • 2 bath • 1583 ft²
4 bedroom terraced house for sale in Glebeland, Kibworth Harcourt, Leicester, LE8 — £340,000 • 4 bed • 2 bath • 1443 ft²






















































































