Sunny south-facing garden and two shower rooms, close to schools.
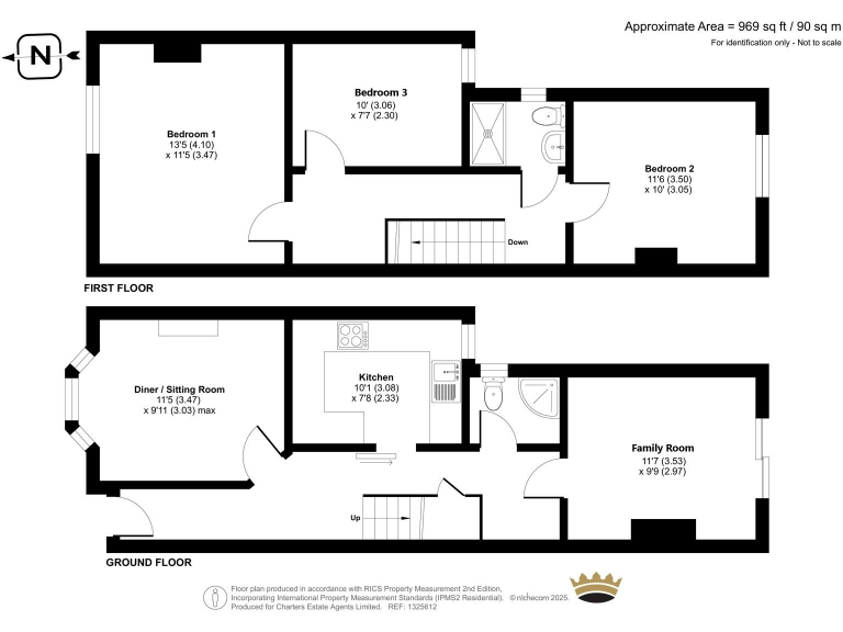
Chain free three-bedroom Victorian mid-terrace, freehold
A deceptively practical three-bedroom mid-terrace in sought-after Grayshott Road, offered chain free and ready for immediate occupation. The layout balances period character with modern convenience: a bay-front sitting room with original fireplace, a separate dining room that opens to the garden, and a well-appointed kitchen with clever storage.
Practical features include two shower rooms (ground and first floor), double glazing installed post-2002, mains gas central heating and freehold tenure. The rear garden is south-facing and fully enclosed — a sunny, low-maintenance outdoor space for children or potted gardening. There is a small forecourt to the front typical of the era.
The house is of average internal size for a Victorian mid-terrace (circa 1900–1929) and will suit a first-time buyer or growing family seeking proximity to schools, parks and good transport links. Recent rectification works for historic damp have been carried out and are covered by a transferable 30-year guarantee, which addresses a notable past issue.
Space is compact compared with modern family homes: rooms are small-to-medium and the rear garden/plot is modest. There is scope to personalise and improve layout or finish if desired, but the property is habitable as presented. Council tax is low and broadband/mobile connectivity is strong in the area.
2 bedroom terraced house for sale in Esslemont Road, Southsea, PO4 — £240,000 • 2 bed • 1 bath • 691 ft²
3 bedroom terraced house for sale in Guildford Road, Fratton, PO1 — £255,000 • 3 bed • 1 bath • 685 ft²
3 bedroom terraced house for sale in Percy Road, Southsea, PO4 — £285,000 • 3 bed • 1 bath • 704 ft²
3 bedroom terraced house for sale in Alverstone Road, Southsea, PO4 — £265,000 • 3 bed • 1 bath • 742 ft²
3 bedroom terraced house for sale in Shearer Road, Fratton, PO1 — £210,000 • 3 bed • 1 bath • 988 ft²
3 bedroom end of terrace house for sale in Kassassin Street, Southsea, Hampshire, PO4 — £270,000 • 3 bed • 1 bath • 971 ft²






















































































