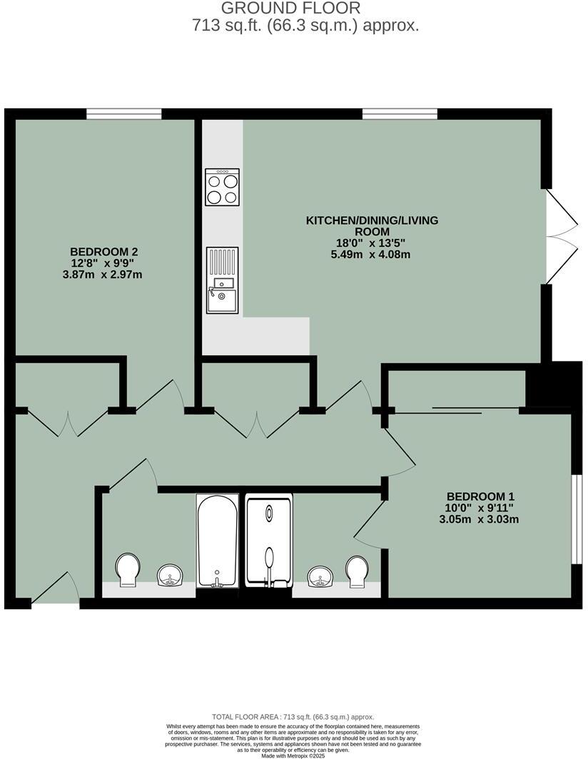
**Standout Features:**
- Move-in ready ground floor apartment
- Two double bedrooms with modern en-suite & family bathroom
- Open plan kitchen/dining/living area with integrated appliances
- South-facing terrace for outdoor enjoyment
- Allocated off-street parking
- Located within walking distance to Wallingford town center
- Access to 18 acres of communal green space and nature trails
**Summary:**
Discover this exquisite newly built ground floor apartment in the desirable Highcroft development, beautifully designed for contemporary living. Featuring two spacious double bedrooms, including a primary suite with a luxurious en-suite bathroom, this property also boasts a stylish family bathroom. The heart of the home is the bright open-plan kitchen and living area, equipped with high-end integrated appliances and opening to a private south-facing terrace—perfect for morning coffee or evening relaxation.
With a total space of 713 sq.ft., safety is assured in this vibrant community, characterized by low crime rates and an affluent atmosphere. The flat’s allocated off-street parking enhances convenience, making it an ideal choice for first-time buyers, small families, or investors seeking rental potential. Enjoy the benefits of living just a short stroll from the historic town of Wallingford and its charming shops and eateries, as well as ample green space right at your doorstep. This is a unique opportunity that won’t last long—secure your chance to own this modern sanctuary today!
2 bedroom apartment for sale in Off Calvin Thomas Way, Wallingford,
Oxfordshire
OX10 0FQ, OX10 — £320,000 • 2 bed • 2 bath • 759 ft²
2 bedroom apartment for sale in Off Calvin Thomas Way, Wallingford,
Oxfordshire
OX10 0FQ, OX10 — £325,000 • 2 bed • 2 bath • 761 ft²
2 bedroom apartment for sale in Off Calvin Thomas Way, Wallingford,
Oxfordshire
OX10 0FQ, OX10 — £330,000 • 2 bed • 1 bath • 759 ft²
2 bedroom apartment for sale in Off Calvin Thomas Way, Wallingford,
Oxfordshire
OX10 0FQ, OX10 — £330,000 • 2 bed • 1 bath • 759 ft²
1 bedroom flat for sale in Fludger Close, Wallingford, OX10 — £185,000 • 1 bed • 1 bath • 303 ft²
4 bedroom semi-detached house for sale in King Henry Avenue, Wallingford, OX10 0FN, OX10 — £600,000 • 4 bed • 3 bath • 1501 ft²


















































