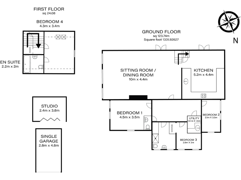
**Standout Features:**
- Unique conversion of a former school with historical charm
- Spacious open-plan living area with high ceilings and exposed beams
- Four generous bedrooms, including three on the ground floor
- Beautifully landscaped tiered courtyard garden with a garden office
- Detached property with a garage and off-road parking
- Rural setting in a tranquil village with low crime rates
- Newly renovated with average-sized plot, offering modern amenities
This extraordinary property beautifully marries history with contemporary living, offering an inviting and sociable atmosphere perfect for families or those looking for a unique lifestyle. The expansive, airy living space, reminiscent of New York loft apartments, boasts high ceilings and abundant natural light, making it ideal for entertaining or relaxing. With four generous bedrooms, including an ensuite, and a beautifully designed garden office, there's ample room for both family life and work-from-home needs.
Located on an average-sized plot in an affluent rural village, this home also benefits from proximity to reputable schools and essential amenities, ensuring convenience for families. Despite its charming retreat-like feel, this detached gem is just a short commute to larger towns.
However, potential buyers should note the property’s unique design primarily relies on its open-plan layout, which may not appeal to everyone's taste. With its low crime environment and pastoral views, this property not only promises a cozy sanctuary but also offers the flexibility for future renovations or personalizations. Don’t miss the opportunity to own this exceptional home; properties like this are rare finds!
6 bedroom detached house for sale in Campsea Ashe, Woodbridge, IP13 — £900,000 • 6 bed • 4 bath • 3270 ft²
5 bedroom detached house for sale in West Stow, Bury St. Edmunds, IP28 — £1,500,000 • 5 bed • 4 bath • 3240 ft²
3 bedroom semi-detached bungalow for sale in Thetford Road, Fakenham Magna, IP24 — £450,000 • 3 bed • 1 bath • 1231 ft²
5 bedroom detached house for sale in Fressingfield, IP21 — £750,000 • 5 bed • 4 bath • 3496 ft²
4 bedroom detached house for sale in Southolt, Eye, IP23 — £675,000 • 4 bed • 2 bath • 2841 ft²
4 bedroom semi-detached house for sale in Rendham, IP17 — £560,000 • 4 bed • 2 bath • 3261 ft²






















































































