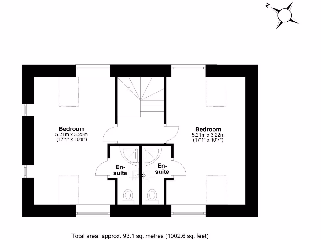
Unique two-bedroom home with expansive rural outlooks and private garden.
Detached Victorian chapel conversion with arched windows and exposed stonework
Set on the edge of Kirkheaton, this detached Victorian chapel conversion offers distinctive character and unbroken countryside views. The open-plan ground floor combines stonework, exposed timbers and a wood-burning stove, creating an inviting space that’s both atmospheric and practical for everyday living.
Upstairs the two vaulted double bedrooms each have en suite shower rooms and elevated outlooks, making the layout well suited to downsizers who value privacy and low household numbers. Outside, a level lawn framed by a low stone wall and parking for two cars provide straightforward, low-maintenance outdoor space with room to add seating to follow the sun.
Buyers should note a few practical points: the property uses oil-fired central heating and has an EPC rating of D, while the original stone walls are assumed uninsulated. Access is via a private gate and a shared drive (a public footpath runs along the shared access), and routine maintenance typical of an older, stone-built building should be expected.
Overall, this chapel conversion will appeal to purchasers seeking a unique, peaceful home with period character and countryside privacy, who are comfortable managing traditional building elements and the practicalities of rural living.
3 bedroom detached house for sale in The Old Chapel, Capheaton, Northumberland, NE19 — £610,000 • 3 bed • 2 bath • 2435 ft²
2 bedroom property for sale in Wall Methodist Chapel, The Chare, Wall, Hexham, Northumberland, NE46 — £325,000 • 2 bed • 1 bath • 1216 ft²
4 bedroom detached house for sale in Waynriggs House, Humshaugh, Hexham, Northumberland, NE46 — £1,175,000 • 4 bed • 3 bath • 4547 ft²
6 bedroom barn conversion for sale in Bowes Hill, Newton Hall, Newton, Stocksfield, Northumberland, NE43 — £2,000,000 • 6 bed • 3 bath • 6884 ft²
6 bedroom detached house for sale in Kirkheaton Manor, Kirkheaton, Northumberland, NE19 — £1,175,000 • 6 bed • 2 bath • 3517 ft²
4 bedroom barn conversion for sale in Middle Barn, Harlow Hill, Northumberland, NE15 — £725,000 • 4 bed • 2 bath • 2243 ft²










































































