**Standout Features:**
- Newly renovated three-bedroom mid-terraced property
- Modern fitted kitchen and bathroom
- Landscaped front and rear gardens, ideal for families
- Gated rear parking accessible via St Michael’s
- Chain-free sale, offering immediate availability
**Concerns:**
- Located in an area with very high crime rates
- Small plot size may limit future extensions or expansions
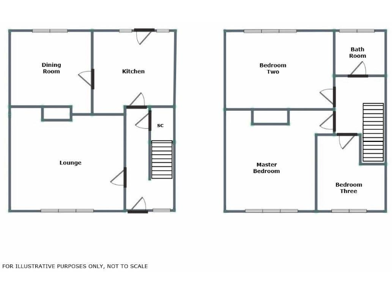
Welcome to your new home in the heart of Lichfield! This spacious three-bedroom mid-terraced property has been impressively renovated, featuring a new kitchen and bathroom, along with all-new windows and doors, ensuring a fresh and modern living experience. Ideal for families, the beautifully landscaped front and rear gardens offer a sun-filled south west facing space perfect for entertaining or relaxing. With the convenience of gated parking at the rear and being within walking distance to the lively town center and train stations, this home blends comfort with functionality.
Despite its many advantages, potential buyers should note the very high crime rate in the vicinity, as well as the modest size of the plot, which may limit future renovation potential. Nonetheless, this property is a fantastic opportunity for first-time buyers or investors looking for a stylish, turn-key home in a vibrant community. With its chain-free status, this well-presented home won’t last long—schedule your viewing today and envision the possibilities that await!
3 bedroom end of terrace house for sale in Mary Slater Road, Lichfield, Staffordshire, WS13 — £390,000 • 3 bed • 1 bath • 919 ft²
3 bedroom detached house for sale in St. Marys Road, Lichfield - Incredible Presentation & Fully Renovated, WS13 — £340,000 • 3 bed • 1 bath • 991 ft²
3 bedroom terraced house for sale in Prince Ruperts Way, Lichfield, Staffordshire, WS13 — £260,000 • 3 bed • 1 bath • 754 ft²
3 bedroom detached house for sale in Upper St. John Street, Lichfield - No Upward Chain, WS14 — £375,000 • 3 bed • 1 bath • 1242 ft²
4 bedroom semi-detached house for sale in Birmingham Road, Lichfield, WS13 — £550,000 • 4 bed • 2 bath • 1500 ft²
2 bedroom property for sale in Upper St. Johns Street, Lichfield, WS14 — £240,000 • 2 bed • 1 bath • 636 ft²






































































































